Astegiudiziarie.it è parte di Rete Aste Network

Accedi o registrati

Non sei ancora registrato?

Oppure

Accedi

Abitazione di tipo economico, terreno

Via Frategianni, 97013 Comiso RG, Italia, Comiso (RG)

€ 42.048,00

Offerta minima € 31.536,00


Codice A4319399

Lotto Lotto unico

Data udienza 31/03/2026 ore 10:30

Termine presentazione offerte 30/03/2026 ore 13:00

Abitazione di tipo economico, terreno

Via Frategianni, 97013 Comiso RG, Italia, Comiso (RG)

€ 42.048,00

Offerta minima € 31.536,00


Codice A4319399

Lotto Lotto unico

Data udienza 31/03/2026 ore 10:30

Termine presentazione offerte 30/03/2026 ore 13:00

Ti interessa questa vendita?

Documentazione

Visualizza su mappa

Mappa geografica del bene

Punti di interesse

Fonte dati

Nel raggio di {{range}}Km

Loading...
  • {{ getIcon(poi.type) }} {{ poi.localized }}: {{poi.count}}
  • {{ getIcon(poi.type) }} {{ poi.localized }}: {{poi.count}}
Dati non disponibili

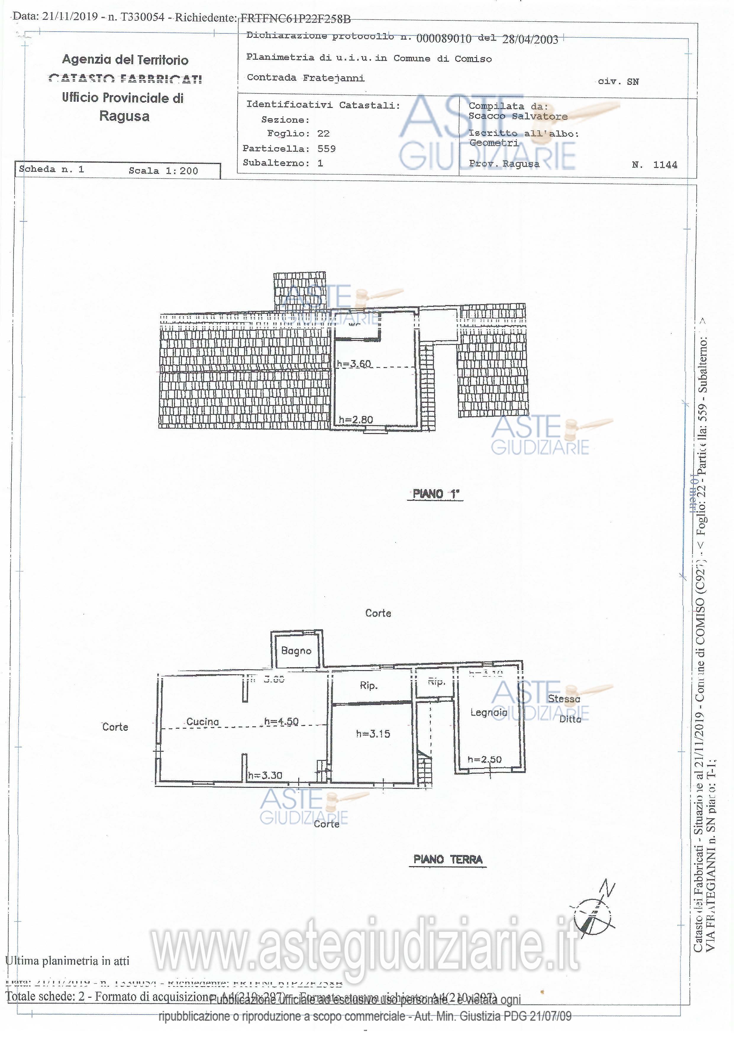
Diritto di proprietà (1/1) di un terreno con entrostante fabbricato per abitazione, con la comproprietà di un pozzo trivellato, sito nella contrada Frate Gianni, tenere di Comiso.

Indirizzo
Via Frategianni, 97013 Comiso RG, Italia, Comiso (RG)


Codice asta
4319399


Lotto
Lotto unico


Numero beni
2


Genere
Immobili


Categoria
Immobile residenziale


Valore di stima
-


Abitazione di tipo economico

Fabbricato di vani 7,5 (abitazione di tipo economico) al piano terra e primo con relativa area di pertinenza.

Indirizzo
Contrada Frate Gianni, 97013 Comiso RG, Italia, Comiso (RG)


Piano
-


Disponibilità
-


Vani
7,50


Bagni
-


Metri quadri
177,00


Certificazione energetica
-


Terreno

Terreno con la comproprietà di un pozzo trivellato.

Indirizzo
Contrada Frate Gianni, 97013 Comiso RG, Italia, Comiso (RG)


Piano
-


Disponibilità
-


Vani
-


Bagni
-


Metri quadri
16673,00


Certificazione energetica
-


Data udienza
31/03/2026 ore 10:30


Tipo di vendita
Senza incanto


Modalità di vendita
Sincrona mista


Luogo
Via Resistenza Partigiana, 25r, 97015 Modica RG, Italia - Modica 97015


Luogo presentazione offerte
-


Termine presentazione offerte
30/03/2026 ore 13:00


Prezzo base
€ 42.048,00


Offerta minima
€ 31.536,00


Rialzo minimo in caso di gara
€ 1.000,00


Deposito cauzionale
10% del prezzo offerto


Deposito in conto spese
-


Tribunale
Ragusa

Tipo di procedura
Esecuzione immobiliare post legge 80

Ruolo
262/2019

Giudice
Di cataldo Carlo

Recapiti
-

Email
-

Delegato alla vendita
Zocco Giorgio
(Procede alle operazioni di vendita)

Recapiti
-

Email
-

Custode giudiziario
Zocco Giorgio
(Gestisce la visita del bene)

Recapiti
Tel. 09321972174

Scheda COD. 4319399 - Pubblicata dal 22/01/2026

La presente scheda di vendita riporta integralmente informazioni e documenti pervenuti ufficialmente dal Ministero e dal professionista incaricato.

Pubblicazione notarizzata su Blockchain


Pubblicazione autorizzata dall’Autorità competente, è vietata ogni ripubblicazione o riproduzione anche parziale


Ti interessa questa vendita?

Documentazione

Visualizza su mappa

Mappa geografica del bene

Storico delle vendite

Data venditaPrezzo base
03/04/2025€ 74.750,00
14/10/2025€ 56.063,00
31/03/2026€ 42.048,00

Punti di interesse

Fonte dati

Nel raggio di {{range}}Km

Loading...
  • {{ getIcon(poi.type) }} {{ poi.localized }}: {{poi.count}}
  • {{ getIcon(poi.type) }} {{ poi.localized }}: {{poi.count}}
Dati non disponibili