Astegiudiziarie.it è parte di Rete Aste Network

Accedi o registrati

Non sei ancora registrato?

Oppure

Accedi

Abitazione di tipo civile

Via Madonna dell'Olio, Cesa CE, Italia, Cesa (CE)

€ 138.000,00

Offerta minima € 103.500,00


Codice A4323062

Lotto Lotto unico

Data udienza 24/02/2026 ore 16:30

Termine presentazione offerte 23/02/2026 ore 23:59

Abitazione di tipo civile

Via Madonna dell'Olio, Cesa CE, Italia, Cesa (CE)

€ 138.000,00

Offerta minima € 103.500,00


Codice A4323062

Lotto Lotto unico

Data udienza 24/02/2026 ore 16:30

Termine presentazione offerte 23/02/2026 ore 23:59

Ti interessa questa vendita?

Documentazione

Visualizza su mappa

Mappa geografica del bene

Punti di interesse

Fonte dati

Nel raggio di {{range}}Km

Loading...
  • {{ getIcon(poi.type) }} {{ poi.localized }}: {{poi.count}}
  • {{ getIcon(poi.type) }} {{ poi.localized }}: {{poi.count}}
Dati non disponibili

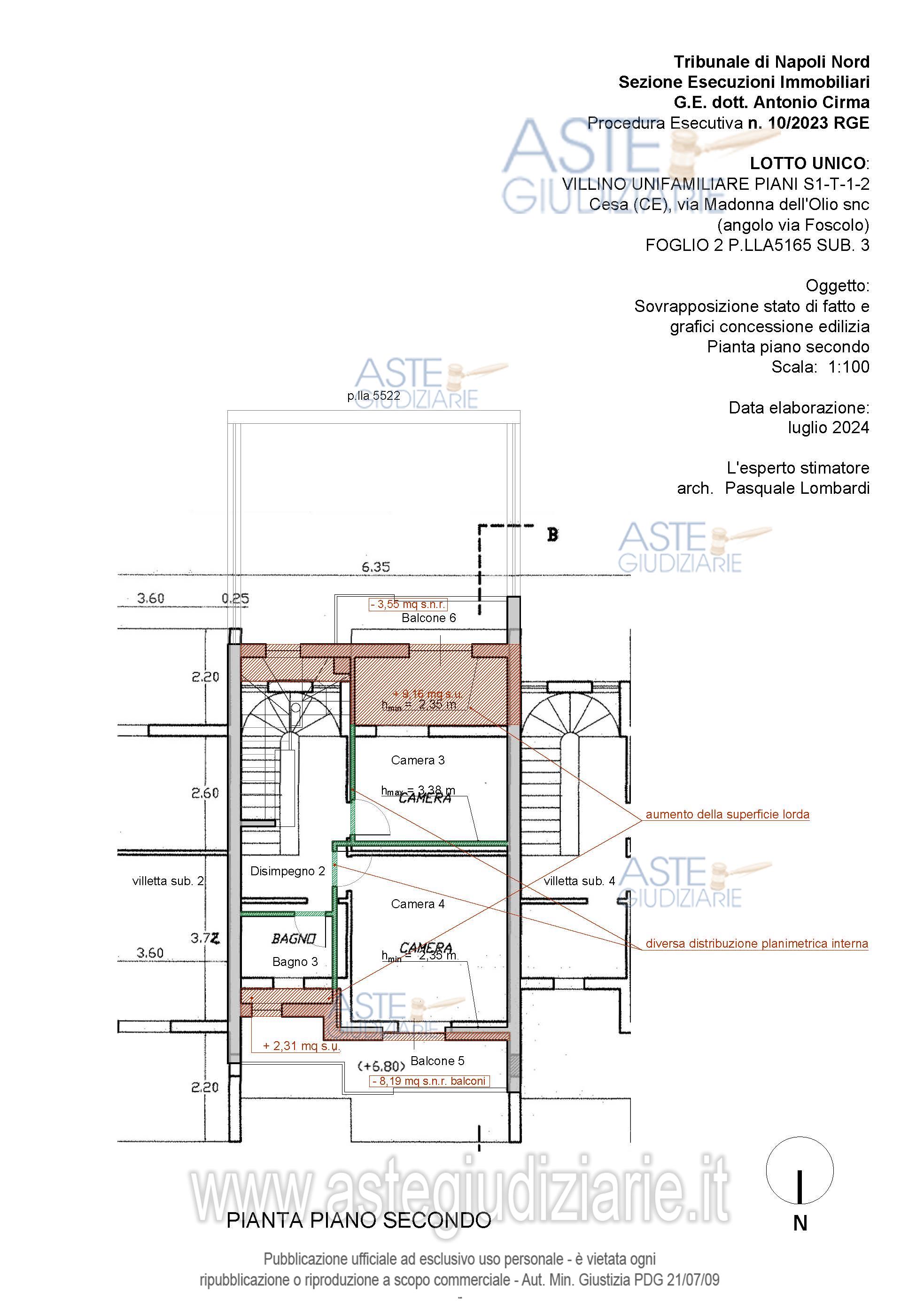
LOTTO UNICO: PIENA ED INTERA PROPRIETÀ DI VILLINO UNIFAMILIARE, FACENTE PARTE DI UN PICCOLO COMPLESSO DI VILLINI A SCHIERA SITO NEL COMUNE DI CESA (CE) ALLA VIA MADONNA DELL’OLIO SNC AD ANGOLO CON VIA UGO FOSCOLO. SI ARTICOLA IN UN LIVELLO SEMINTERRATO E TRE LIVELLI FUORI TERRA.

Indirizzo
Via Madonna dell'Olio, Cesa CE, Italia, Cesa (CE)


Codice asta
4323062


Lotto
Lotto unico


Numero beni
1


Genere
Immobili


Categoria
Immobile residenziale


Valore di stima
-


Abitazione di tipo civile

LOTTO UNICO: PIENA ED INTERA PROPRIETÀ DI VILLINO UNIFAMILIARE, FACENTE PARTE DI UN PICCOLO COMPLESSO DI VILLINI A SCHIERA SITO NEL COMUNE DI CESA (CE) ALLA VIA MADONNA DELL’OLIO SNC AD ANGOLO CON VIA UGO FOSCOLO. SI ARTICOLA IN UN LIVELLO SEMINTERRATO E TRE LIVELLI FUORI TERRA.

Indirizzo
Via Madonna dell'Olio, Cesa CE, Italia, Cesa (CE)


Piano
-


Disponibilità
OCCUPATO


Vani
7,50


Bagni
-


Metri quadri
192,00


Certificazione energetica
-


Dati catastali

Foglio:2, Particella:5165, Subalterno:3


Data udienza
24/02/2026 ore 16:30


Tipo di vendita
Senza incanto


Modalità di vendita
Asincrona telematica


Luogo
-


Luogo presentazione offerte
-


Termine presentazione offerte
23/02/2026 ore 23:59


Prezzo base
€ 138.000,00


Offerta minima
€ 103.500,00


Rialzo minimo in caso di gara
€ 5.000,00


Deposito cauzionale
20% del prezzo offerto


Deposito in conto spese
-


Tribunale
Napoli Nord

Tipo di procedura
Esecuzione immobiliare post legge 80

Ruolo
10/2023

Delegato alla vendita
Savona Giuseppe
(Procede alle operazioni di vendita)
(Gestisce la visita del bene)

Recapiti
-

Scheda COD. 4323062 - Pubblicata dal 18/12/2025

La presente scheda di vendita riporta integralmente informazioni e documenti pervenuti ufficialmente dal Ministero e dal professionista incaricato.

Pubblicazione notarizzata su Blockchain


Pubblicazione autorizzata dall’Autorità competente, è vietata ogni ripubblicazione o riproduzione anche parziale


Ti interessa questa vendita?

Documentazione

Visualizza su mappa

Mappa geografica del bene

Storico delle vendite

Data venditaPrezzo base
20/05/2025€ 138.000,00
24/02/2026€ 138.000,00

Punti di interesse

Fonte dati

Nel raggio di {{range}}Km

Loading...
  • {{ getIcon(poi.type) }} {{ poi.localized }}: {{poi.count}}
  • {{ getIcon(poi.type) }} {{ poi.localized }}: {{poi.count}}
Dati non disponibili