Astegiudiziarie.it è parte di Rete Aste Network

Accedi o registrati

Non sei ancora registrato?

Oppure

Accedi

Abitazione di tipo civile

via Tavolese, 227, Certaldo (FI)

€ 107.100,00

Offerta minima € 80.325,00


Codice A4349035

Lotto 4

Data udienza 17/06/2026 ore 12:00

Termine presentazione offerte 16/06/2026 ore 23:59

Abitazione di tipo civile

via Tavolese, 227, Certaldo (FI)

€ 107.100,00

Offerta minima € 80.325,00


Codice A4349035

Lotto 4

Data udienza 17/06/2026 ore 12:00

Termine presentazione offerte 16/06/2026 ore 23:59

Ti interessa questa vendita?

Documentazione

Visualizza su mappa

Mappa geografica del bene

Punti di interesse

Fonte dati

Nel raggio di {{range}}Km

Loading...
  • {{ getIcon(poi.type) }} {{ poi.localized }}: {{poi.count}}
  • {{ getIcon(poi.type) }} {{ poi.localized }}: {{poi.count}}
Dati non disponibili

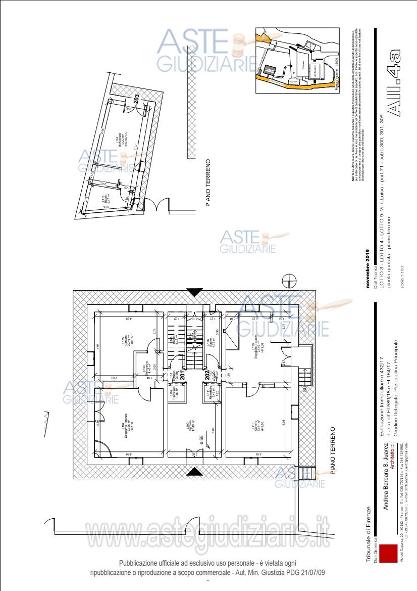
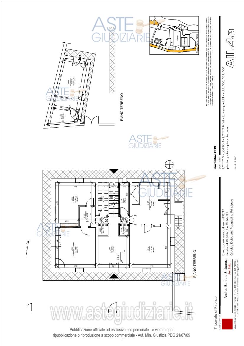
Piena proprietà di un appartamento ad uso civile abitazione posto al piano terreno e composto da ingresso, soggiorno-pranzo con angolo cottura, camera, bagno e ripostiglio, oltre porzione di terreno quale resede a comune ad altre unità.

Indirizzo
via Tavolese, 227, Certaldo (FI)


Codice asta
4349035


Lotto
4


Numero beni
1


Genere
Immobili


Categoria
Immobile residenziale


Valore di stima
-


Abitazione di tipo civile

Piena proprietà di un appartamento ad uso civile abitazione posto al piano terreno e composto da ingresso, soggiorno-pranzo con angolo cottura, camera, bagno e ripostiglio, oltre porzione di terreno quale resede a comune ad altre unità.

Indirizzo
via Tavolese, 227, Certaldo (FI)


Piano
-


Disponibilità
LIBERO


Vani
-


Bagni
-


Metri quadri
-


Certificazione energetica
-


Dati catastali

Foglio:36, Sezione:C.U., Particella:71, Subalterno:301
Foglio:36, Sezione:C.T., Particella:266


Data udienza
17/06/2026 ore 12:00


Tipo di vendita
Senza incanto


Modalità di vendita
Sincrona telematica


Luogo
N.A. -


Luogo presentazione offerte
-


Termine presentazione offerte
16/06/2026 ore 23:59


Prezzo base
€ 107.100,00


Offerta minima
€ 80.325,00


Rialzo minimo in caso di gara
€ 3.250,00


Deposito cauzionale
-


Deposito in conto spese
-


Tribunale
Firenze

Tipo di procedura
Esecuzione immobiliare post legge 80

Ruolo
164/2017

Delegato alla vendita
Biagiotti Ilaria
(Procede alle operazioni di vendita)

Recapiti
Tel. 055473590

Email
avv.ilariabiagiotti@gmail.com

Custode giudiziario
Istituto vendite giudiziarie di firenze 
(Gestisce la visita del bene)

Recapiti
Tel. 0552340830

Scheda COD. 4349035 - Pubblicata dal 15/04/2026

La presente scheda di vendita riporta integralmente informazioni e documenti pervenuti ufficialmente dal Ministero e dal professionista incaricato.

Pubblicazione notarizzata su Blockchain


Pubblicazione autorizzata dall’Autorità competente, è vietata ogni ripubblicazione o riproduzione anche parziale


Ti interessa questa vendita?

Documentazione

Visualizza su mappa

Mappa geografica del bene

Punti di interesse

Fonte dati

Nel raggio di {{range}}Km

Loading...
  • {{ getIcon(poi.type) }} {{ poi.localized }}: {{poi.count}}
  • {{ getIcon(poi.type) }} {{ poi.localized }}: {{poi.count}}
Dati non disponibili