Astegiudiziarie.it è parte di Rete Aste Network

Accedi o registrati

Non sei ancora registrato?

Oppure

Accedi

giudiziariagiudiziariaTribunale di LIVORNOPROCEDURE CONCORSUALIFALLIMENTARE (NUOVO RITO)52023Soggetto specializzato alla venditaAste giudiziarie inlinea spaMNTGLC63E08E625Hvendite@astegiudiziarie.ittruetrueCuratoreMichele LorenzinifalsefalseGiudiceFranco Pastorellifalsefalse23694615IMMOBILIIMMOBILE RESIDENZIALEVia Gorizia, 2, 57023 Cecina LI, ItaliaCecinaLivornoToscanaItaliaUnità abitativa adibita a CAV completamente ammobiliata posta l piano terra e distinta con l’interno 13, con due posti auto scoperti, meglio descritta in avviso.3059929IMMOBILE RESIDENZIALEAPPARTAMENTOVia Gorizia, 2, 57023 Cecina LI, ItaliaCecinaLivornoToscanaItaliaUnità abitativa adibita a CAV completamente ammobiliata posta l piano terra e distinta con l’interno 13, con due posti auto scoperti, meglio descritta in avviso.832026-04-08T10:00:00SENZA INCANTOASINCRONA TELEMATICAN.A.164.775,00123.580,003.000,002026-04-07T12:00:00gestore delle venditehttp://www.astetelematiche.ithttp://www.astetelematiche.itsito pubblicitahttps://www.astegiudiziarie.ithttps://www.astegiudiziarie.it2025-12-19

Appartamento

Via Gorizia, 2, 57023 Cecina LI, Italia, Cecina (LI)

€ 164.775,00

Offerta minima € 123.580,00


Codice A4341777

Lotto 5

Data udienza 08/04/2026 ore 10:00

Termine presentazione offerte 07/04/2026 ore 12:00

Appartamento

Via Gorizia, 2, 57023 Cecina LI, Italia, Cecina (LI)

€ 164.775,00

Offerta minima € 123.580,00


Codice A4341777

Lotto 5

Data udienza 08/04/2026 ore 10:00

Termine presentazione offerte 07/04/2026 ore 12:00

Ti interessa questa vendita?

Visualizza su mappa

Mappa geografica del bene

Punti di interesse

Fonte dati

Nel raggio di {{range}}Km

Loading...
  • {{ getIcon(poi.type) }} {{ poi.localized }}: {{poi.count}}
  • {{ getIcon(poi.type) }} {{ poi.localized }}: {{poi.count}}
Dati non disponibili

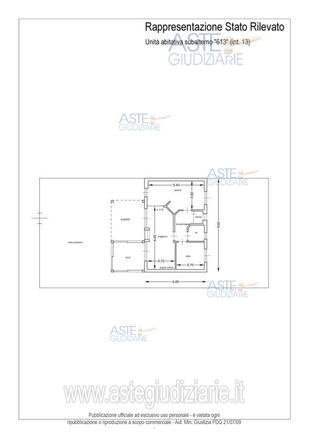
Unità abitativa adibita a CAV completamente ammobiliata posta l piano terra e distinta con l’interno 13, con due posti auto scoperti, meglio descritta in avviso.

Indirizzo
Via Gorizia, 2, 57023 Cecina LI, Italia, Cecina (LI)


Codice asta
4341777


Lotto
5


Numero beni
1


Genere
Immobili


Categoria
Immobile residenziale


Valore di stima
-


Appartamento

Unità abitativa adibita a CAV completamente ammobiliata posta l piano terra e distinta con l’interno 13, con due posti auto scoperti, meglio descritta in avviso.

Indirizzo
Via Gorizia, 2, 57023 Cecina LI, Italia, Cecina (LI)


Piano
-


Disponibilità
-


Vani
-


Bagni
-


Metri quadri
83,00


Certificazione energetica
-


Data udienza
08/04/2026 ore 10:00


Tipo di vendita
Senza incanto


Modalità di vendita
Asincrona telematica


Luogo
N.A. -


Luogo presentazione offerte
-


Termine presentazione offerte
07/04/2026 ore 12:00


Prezzo base
€ 164.775,00


Offerta minima
€ 123.580,00


Rialzo minimo in caso di gara
€ 3.000,00


Deposito cauzionale
-


Deposito in conto spese
-


Tribunale
Livorno

Tipo di procedura
Fallimentare (nuovo rito)

Ruolo
5/2023

Giudice
Pastorelli Franco

Recapiti
-

Email
-

Soggetto specializzato alla vendita
Aste giudiziarie inlinea spa 
(Procede alle operazioni di vendita)
(Gestisce la visita del bene)

Recapiti
Tel. 0586 20141

Curatore
Lorenzini Michele

Recapiti
-

Email
-

Scheda COD. 4341777 - Pubblicata dal 19/12/2025

La presente scheda di vendita riporta integralmente informazioni e documenti pervenuti ufficialmente dal Ministero e dal professionista incaricato.


Pubblicazione autorizzata dall’Autorità competente, è vietata ogni ripubblicazione o riproduzione anche parziale



Attenzione: Non è dovuto alcun compenso (né a titolo di intermediazione, né per vedere l’immobile, né per ricevere istruzioni sulle modalità di presentazione dell’offerta, né a nessun altro titolo), se ci si rivolge a persone incaricate dal Tribunale (custode, professionista delegato, curatore, società incaricata di gestire la vendita). La pubblicità relativa a questo bene immobile, venduto dal Tribunale nella procedura indicata, potrebbe essere inserita su portali immobiliari, anche da altri soggetti non incaricati dal Tribunale. Se l’interessato all’acquisto si rivolge a questi ultimi, potrebbe essergli richiesto di pagare spese o compensi di mediazione o consulenza.


Ti interessa questa vendita?

Visualizza su mappa

Mappa geografica del bene

Punti di interesse

Fonte dati

Nel raggio di {{range}}Km

Loading...
  • {{ getIcon(poi.type) }} {{ poi.localized }}: {{poi.count}}
  • {{ getIcon(poi.type) }} {{ poi.localized }}: {{poi.count}}
Dati non disponibili