Astegiudiziarie.it è parte di Rete Aste Network

Accedi o registrati

Non sei ancora registrato?

Oppure

Accedi

Abitazione di tipo signorile

Via Celleta s.n.c., Ceccano (FR)

€ 366.791,25

Offerta minima € 275.093,44


Codice A4339623

Lotto 1

Data udienza 17/06/2026 ore 16:39

Termine presentazione offerte 16/06/2026 ore 12:00

Abitazione di tipo signorile

Via Celleta s.n.c., Ceccano (FR)

€ 366.791,25

Offerta minima € 275.093,44


Codice A4339623

Lotto 1

Data udienza 17/06/2026 ore 16:39

Termine presentazione offerte 16/06/2026 ore 12:00

Ti interessa questa vendita?

Documentazione

Visualizza su mappa

Mappa geografica del bene

Punti di interesse

Fonte dati

Nel raggio di {{range}}Km

Loading...
  • {{ getIcon(poi.type) }} {{ poi.localized }}: {{poi.count}}
  • {{ getIcon(poi.type) }} {{ poi.localized }}: {{poi.count}}
Dati non disponibili

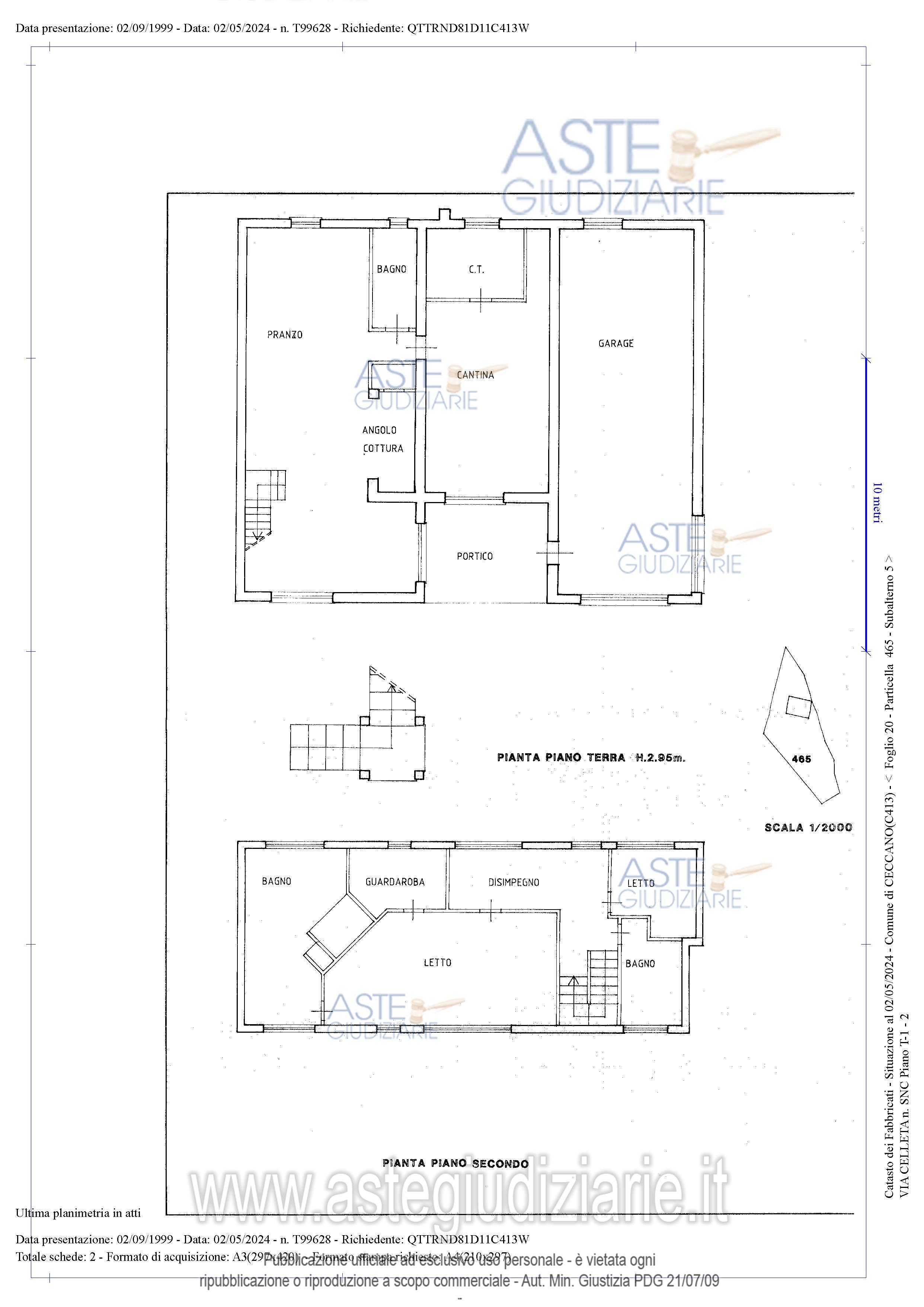
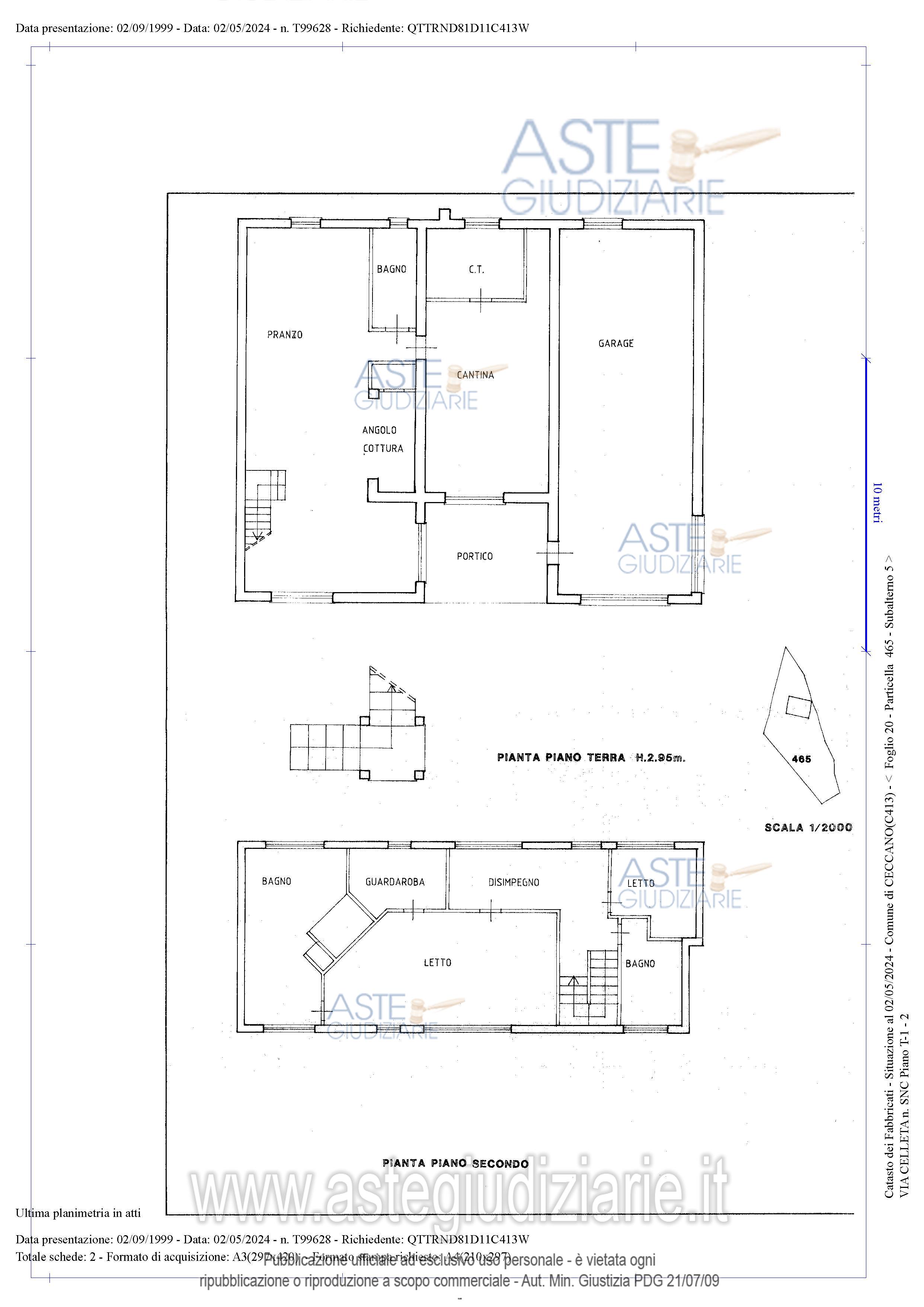
Piena proprietà della villa indipendente su tre piani fuori terra con giardino, viale di accesso e corte pavimentata

Indirizzo
Via Celleta s.n.c., Ceccano (FR)


Codice asta
4339623


Lotto
1


Numero beni
1


Genere
Immobili


Categoria
Immobile residenziale


Valore di stima
-


Abitazione di tipo signorile

Villa indipendente su tre piani fuori terra con giardino, viale di accesso e corte pavimentata

Indirizzo
Via Celleta s.n.c., Ceccano (FR)


Piano
5


Disponibilità
-


Vani
0,00


Bagni
-


Metri quadri
4288,05


Certificazione energetica
-


Dati catastali

Foglio:20, Sezione:NCEU , Particella:465
Foglio:20, Sezione:NCT, Particella:64
Foglio:20, Sezione:NCT, Particella:413


Data udienza
17/06/2026 ore 16:39


Tipo di vendita
Senza incanto


Modalità di vendita
Asincrona telematica


Luogo
N.A. -


Luogo presentazione offerte
-


Termine presentazione offerte
16/06/2026 ore 12:00


Prezzo base
€ 366.791,25


Offerta minima
€ 275.093,44


Rialzo minimo in caso di gara
€ 15.000,00


Deposito cauzionale
10% del prezzo offerto


Deposito in conto spese
-


Tribunale
Frosinone

Tipo di procedura
Espropriazione immobiliare (cartabia)

Ruolo
31/2024

Giudice
Di nicola Simona

Recapiti
-

Email
-

Delegato alla vendita
Originale Loredana
(Procede alle operazioni di vendita)

Recapiti
Cell. 3397203820
Tel. 0775872473

Email
avvocato@loredanaoriginale.com

Custode giudiziario
Originale Loredana
(Gestisce la visita del bene)

Recapiti
Cell. 3397203820
Tel. 0775872473

Scheda COD. 4339623 - Pubblicata dal 13/04/2026

La presente scheda di vendita riporta integralmente informazioni e documenti pervenuti ufficialmente dal Ministero e dal professionista incaricato.


Pubblicazione autorizzata dall’Autorità competente, è vietata ogni ripubblicazione o riproduzione anche parziale


Ti interessa questa vendita?

Documentazione

Visualizza su mappa

Mappa geografica del bene

Storico delle vendite

Data venditaPrezzo base
01/04/2026€ 489.055,00
17/06/2026€ 366.791,25

Punti di interesse

Fonte dati

Nel raggio di {{range}}Km

Loading...
  • {{ getIcon(poi.type) }} {{ poi.localized }}: {{poi.count}}
  • {{ getIcon(poi.type) }} {{ poi.localized }}: {{poi.count}}
Dati non disponibili