Astegiudiziarie.it è parte di Rete Aste Network

Accedi o registrati

Non sei ancora registrato?

Oppure

Accedi

Abitazione di tipo economico

via degli Svevi, 120, Catanzaro (CZ)

€ 27.360,00

Offerta minima € 20.520,00


Codice A4329025

Lotto 1

Data udienza 26/05/2026 ore 15:30

Termine presentazione offerte 25/05/2026 ore 12:00

Abitazione di tipo economico

via degli Svevi, 120, Catanzaro (CZ)

€ 27.360,00

Offerta minima € 20.520,00


Codice A4329025

Lotto 1

Data udienza 26/05/2026 ore 15:30

Termine presentazione offerte 25/05/2026 ore 12:00

Ti interessa questa vendita?

Documentazione

Visualizza su mappa

Mappa geografica del bene

Punti di interesse

Fonte dati

Nel raggio di {{range}}Km

Loading...
  • {{ getIcon(poi.type) }} {{ poi.localized }}: {{poi.count}}
  • {{ getIcon(poi.type) }} {{ poi.localized }}: {{poi.count}}
Dati non disponibili

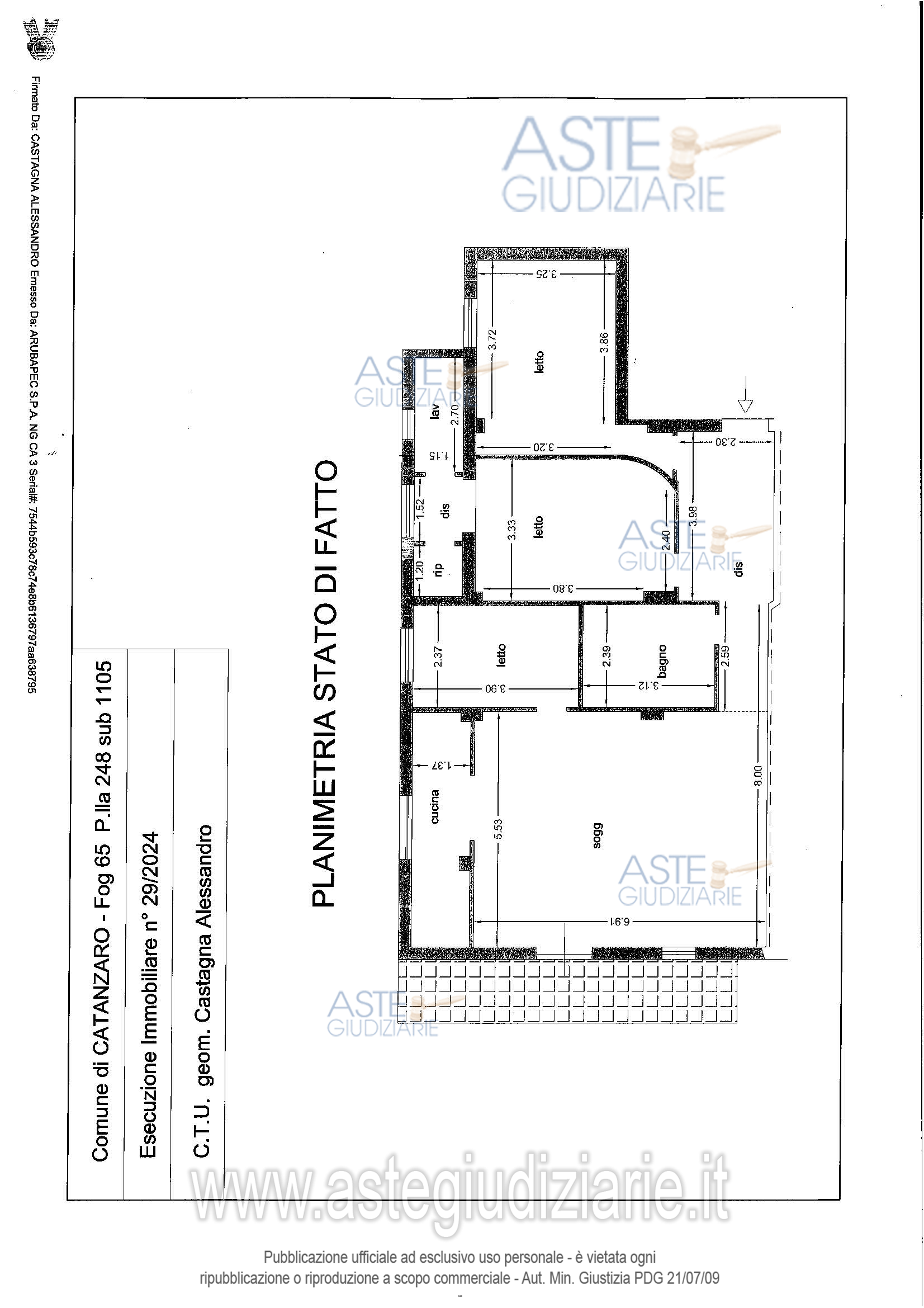
Unità immobiliare ad uso residenziale, cat A/3, consistenza vani 4, composta da un soggiorno con annessa cucina, tre vani letto, bagno, corridoio, per una superficie complessiva di circa mq 111,30.

Indirizzo
via degli Svevi, 120, Catanzaro (CZ)


Codice asta
4329025


Lotto
1


Numero beni
1


Genere
Immobili


Categoria
Immobile residenziale


Valore di stima
-


Abitazione di tipo economico

Unità immobiliare ad uso residenziale, cat A/3, consistenza vani 4, composta da un soggiorno con annessa cucina, tre vani letto, bagno, corridoio, per una superficie complessiva di circa mq 111,30.

Indirizzo
via degli Svevi, 120, Catanzaro (CZ)


Piano
T


Disponibilità
-


Vani
4,00


Bagni
-


Metri quadri
111,30


Certificazione energetica
-


Dati catastali

Foglio:65, Particella:248, Subalterno:1105


Data udienza
26/05/2026 ore 15:30


Tipo di vendita
Senza incanto


Modalità di vendita
Asincrona telematica


Luogo
N.A. -


Luogo presentazione offerte
-


Termine presentazione offerte
25/05/2026 ore 12:00


Prezzo base
€ 27.360,00


Offerta minima
€ 20.520,00


Rialzo minimo in caso di gara
€ 1.000,00


Deposito cauzionale
10% del prezzo offerto


Deposito in conto spese
-


Tribunale
Catanzaro

Tipo di procedura
Espropriazione immobiliare (cartabia)

Ruolo
29/2024

Giudice
Di credico Chiara

Recapiti
-

Email
-

Delegato alla vendita
Consarino Claudia
(Procede alle operazioni di vendita)

Recapiti
Tel. 3281536999

Email
claudia.consarino@gmail.com

Custode giudiziario
Consarino Claudia
(Gestisce la visita del bene)

Recapiti
Tel. 3281536999

Scheda COD. 4329025 - Pubblicata dal 11/03/2026

La presente scheda di vendita riporta integralmente informazioni e documenti pervenuti ufficialmente dal Ministero e dal professionista incaricato.


Pubblicazione autorizzata dall’Autorità competente, è vietata ogni ripubblicazione o riproduzione anche parziale


Ti interessa questa vendita?

Documentazione

Visualizza su mappa

Mappa geografica del bene

Storico delle vendite

Data venditaPrezzo base
22/07/2025€ 57.000,00
18/11/2025€ 42.750,00
24/02/2026€ 34.200,00
26/05/2026€ 27.360,00

Punti di interesse

Fonte dati

Nel raggio di {{range}}Km

Loading...
  • {{ getIcon(poi.type) }} {{ poi.localized }}: {{poi.count}}
  • {{ getIcon(poi.type) }} {{ poi.localized }}: {{poi.count}}
Dati non disponibili