Astegiudiziarie.it è parte di Rete Aste Network

Accedi o registrati

Non sei ancora registrato?

Oppure

Accedi

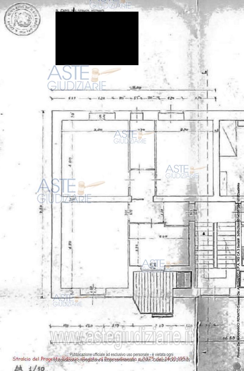
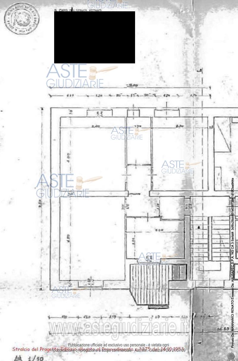
Abitazione di tipo popolare

Viale Lorenzo Bolano, 3, 95122 Catania CT, Italia, Catania (CT)

€ 61.000,00

Offerta minima € 45.750,00


Codice A4348928

Lotto Lotto unico

Data udienza 04/06/2026 ore 10:30

Termine presentazione offerte 03/06/2026 ore 13:00

Abitazione di tipo popolare

Viale Lorenzo Bolano, 3, 95122 Catania CT, Italia, Catania (CT)

€ 61.000,00

Offerta minima € 45.750,00


Codice A4348928

Lotto Lotto unico

Data udienza 04/06/2026 ore 10:30

Termine presentazione offerte 03/06/2026 ore 13:00

Ti interessa questa vendita?

Documentazione

Visualizza su mappa

Mappa geografica del bene

Punti di interesse

Fonte dati

Nel raggio di {{range}}Km

Loading...
  • {{ getIcon(poi.type) }} {{ poi.localized }}: {{poi.count}}
  • {{ getIcon(poi.type) }} {{ poi.localized }}: {{poi.count}}
Dati non disponibili

appartamento di tipo popolare in condominio

Indirizzo
Viale Lorenzo Bolano, 3, 95122 Catania CT, Italia, Catania (CT)


Codice asta
4348928


Lotto
Lotto unico


Numero beni
1


Genere
Immobili


Categoria
Immobile residenziale


Valore di stima
-


Abitazione di tipo popolare

appartamento di tipo popolare in condominio

Indirizzo
Viale Lorenzo Bolano, 3, 95122 Catania CT, Italia, Catania (CT)


Piano
primo


Disponibilità
IN CORSO DI LIBERAZIONE


Vani
4,50


Bagni
-


Metri quadri
79,00


Certificazione energetica
-


Dati catastali

Foglio:20, Particella:2593, Subalterno:12


Data udienza
04/06/2026 ore 10:30


Tipo di vendita
Senza incanto


Modalità di vendita
Sincrona telematica


Luogo
N.A. -


Luogo presentazione offerte
-


Termine presentazione offerte
03/06/2026 ore 13:00


Prezzo base
€ 61.000,00


Offerta minima
€ 45.750,00


Rialzo minimo in caso di gara
€ 1.800,00


Deposito cauzionale
10% del prezzo offerto


Deposito in conto spese
-


Tribunale
Catania

Tipo di procedura
Espropriazione immobiliare (cartabia)

Ruolo
389/2023

Delegato alla vendita
Gemma Annibale federico
(Procede alle operazioni di vendita)
(Gestisce la visita del bene)

Recapiti
Cell. 3479795526
Tel. 095446983

Scheda COD. 4348928 - Pubblicata dal 08/04/2026

La presente scheda di vendita riporta integralmente informazioni e documenti pervenuti ufficialmente dal Ministero e dal professionista incaricato.


Pubblicazione autorizzata dall’Autorità competente, è vietata ogni ripubblicazione o riproduzione anche parziale


Ti interessa questa vendita?

Documentazione

Visualizza su mappa

Mappa geografica del bene

Punti di interesse

Fonte dati

Nel raggio di {{range}}Km

Loading...
  • {{ getIcon(poi.type) }} {{ poi.localized }}: {{poi.count}}
  • {{ getIcon(poi.type) }} {{ poi.localized }}: {{poi.count}}
Dati non disponibili