Astegiudiziarie.it è parte di Rete Aste Network

Accedi o registrati

Non sei ancora registrato?

Oppure

Accedi

Abitazione di tipo civile

Via Macello, 25, 95123 Catania CT, Italia, Catania (CT)

€ 71.000,00

Offerta minima € 53.250,00


Codice A4339029

Lotto 2

Data udienza 14/01/2026 ore 15:00

Termine presentazione offerte 13/01/2026 ore 13:00

Abitazione di tipo civile

Via Macello, 25, 95123 Catania CT, Italia, Catania (CT)

€ 71.000,00

Offerta minima € 53.250,00


Codice A4339029

Lotto 2

Data udienza 14/01/2026 ore 15:00

Termine presentazione offerte 13/01/2026 ore 13:00

Ti interessa questa vendita?

Documentazione

Visualizza su mappa

Mappa geografica del bene

Punti di interesse

Fonte dati

Nel raggio di {{range}}Km

Loading...
  • {{ getIcon(poi.type) }} {{ poi.localized }}: {{poi.count}}
  • {{ getIcon(poi.type) }} {{ poi.localized }}: {{poi.count}}
Dati non disponibili

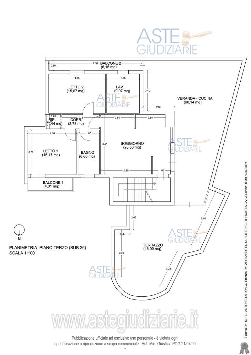
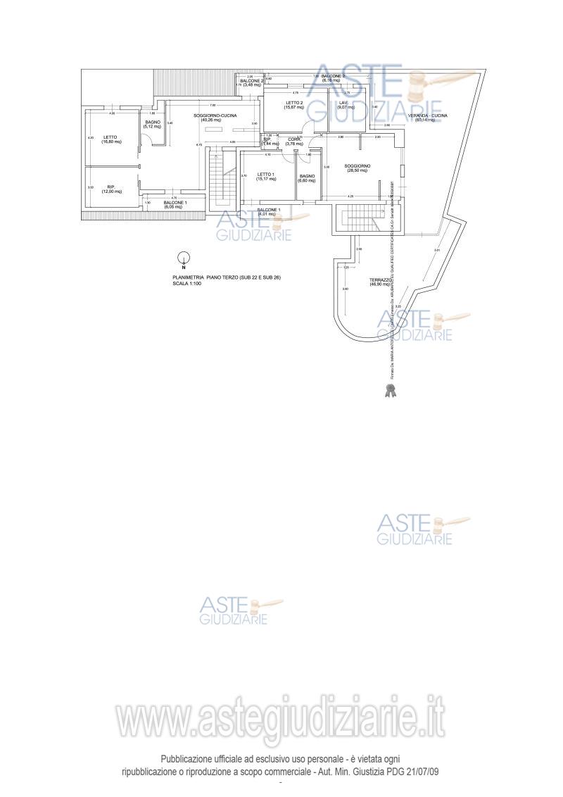
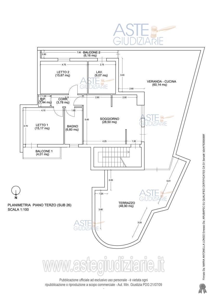
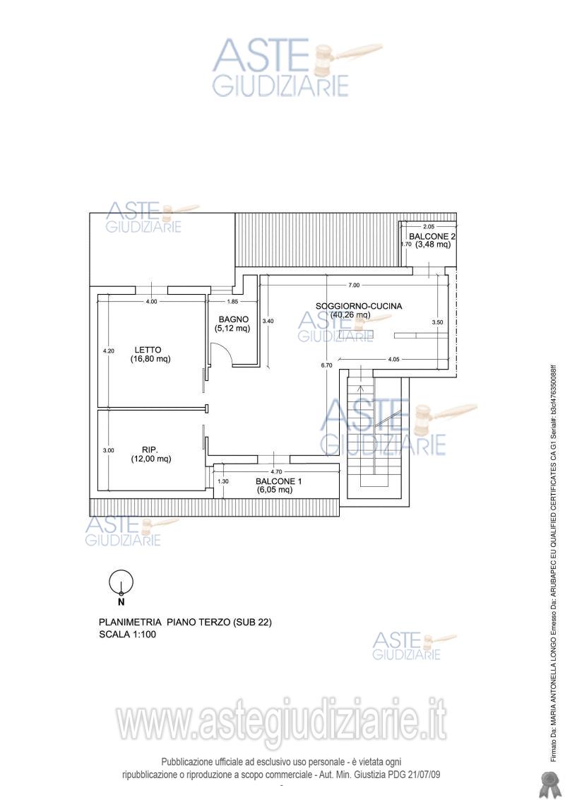
Unità immobiliare al piano terzo, scala D, interno 25 di 4,5 vani catastali.

Indirizzo
Via Macello, 25, 95123 Catania CT, Italia, Catania (CT)


Codice asta
4339029


Lotto
2


Numero beni
1


Genere
Immobili


Categoria
Immobile residenziale


Valore di stima
-


Abitazione di tipo civile

Unità immobiliare al piano terzo, scala D, interno 25 di 4,5 vani catastali.

Indirizzo
Via Macello, 25, 95123 Catania CT, Italia, Catania (CT)


Piano
3


Disponibilità
LIBERO


Vani
4,50


Bagni
-


Metri quadri
-


Certificazione energetica
-


Data udienza
14/01/2026 ore 15:00


Tipo di vendita
Senza incanto


Modalità di vendita
Sincrona telematica


Luogo
N.A. -


Luogo presentazione offerte
-


Termine presentazione offerte
13/01/2026 ore 13:00


Prezzo base
€ 71.000,00


Offerta minima
€ 53.250,00


Rialzo minimo in caso di gara
€ 2.000,00


Deposito cauzionale
10% del prezzo offerto


Deposito in conto spese
-


Tribunale
Catania

Tipo di procedura
Liquidazione controllata(cci)

Ruolo
32/2025

Giudice
Messina Laura

Recapiti
-

Email
-

Liquidatore giudiziale
Bua Epifanio massimo
(Procede alle operazioni di vendita)
(Gestisce la visita del bene)

Recapiti
-

Scheda COD. 4339029 - Pubblicata dal 07/11/2025

La presente scheda di vendita riporta integralmente informazioni e documenti pervenuti ufficialmente dal Ministero e dal professionista incaricato.

Pubblicazione notarizzata su Blockchain


Pubblicazione autorizzata dall’Autorità competente, è vietata ogni ripubblicazione o riproduzione anche parziale


Ti interessa questa vendita?

Documentazione

Visualizza su mappa

Mappa geografica del bene

Punti di interesse

Fonte dati

Nel raggio di {{range}}Km

Loading...
  • {{ getIcon(poi.type) }} {{ poi.localized }}: {{poi.count}}
  • {{ getIcon(poi.type) }} {{ poi.localized }}: {{poi.count}}
Dati non disponibili