Astegiudiziarie.it è parte di Rete Aste Network

Accedi o registrati

Non sei ancora registrato?

Oppure

Accedi

Abitazione di tipo popolare

VIA DELLE GEMME N.55, Catania (CT)

€ 38.050,00

Offerta minima € 28.537,50


Codice A4347597

Lotto 1

Data udienza 23/06/2026 ore 10:00

Termine presentazione offerte 22/06/2026 ore 13:00

Abitazione di tipo popolare

VIA DELLE GEMME N.55, Catania (CT)

€ 38.050,00

Offerta minima € 28.537,50


Codice A4347597

Lotto 1

Data udienza 23/06/2026 ore 10:00

Termine presentazione offerte 22/06/2026 ore 13:00

Ti interessa questa vendita?

Documentazione

Visualizza su mappa

Mappa geografica del bene

Punti di interesse

Fonte dati

Nel raggio di {{range}}Km

Loading...
  • {{ getIcon(poi.type) }} {{ poi.localized }}: {{poi.count}}
  • {{ getIcon(poi.type) }} {{ poi.localized }}: {{poi.count}}
Dati non disponibili

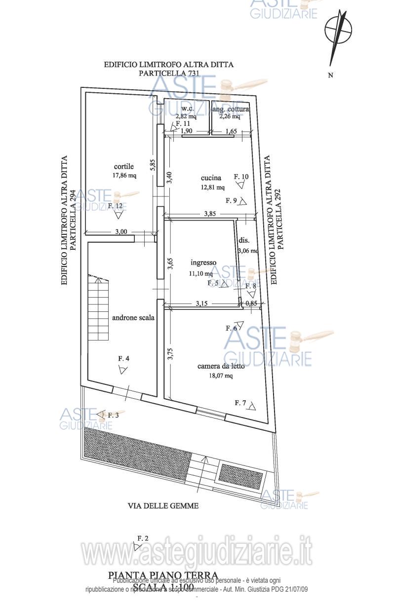
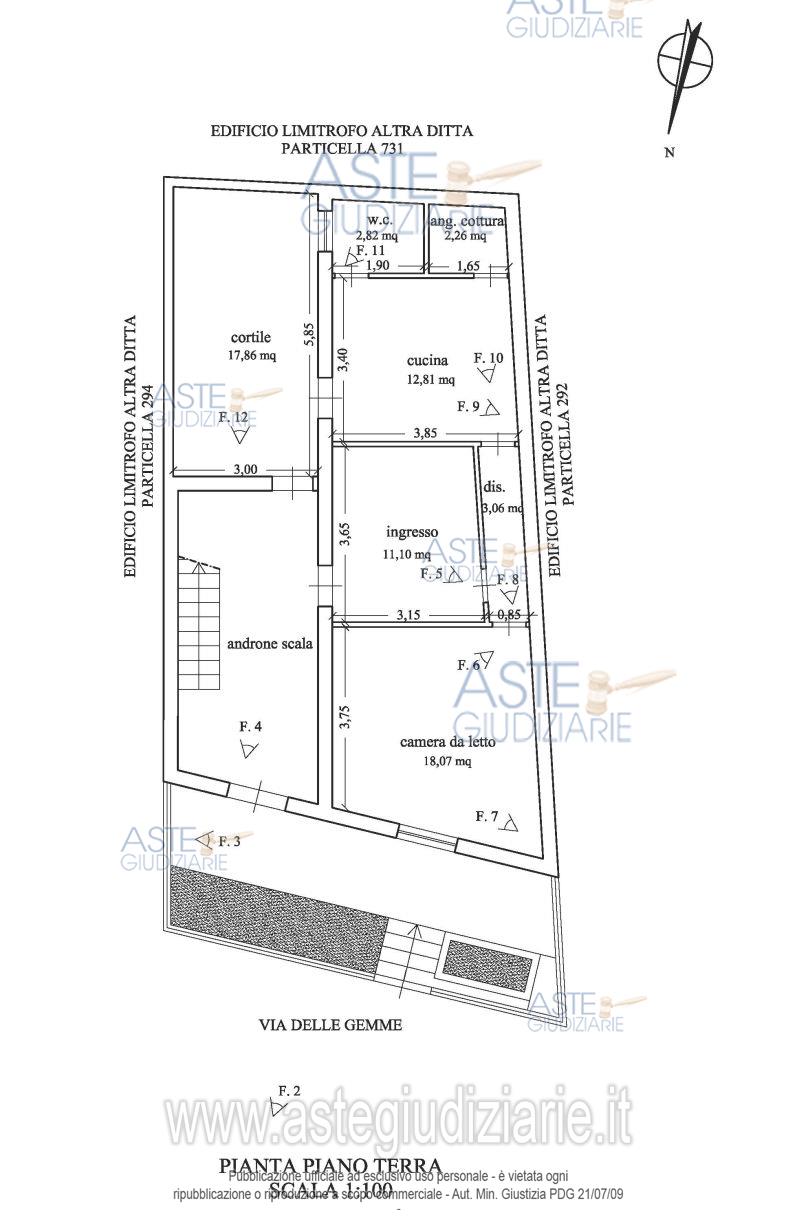
LOTTO 1) Piena proprietà dell’appartamento per civile abitazione sito a Catania, Via delle Gemme 55, posto al piano terra, composto da un ingresso, una camera da letto, un disimpegno, oltre angolo cottura, wc, cucina e un cortile interno di esclusiva pertinenza.

Indirizzo
VIA DELLE GEMME N.55, Catania (CT)


Codice asta
4347597


Lotto
1


Numero beni
1


Genere
Immobili


Categoria
Immobile residenziale


Valore di stima
-


Abitazione di tipo popolare

LOTTO 1) Piena proprietà dell’appartamento per civile abitazione sito a Catania, Via delle Gemme 55, posto al piano terra, composto da un ingresso, una camera da letto, un disimpegno, oltre angolo cottura, wc, cucina e un cortile interno di esclusiva pertinenza.

Indirizzo
VIA DELLE GEMME N.55, Catania (CT)


Piano
-


Disponibilità
-


Vani
4,50


Bagni
-


Metri quadri
76,00


Certificazione energetica
-


Dati catastali

Foglio:102, Particella:209, Subalterno:1


Data udienza
23/06/2026 ore 10:00


Tipo di vendita
Senza incanto


Modalità di vendita
Sincrona telematica


Luogo
N.A. -


Luogo presentazione offerte
-


Termine presentazione offerte
22/06/2026 ore 13:00


Prezzo base
€ 38.050,00


Offerta minima
€ 28.537,50


Rialzo minimo in caso di gara
€ 1.000,00


Deposito cauzionale
10% del prezzo offerto


Deposito in conto spese
-


Tribunale
Catania

Tipo di procedura
Esecuzione immobiliare post legge 80

Ruolo
91/2023

Delegato alla vendita
Furia Daniela
(Procede alle operazioni di vendita)
(Gestisce la visita del bene)

Recapiti
Tel. 095388875

Scheda COD. 4347597 - Pubblicata dal 19/03/2026

La presente scheda di vendita riporta integralmente informazioni e documenti pervenuti ufficialmente dal Ministero e dal professionista incaricato.


Pubblicazione autorizzata dall’Autorità competente, è vietata ogni ripubblicazione o riproduzione anche parziale


Ti interessa questa vendita?

Documentazione

Visualizza su mappa

Mappa geografica del bene

Punti di interesse

Fonte dati

Nel raggio di {{range}}Km

Loading...
  • {{ getIcon(poi.type) }} {{ poi.localized }}: {{poi.count}}
  • {{ getIcon(poi.type) }} {{ poi.localized }}: {{poi.count}}
Dati non disponibili