Astegiudiziarie.it è parte di Rete Aste Network

Accedi o registrati

Non sei ancora registrato?

Oppure

Accedi

Abitazione di tipo popolare, stalle, scuderie, rimesse, autorimesse, terreno

Contrada Melia Marinella, Castronovo di Sicilia (PA)

€ 256.423,36

Offerta minima € 192.317,52


Codice A4322774

Lotto 01

Data udienza 11/06/2026 ore 10:00

Termine presentazione offerte 10/06/2026 ore 17:00

Abitazione di tipo popolare, stalle, scuderie, rimesse, autorimesse, terreno

Contrada Melia Marinella, Castronovo di Sicilia (PA)

€ 256.423,36

Offerta minima € 192.317,52


Codice A4322774

Lotto 01

Data udienza 11/06/2026 ore 10:00

Termine presentazione offerte 10/06/2026 ore 17:00

Ti interessa questa vendita?

Documentazione

Visualizza su mappa

Mappa geografica del bene

Punti di interesse

Fonte dati

Nel raggio di {{range}}Km

Loading...
  • {{ getIcon(poi.type) }} {{ poi.localized }}: {{poi.count}}
  • {{ getIcon(poi.type) }} {{ poi.localized }}: {{poi.count}}
Dati non disponibili

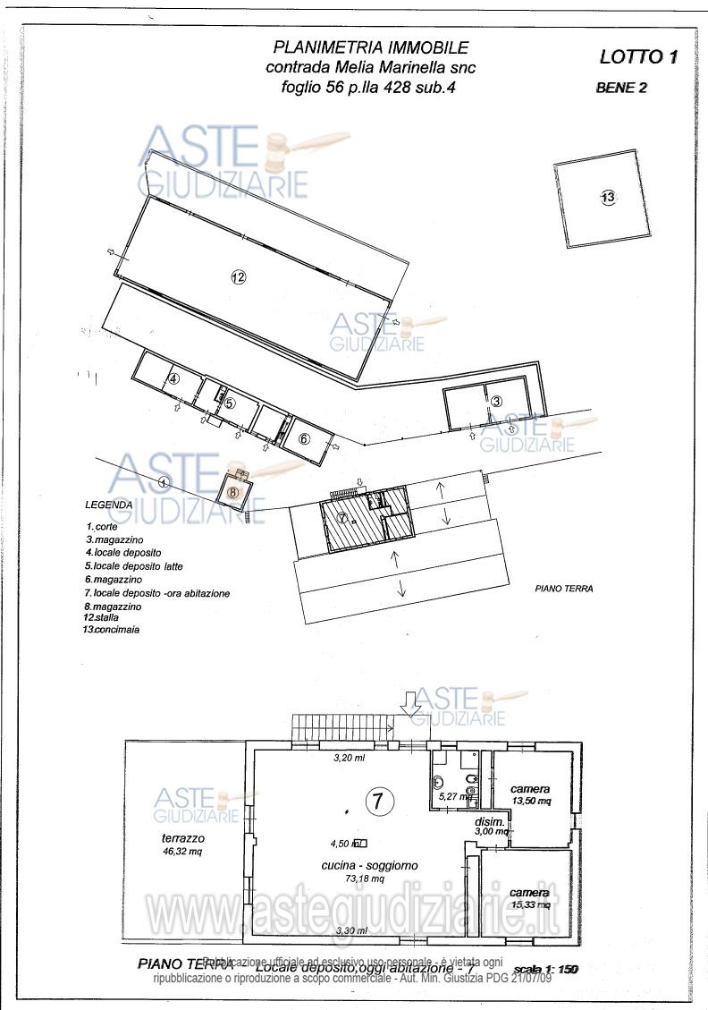
Il LOTTO 1, sito a Castronovo di Sicilia, cont. Melia Marinella snc., è formato da: BENE 1: Abit. resid. di tipo pop., ident. al foglio n. 56, p.lla 428 sub 2 cat. A/4, piano T e 1;BENE 2:Azienda agricola cost. da magazz., locali depos., locale lav. latte, sala mungitura, stalle, locale deposito oggi ad uso abit., concimaia censita al foglio n.56, p.lla 428 sub. 4, cat. D/10;BENE 3: Fienile e corte, censito al foglio n.56, p.lla 428 sub. 5, cat.D/10;BENE 4: Terreno Agri., censito al foglio n.56, p.lla 468.

Indirizzo
Contrada Melia Marinella, Castronovo di Sicilia (PA)


Codice asta
4322774


Lotto
01


Numero beni
4


Genere
Immobili


Categoria
Immobile residenziale


Valore di stima
-


Abitazione di tipo popolare

BENE n. 1 - Costituito da Abitazione residenziale di tipo popolare, a due elevazioni fuori terra, sita nel Comune di Castronovo di Sicilia, contrada Melia Marinella snc, identificata al foglio di mappa n. 56, p.lla 428 sub 2 cat. A/4, piano terra e primo, rendita € 153,39, superficie catastale 102 mq. Si fa espresso rinvio alla Perizia di Stima per ciò che concerne l'esistenza di eventuali oneri e pesi a qualsiasi titolo gravanti, nonché in ordine alla regolarità edilizia / urbanistica.

Indirizzo
Contrada Melia Marinella, Castronovo di Sicilia (PA)


Piano
-


Disponibilità
OCCUPATO


Vani
-


Bagni
-


Metri quadri
102,00


Certificazione energetica
-


Dati catastali

Foglio:56, Particella:428, Subalterno:2


Stalle, scuderie, rimesse, autorimesse

BENE n. 2 – Azienda agricola sita nel Comune di Castronovo di Sicilia, contrada Melia Marinella snc, costituita da magazzini, locali deposito, locale lavorazione latte, sala mungitura, stalle, locale deposito oggi ad uso abitazione, corte, concimaia: censito al N.C.E.U. del Comune di Castronovo di Sicilia, al foglio di mappa n.56, p.lla 428 sub. 4, cat. D/10, rendita € 3974, Piano Terra – S1.Si fa espresso rinvio alla Perizia di Stima per ciò che concerne l'esistenza di eventuali oneri e pesi a qualsiasi titolo gravanti, nonché in ordine alla regolarità edilizia / urbanistica.

Indirizzo
N.A., ()


Piano
-


Disponibilità
OCCUPATO


Vani
-


Bagni
-


Metri quadri
-


Certificazione energetica
-


Dati catastali

Foglio:56, Particella:428, Subalterno:4


Stalle, scuderie, rimesse, autorimesse

BENE n. 3 - Costituito da fienile e corte, siti nel Comune di Castronovo di Sicilia, contrada Melia Marinella snc, censito al N.C.E.U. del Comune di Castronovo di Sicilia, al foglio di mappa n.56, p.lla 428 sub. 5, cat. D/10, superficie convenzionale complessiva 422,25 mq, rendita € 1444, P.T. Si fa espresso rinvio alla Perizia di Stima per ciò che concerne l'esistenza di eventuali oneri e pesi a qualsiasi titolo gravanti, nonché in ordine alla regolarità edilizia / urbanistica.

Indirizzo
N.A., ()


Piano
-


Disponibilità
OCCUPATO


Vani
-


Bagni
-


Metri quadri
-


Certificazione energetica
-


Dati catastali

Foglio:56, Particella:428, Subalterno:5


Terreno

BENE n. 4 - Costituito da Terreno Agricolo, sito nel Comune di Castronovo di Sicilia, contrada Melia Marinella snc censito al N.C.T. del Comune di Castronovo di Sicilia, identificato nel foglio n.56, p.lla 468, classe colturale catastale di tipo ULIVETO per 189,00 mq e SEMINATIVO per 45.116,00 mq, allo stato attuale è seminativo con qualche albero di ulivo, superficie 45.305,00 mq, reddito dominicale € 187,08, reddito agrario € 70,53. Si fa espresso rinvio alla Perizia di Stima per ciò che concerne l'esistenza di eventuali oneri e pesi a qualsiasi titolo gravanti, nonché in ordine alla regolarità edilizia / urbanistica.

Indirizzo
N.A., ()


Piano
-


Disponibilità
OCCUPATO


Vani
-


Bagni
-


Metri quadri
-


Certificazione energetica
-


Dati catastali

Foglio:56, Particella:468


Data udienza
11/06/2026 ore 10:00


Tipo di vendita
Senza incanto


Modalità di vendita
Sincrona telematica


Luogo
N.A. -


Luogo presentazione offerte
-


Termine presentazione offerte
10/06/2026 ore 17:00


Prezzo base
€ 256.423,36


Offerta minima
€ 192.317,52


Rialzo minimo in caso di gara
€ 2.500,00


Deposito cauzionale
-


Deposito in conto spese
-


Tribunale
Termini Imerese

Tipo di procedura
Espropriazione immobiliare (cartabia)

Ruolo
75/2023

Giudice
Balsano 

Recapiti
-

Email
-

Delegato alla vendita
Centineo Luisa
(Procede alle operazioni di vendita)
(Gestisce la visita del bene)

Recapiti
Cell. 3280241353

Scheda COD. 4322774 - Pubblicata dal 09/04/2026

La presente scheda di vendita riporta integralmente informazioni e documenti pervenuti ufficialmente dal Ministero e dal professionista incaricato.


Pubblicazione autorizzata dall’Autorità competente, è vietata ogni ripubblicazione o riproduzione anche parziale


Ti interessa questa vendita?

Documentazione

Visualizza su mappa

Mappa geografica del bene

Storico delle vendite

Data venditaPrezzo base
02/05/2025€ 402.232,73
23/12/2025€ 341.897,82
11/06/2026€ 256.423,36

Punti di interesse

Fonte dati

Nel raggio di {{range}}Km

Loading...
  • {{ getIcon(poi.type) }} {{ poi.localized }}: {{poi.count}}
  • {{ getIcon(poi.type) }} {{ poi.localized }}: {{poi.count}}
Dati non disponibili