Astegiudiziarie.it è parte di Rete Aste Network

Accedi o registrati

Non sei ancora registrato?

Oppure

Accedi

Abitazione di tipo economico

LOCALITA' MONTECCHIO 32 , Castiglion Fiorentino (AR)

€ 136.800,00

Offerta minima € 102.600,00


Codice A4338592

Lotto Lotto unico

Data udienza 23/04/2026 ore 09:00

Termine presentazione offerte 22/04/2026 ore 13:00

Abitazione di tipo economico

LOCALITA' MONTECCHIO 32 , Castiglion Fiorentino (AR)

€ 136.800,00

Offerta minima € 102.600,00


Codice A4338592

Lotto Lotto unico

Data udienza 23/04/2026 ore 09:00

Termine presentazione offerte 22/04/2026 ore 13:00

Ti interessa questa vendita?

Documentazione

Visualizza su mappa

Mappa geografica del bene

Punti di interesse

Fonte dati

Nel raggio di {{range}}Km

Loading...
  • {{ getIcon(poi.type) }} {{ poi.localized }}: {{poi.count}}
  • {{ getIcon(poi.type) }} {{ poi.localized }}: {{poi.count}}
Dati non disponibili

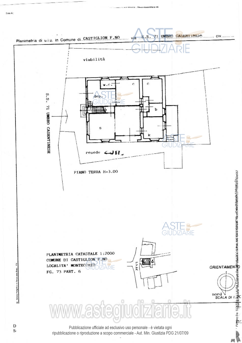
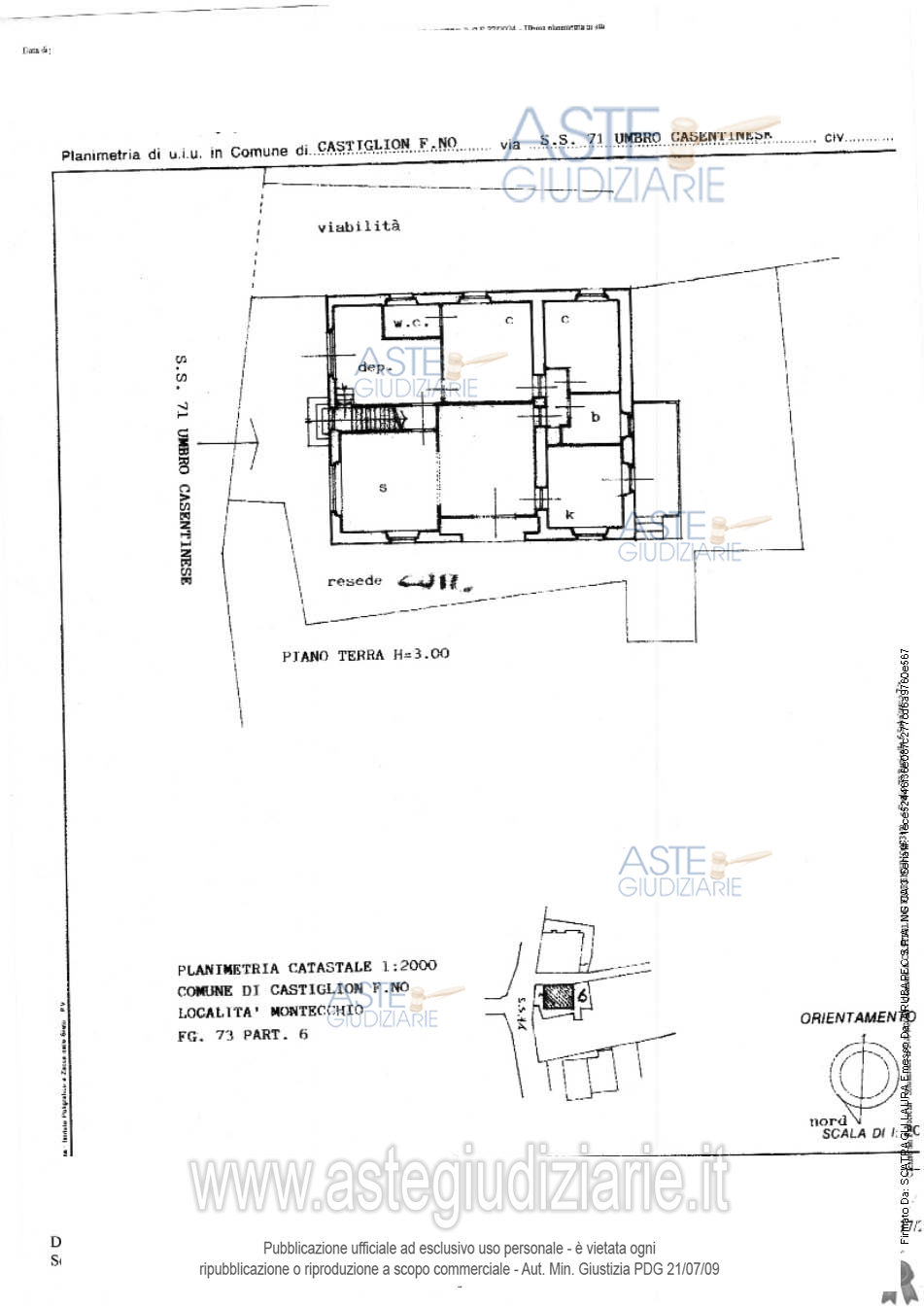
Diritto di piena proprietà per l’intero su di un fabbricato ad uso residenziale ubicato nel Comune di Castiglion Fiorentino (AR), Loc. Montecchio n°32, costituto da due unità abitative, corredato da superficie di resede a comune per quote indivise ai due subalterni.

Indirizzo
LOCALITA' MONTECCHIO 32 , Castiglion Fiorentino (AR)


Codice asta
4338592


Lotto
Lotto unico


Numero beni
1


Genere
Immobili


Categoria
Immobile residenziale


Valore di stima
-


Abitazione di tipo economico

Diritto di piena proprietà per l’intero su di un fabbricato ad uso residenziale ubicato nel Comune di Castiglion Fiorentino (AR), Loc. Montecchio n°32, costituto da due unità abitative, corredato da superficie di resede a comune per quote indivise ai due subalterni.

Indirizzo
LOCALITA' MONTECCHIO 32, Castiglion Fiorentino (AR)


Piano
-


Disponibilità
OCCUPATO SENZA TITOLO


Vani
-


Bagni
-


Metri quadri
238,00


Certificazione energetica
-


Dati catastali

Foglio:73, Particella:6, Subalterno:7
Foglio:73, Particella:6, Subalterno:8


Data udienza
23/04/2026 ore 09:00


Tipo di vendita
Senza incanto


Modalità di vendita
Sincrona mista


Luogo
PIAZZA FALCONE E BORSELLINO N. 1 PRESSO TRIBUNALE DI AREZZO - Arezzo 52100


Luogo presentazione offerte
-


Termine presentazione offerte
22/04/2026 ore 13:00


Prezzo base
€ 136.800,00


Offerta minima
€ 102.600,00


Rialzo minimo in caso di gara
€ 2.000,00


Deposito cauzionale
10% del prezzo offerto


Deposito in conto spese
-


Tribunale
Arezzo

Tipo di procedura
Espropriazione immobiliare (cartabia)

Ruolo
37/2024

Delegato alla vendita
Cardini Carlo
(Procede alle operazioni di vendita)

Recapiti
Tel. 0575371212

Email
CARDINI@CARTLEGAL.IT

IVG
Arezzo-siena Istituto vendite giudiziarie
(Gestisce la visita del bene)

Recapiti
Cell. 3397337017
Tel. 0577318111

Scheda COD. 4338592 - Pubblicata dal 05/03/2026

La presente scheda di vendita riporta integralmente informazioni e documenti pervenuti ufficialmente dal Ministero e dal professionista incaricato.


Pubblicazione autorizzata dall’Autorità competente, è vietata ogni ripubblicazione o riproduzione anche parziale


Ti interessa questa vendita?

Documentazione

Visualizza su mappa

Mappa geografica del bene

Storico delle vendite

Data venditaPrezzo base
05/02/2026€ 171.000,00
23/04/2026€ 136.800,00

Punti di interesse

Fonte dati

Nel raggio di {{range}}Km

Loading...
  • {{ getIcon(poi.type) }} {{ poi.localized }}: {{poi.count}}
  • {{ getIcon(poi.type) }} {{ poi.localized }}: {{poi.count}}
Dati non disponibili