Astegiudiziarie.it è parte di Rete Aste Network

Accedi o registrati

Non sei ancora registrato?

Oppure

Accedi

giudiziariagiudiziariaTribunale di AREZZOESECUZIONI CIVILI IMMOBILIARIESPROPRIAZIONE IMMOBILIARE (CARTABIA)372024Istituto Vendite GiudiziarieIstituto vendite giudiziarieArezzo-sienaMZZCRZ57L11I726MVISITE.IVG@GMAIL.COM33973370170577318111falsetrueDelegato alla venditaCarloCardiniCRDCRL85T25A390QCARDINI@CARTLEGAL.IT0575371212truefalse2343812LOTTO UNICOIMMOBILIIMMOBILE RESIDENZIALELOCALITA' MONTECCHIO 32 52043Castiglion FiorentinoArezzoToscanaItaliaDiritto di piena proprietà per l’intero su di un fabbricato ad uso residenziale ubicato nel Comune di Castiglion Fiorentino (AR), Loc. Montecchio n°32, costituto da due unità abitative, corredato da superficie di resede a comune per quote indivise ai due subalterni. 3028468IMMOBILE RESIDENZIALEABITAZIONE DI TIPO ECONOMICOLOCALITA' MONTECCHIO 3252043Castiglion FiorentinoArezzoToscanaItaliaDiritto di piena proprietà per l’intero su di un fabbricato ad uso residenziale ubicato nel Comune di Castiglion Fiorentino (AR), Loc. Montecchio n°32, costituto da due unità abitative, corredato da superficie di resede a comune per quote indivise ai due subalterni. 73677368OCCST2382026-02-05T09:00:00SENZA INCANTOSINCRONA MISTAPIAZZA FALCONE E BORSELLINO 152100ArezzoArezzoToscanaItalia171.000,00128.500,002.000,002026-02-04T13:00:00sito pubblicitahttps://www.astalegale.nethttps://www.astalegale.netgestore delle venditehttp://www.astetelematiche.ithttp://www.astetelematiche.itsito pubblicitahttps://www.fallcoaste.ithttps://www.fallcoaste.itsito pubblicitahttps://www.astegiudiziarie.ithttps://www.astegiudiziarie.it2025-10-28AVVISO DI RETTIFICAL'offerta minima, come correttamente indicato nell'avviso di vendita, è pari ad euro 128.250,00 e non 128.500,00 come indicato nella schermata pubblicata.2025-10-29

Abitazione di tipo economico

LOCALITA' MONTECCHIO 32 , Castiglion Fiorentino (AR)

€ 171.000,00

Offerta minima € 128.250,00


Codice A4338592

Lotto Lotto unico

Data udienza 05/02/2026 ore 09:00

Termine presentazione offerte 04/02/2026 ore 13:00

Abitazione di tipo economico

LOCALITA' MONTECCHIO 32 , Castiglion Fiorentino (AR)

€ 171.000,00

Offerta minima € 128.250,00


Codice A4338592

Lotto Lotto unico

Data udienza 05/02/2026 ore 09:00

Termine presentazione offerte 04/02/2026 ore 13:00

Ti interessa questa vendita?

Documentazione

Visualizza su mappa

Mappa geografica del bene

Punti di interesse

Fonte dati

Nel raggio di {{range}}Km

Loading...
  • {{ getIcon(poi.type) }} {{ poi.localized }}: {{poi.count}}
  • {{ getIcon(poi.type) }} {{ poi.localized }}: {{poi.count}}
Dati non disponibili

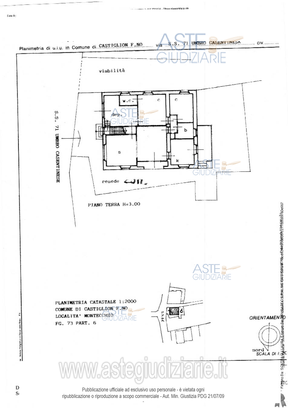
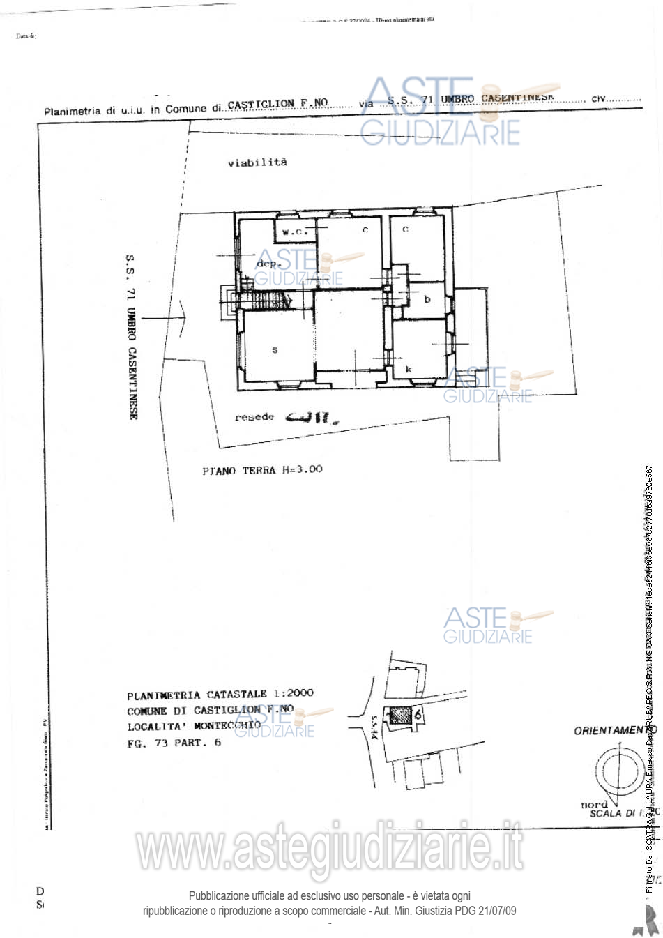
Diritto di piena proprietà per l’intero su di un fabbricato ad uso residenziale ubicato nel Comune di Castiglion Fiorentino (AR), Loc. Montecchio n°32, costituto da due unità abitative, corredato da superficie di resede a comune per quote indivise ai due subalterni.

Indirizzo
LOCALITA' MONTECCHIO 32 , Castiglion Fiorentino (AR)


Codice asta
4338592


Lotto
Lotto unico


Numero beni
1


Genere
Immobili


Categoria
Immobile residenziale


Valore di stima
-


Abitazione di tipo economico

Diritto di piena proprietà per l’intero su di un fabbricato ad uso residenziale ubicato nel Comune di Castiglion Fiorentino (AR), Loc. Montecchio n°32, costituto da due unità abitative, corredato da superficie di resede a comune per quote indivise ai due subalterni.

Indirizzo
LOCALITA' MONTECCHIO 32, Castiglion Fiorentino (AR)


Piano
-


Disponibilità
OCCST


Vani
-


Bagni
-


Metri quadri
238,00


Certificazione energetica
-


Dati catastali

Foglio:73, Particella:6, Subalterno:7
Foglio:73, Particella:6, Subalterno:8


Data udienza
05/02/2026 ore 09:00


Tipo di vendita
Senza incanto


Modalità di vendita
Sincrona mista


Luogo
PIAZZA FALCONE E BORSELLINO 1 - Arezzo 52100


Luogo presentazione offerte
-


Termine presentazione offerte
04/02/2026 ore 13:00


Prezzo base
€ 171.000,00


Offerta minima
€ 128.250,00


Rialzo minimo in caso di gara
€ 2.000,00


Deposito cauzionale
10% del prezzo offerto


Deposito in conto spese
-


Tribunale
Arezzo

Tipo di procedura
Espropriazione immobiliare (cartabia)

Ruolo
37/2024

Delegato alla vendita
Cardini Carlo
(Procede alle operazioni di vendita)

Recapiti
Tel. 0575371212

Email
CARDINI@CARTLEGAL.IT

IVG
Arezzo-siena Istituto vendite giudiziarie
(Gestisce la visita del bene)

Recapiti
Cell. 3397337017
Tel. 0577318111

Data
29/10/2025


Tipologia
AVVISO DI RETTIFICA


Descrizione
L'offerta minima, come correttamente indicato nell'avviso di vendita, è pari ad euro 128.250,00 e non 128.500,00 come indicato nella schermata pubblicata.


Data
29/10/2025


Tipologia
AVVISO DI RETTIFICA


Descrizione
L'offerta minima, come correttamente indicato nell'avviso di vendita, è pari ad euro 128.250,00 e non 128.500,00 come indicato nella schermata pubblicata.


Scheda COD. 4338592 - Pubblicata dal 12/11/2025

La presente scheda di vendita riporta integralmente informazioni e documenti pervenuti ufficialmente dal Ministero e dal professionista incaricato.


Pubblicazione autorizzata dall’Autorità competente, è vietata ogni ripubblicazione o riproduzione anche parziale


Ti interessa questa vendita?

Documentazione

Visualizza su mappa

Mappa geografica del bene

Punti di interesse

Fonte dati

Nel raggio di {{range}}Km

Loading...
  • {{ getIcon(poi.type) }} {{ poi.localized }}: {{poi.count}}
  • {{ getIcon(poi.type) }} {{ poi.localized }}: {{poi.count}}
Dati non disponibili