Astegiudiziarie.it è parte di Rete Aste Network

Accedi o registrati

Non sei ancora registrato?

Oppure

Accedi

Abitazione di tipo civile, garage o autorimessa, fabbricato rurale, terreno

Contrada Casalta 14, Castelleone di Suasa (AN)

€ 98.733,83

Offerta minima € 74.050,37


Codice A4319768

Lotto 1

Data udienza 13/11/2025 ore 10:15

Termine presentazione offerte 12/11/2025 ore 12:00

Abitazione di tipo civile, garage o autorimessa, fabbricato rurale, terreno

Contrada Casalta 14, Castelleone di Suasa (AN)

€ 98.733,83

Offerta minima € 74.050,37


Codice A4319768

Lotto 1

Data udienza 13/11/2025 ore 10:15

Termine presentazione offerte 12/11/2025 ore 12:00

Ti interessa questa vendita?

Documentazione

Visualizza su mappa

Mappa geografica del bene

Punti di interesse

Fonte dati

Nel raggio di {{range}}Km

Loading...
  • {{ getIcon(poi.type) }} {{ poi.localized }}: {{poi.count}}
  • {{ getIcon(poi.type) }} {{ poi.localized }}: {{poi.count}}
Dati non disponibili

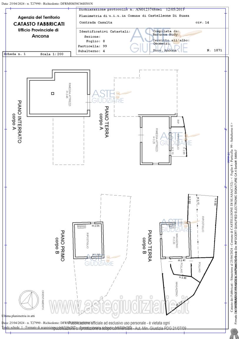
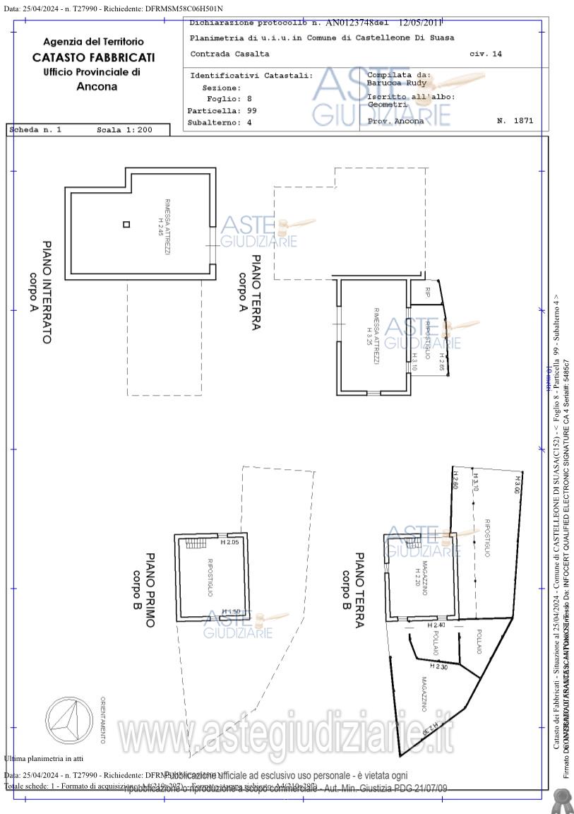
Abitazione al piano primo e secondo ,Autorimessa posta al piano terra con bagno,Fabbricato agricolo,Corte o resede,Terreno agricolo

Indirizzo
Contrada Casalta 14, Castelleone di Suasa (AN)


Codice asta
4319768


Lotto
1


Numero beni
5


Genere
Immobili


Categoria
Immobile residenziale


Valore di stima
-


Abitazione di tipo civile

Appartamento al piano primo e secondo composta da cucina soggiorno, tre camere, un bagno, corridoio e soffitta a cui si accede da una botola, n 2 balconi. L'accesso alla abitazione avviene da scala esterna.

Indirizzo
Contrada Casalta 14, Castelleone di Suasa (AN)


Piano
-


Disponibilità
-


Vani
6,00


Bagni
-


Metri quadri
146,28


Certificazione energetica
-


Garage o autorimessa

Garage.

Indirizzo
Contrada Casalta 14, Castelleone di Suasa (AN)


Piano
-


Disponibilità
-


Vani
-


Bagni
-


Metri quadri
48,43


Certificazione energetica
-


Fabbricato rurale

Fabbricato agricolo. L'unità immobiliare a composta da una porzione di edificio del locale principale e un edificio isolato limitrofo all'edificio principale. La prima porzione a ubicata nell'edificio principale ed a composto: locale posto al piano seminterrato con accesso con rampa esterna carrabile, la porzione di immobile non a attualmente rifinito e non sussiste impianto elettrico; locale posto al piano terra, sono al rustico la pavimentazione le pareti ed il soffitto, carenze nell'impianto elettrico. locale posto al piano terra con accesso dall'esterno, costituito da intelaiatura in legno e pannellature di chiusure in legno, pavimento in battuto di cemento. Non sono presenti impianti. La seconda porzione a composta da edificio isolato limitrofo all'edificio principale ed a composto da due locali in muratura piano terra e piano primo, con accesso dal piano terra e scala di collegamento interna; i locali non sono rifiniti, destinazione a magazzino. Ulteriore porzione di fabbricato in aderenza a quello in muratura con tre locali con struttura e pareti in legno, pavimento in battuto di cemento; destinazione locali magazzino e pollaio.

Indirizzo
Contrada Casalta 14, Castelleone di Suasa (AN)


Piano
-


Disponibilità
-


Vani
-


Bagni
-


Metri quadri
56,44


Certificazione energetica
-


Terreno

Terreno

Indirizzo
Contrada Casalta, Castelleone di Suasa (AN)


Piano
-


Disponibilità
-


Vani
-


Bagni
-


Metri quadri
1825,00


Certificazione energetica
-


Terreno

Corte o resede

Indirizzo
Contrada Casalta 14, Castelleone di Suasa (AN)


Piano
-


Disponibilità
-


Vani
-


Bagni
-


Metri quadri
1285,00


Certificazione energetica
-


Data udienza
13/11/2025 ore 10:15


Tipo di vendita
Senza incanto


Modalità di vendita
Asincrona telematica


Luogo
N.A. -


Luogo presentazione offerte
-


Termine presentazione offerte
12/11/2025 ore 12:00


Prezzo base
€ 98.733,83


Offerta minima
€ 74.050,37


Rialzo minimo in caso di gara
€ 2.000,00


Deposito cauzionale
10% del prezzo offerto


Deposito in conto spese
-


Tribunale
Ancona

Tipo di procedura
Espropriazione immobiliare (cartabia)

Ruolo
58/2024

Delegato alla vendita
Regni Daniele
(Procede alle operazioni di vendita)

Recapiti
-

Email
-

Custode giudiziario
regni Daniele
(Gestisce la visita del bene)

Recapiti
-

Scheda COD. 4319768 - Pubblicata dal 05/09/2025

La presente scheda di vendita riporta integralmente informazioni e documenti pervenuti ufficialmente dal Ministero e dal professionista incaricato.


Pubblicazione autorizzata dall’Autorità competente, è vietata ogni ripubblicazione o riproduzione anche parziale


Ti interessa questa vendita?

Documentazione

Visualizza su mappa

Mappa geografica del bene

Storico delle vendite

Data venditaPrezzo base
13/03/2025€ 175.526,80
19/06/2025€ 131.645,10
13/11/2025€ 98.733,83

Punti di interesse

Fonte dati

Nel raggio di {{range}}Km

Loading...
  • {{ getIcon(poi.type) }} {{ poi.localized }}: {{poi.count}}
  • {{ getIcon(poi.type) }} {{ poi.localized }}: {{poi.count}}
Dati non disponibili