Astegiudiziarie.it è parte di Rete Aste Network

Accedi o registrati

Non sei ancora registrato?

Oppure

Accedi

Appartamento

Cascina Pozzo SNC, Cassolnovo (PV)

€ 452.272,00

Offerta minima € 339.204,00


Codice A4321285

Lotto Lotto unico

Data udienza 17/02/2026 ore 15:00

Termine presentazione offerte 16/02/2026 ore 12:00

Appartamento

Cascina Pozzo SNC, Cassolnovo (PV)

€ 452.272,00

Offerta minima € 339.204,00


Codice A4321285

Lotto Lotto unico

Data udienza 17/02/2026 ore 15:00

Termine presentazione offerte 16/02/2026 ore 12:00

Ti interessa questa vendita?

Documentazione

Visualizza su mappa

Mappa geografica del bene

Punti di interesse

Fonte dati

Nel raggio di {{range}}Km

Loading...
  • {{ getIcon(poi.type) }} {{ poi.localized }}: {{poi.count}}
  • {{ getIcon(poi.type) }} {{ poi.localized }}: {{poi.count}}
Dati non disponibili

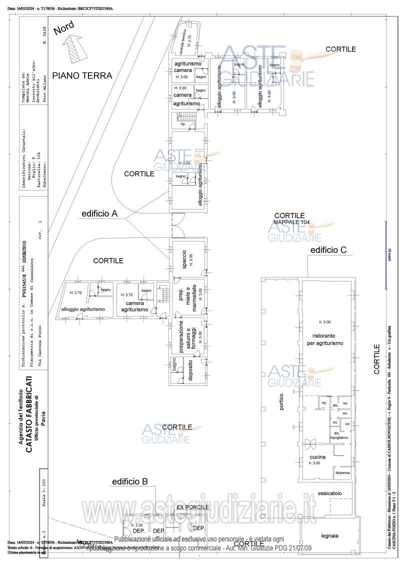
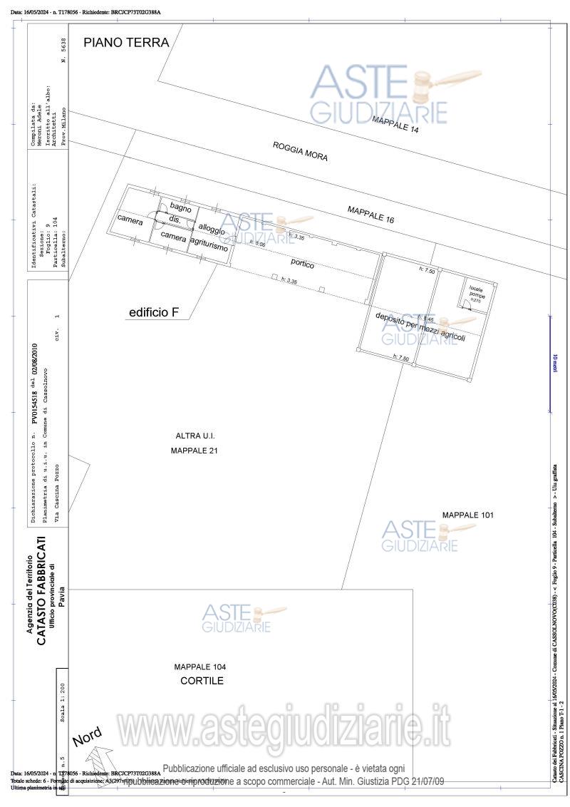
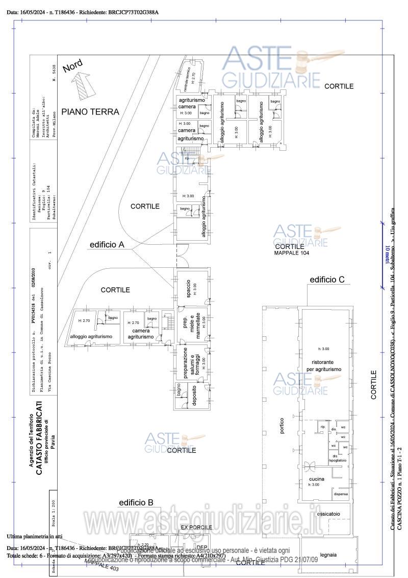
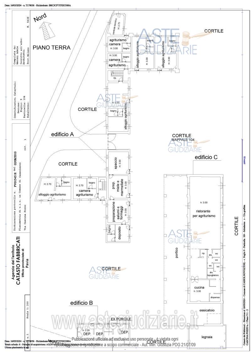
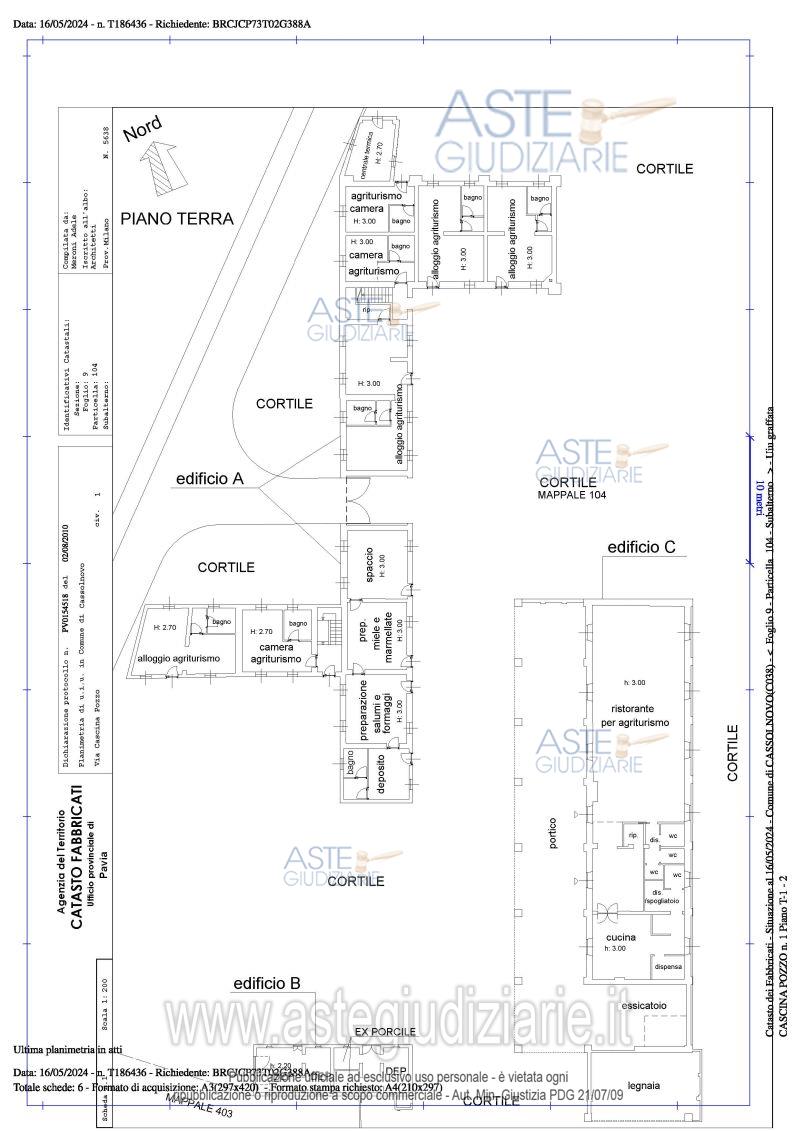
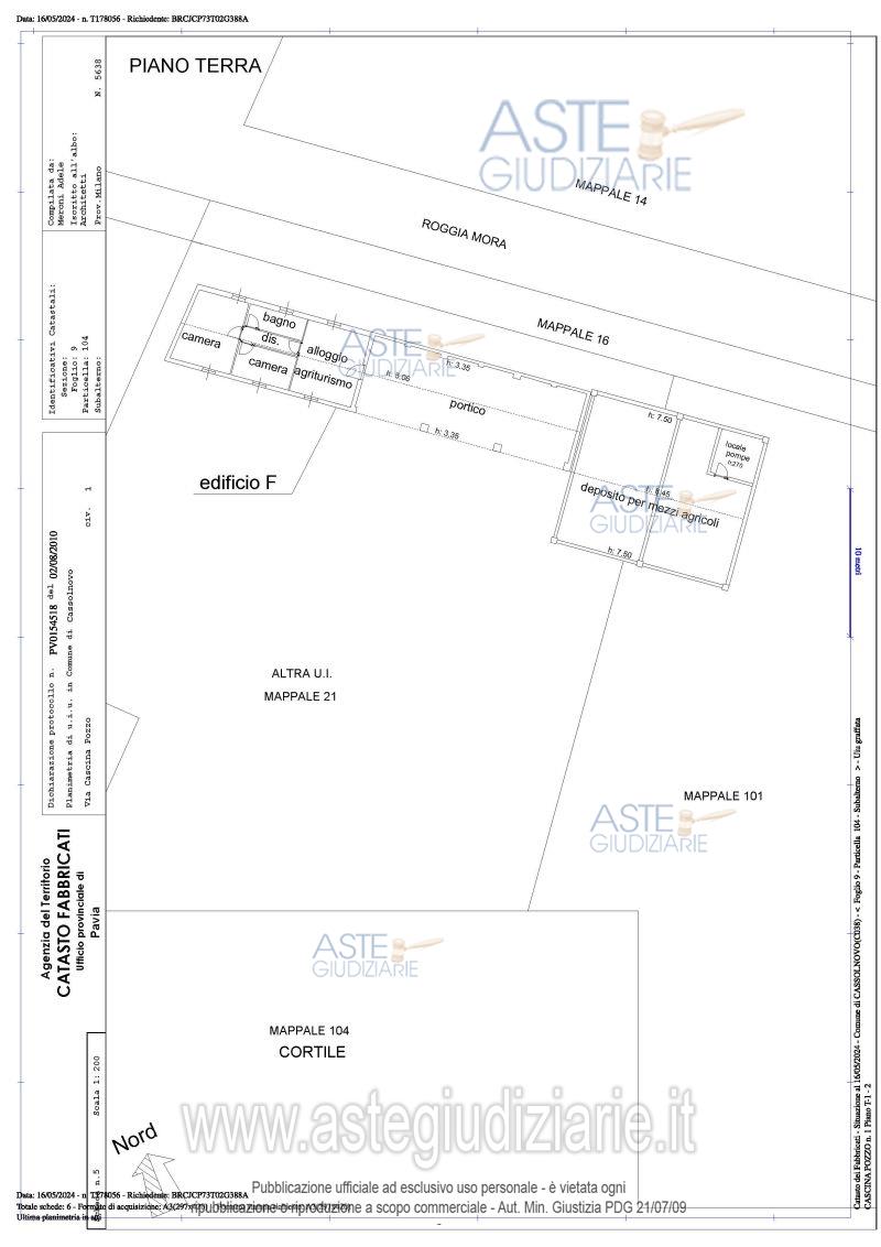
Azienda agricola composta da un insieme di fabbricati e terreni che costituiscono la “Cascina Pozzo” posta nell’ambito agricolo nord ovest del Comune di Cassolnovo.

Indirizzo
Cascina Pozzo SNC, Cassolnovo (PV)


Codice asta
4321285


Lotto
Lotto unico


Numero beni
1


Genere
Immobili


Categoria
Immobile residenziale


Valore di stima
-


Appartamento

Azienda agricola composta da un insieme di fabbricati e terreni che costituiscono la “Cascina Pozzo” posta nell’ambito agricolo nord ovest del Comune di Cassolnovo. La “Cascina Pozzo” è costituita da vari fabbricati principali destinati, allo stato, all’attività di agri-turismo con presenza di alloggi, ristorante e spaccio per prodotti locali. Nel contesto della cascina è inserito altresì un edificio residenziale privato e ulteriori fabbricati strumentali per il ricovero di animali e deposito di mezzi agricoli. A completamento del compendio vi è un terreno agricolo, per buona parte cintato, con funzione di aia/cortile oltre ad altri terreni agricoli esterni attualmente uti-lizzati in parte per la produzione di ortaggi ed in parte boschivi a vegetazione spontanea.

Indirizzo
Cascina Pozzo SNC, Cassolnovo (PV)


Piano
-


Disponibilità
OCCUP


Vani
-


Bagni
-


Metri quadri
-


Certificazione energetica
-


Data udienza
17/02/2026 ore 15:00


Tipo di vendita
Senza incanto


Modalità di vendita
Asincrona telematica


Luogo
N.A. -


Luogo presentazione offerte
-


Termine presentazione offerte
16/02/2026 ore 12:00


Prezzo base
€ 452.272,00


Offerta minima
€ 339.204,00


Rialzo minimo in caso di gara
€ 1.000,00


Deposito cauzionale
10% del prezzo offerto


Deposito in conto spese
-


Tribunale
Pavia

Tipo di procedura
Esecuzione immobiliare post legge 80

Ruolo
336/2019

Giudice
Rocca Francesco

Recapiti
-

Email
-

Delegato alla vendita
Broglia Stefano
(Procede alle operazioni di vendita)

Recapiti
-

Email
-

Custode giudiziario
Giudiziarie di vigevano Istituto vendite
(Gestisce la visita del bene)

Recapiti
Tel. 0381691137

Scheda COD. 4321285 - Pubblicata dal 30/12/2025

La presente scheda di vendita riporta integralmente informazioni e documenti pervenuti ufficialmente dal Ministero e dal professionista incaricato.


Pubblicazione autorizzata dall’Autorità competente, è vietata ogni ripubblicazione o riproduzione anche parziale


Ti interessa questa vendita?

Documentazione

Visualizza su mappa

Mappa geografica del bene

Storico delle vendite

Data venditaPrezzo base
08/04/2025€ 1.072.050,00
22/07/2025€ 804.038,00
20/11/2025€ 603.029,00
17/02/2026€ 452.272,00

Punti di interesse

Fonte dati

Nel raggio di {{range}}Km

Loading...
  • {{ getIcon(poi.type) }} {{ poi.localized }}: {{poi.count}}
  • {{ getIcon(poi.type) }} {{ poi.localized }}: {{poi.count}}
Dati non disponibili