Astegiudiziarie.it è parte di Rete Aste Network

Accedi o registrati

Non sei ancora registrato?

Oppure

Accedi

Abitazione di tipo civile

VIA G. GIUSTI 19, Cascina (PI)

€ 389.250,00

Offerta minima € 291.937,00


Codice A4322594

Lotto Lotto unico

Data udienza 12/02/2026 ore 10:00

Termine presentazione offerte 11/02/2026 ore 13:00

Abitazione di tipo civile

VIA G. GIUSTI 19, Cascina (PI)

€ 389.250,00

Offerta minima € 291.937,00


Codice A4322594

Lotto Lotto unico

Data udienza 12/02/2026 ore 10:00

Termine presentazione offerte 11/02/2026 ore 13:00

Ti interessa questa vendita?

Documentazione

Visualizza su mappa

Mappa geografica del bene

Punti di interesse

Fonte dati

Nel raggio di {{range}}Km

Loading...
  • {{ getIcon(poi.type) }} {{ poi.localized }}: {{poi.count}}
  • {{ getIcon(poi.type) }} {{ poi.localized }}: {{poi.count}}
Dati non disponibili

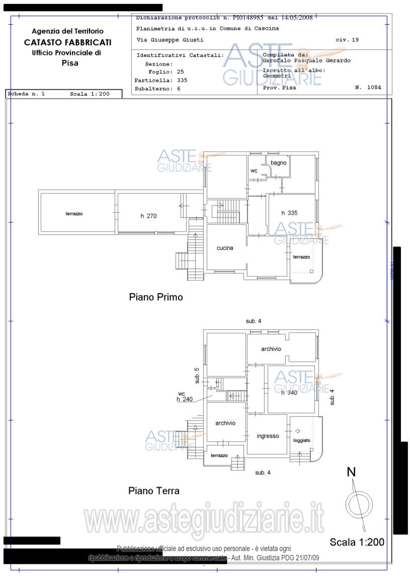
FABBRICATO INDIPENDENTE COSTITUITO DA DUE UNITA' IMMOBILIARI TRA LORO COMUNICANTI, CORREDATO DA RESEDE ESCLUSIVO. LA DESCRIZIONE ACCURATA INDICATA NELL'AVVISO DI VENDITA

Indirizzo
VIA G. GIUSTI 19, Cascina (PI)


Codice asta
4322594


Lotto
Lotto unico


Numero beni
1


Genere
Immobili


Categoria
Immobile residenziale


Valore di stima
-


Abitazione di tipo civile

bene n. 1abitazione composta da ampio soggiorno locale cottura due disimpegni, due camere wc e porticato. bene n. 2 al piano terra loggiato ingresso disimpegno, quattro locali, terrazza e wc. al piano intermedio disimpegno cucina/pranzo soggiorno con terrazzo, tre camere e due wc. bene n. 3 resede pertinenziale

Indirizzo
Via Giuseppe Giusti, 19, 56021 Cascina PI, Italia, Cascina (PI)


Piano
-


Disponibilità
-


Vani
6,50


Bagni
4


Metri quadri
126,00


Certificazione energetica
-


Data udienza
12/02/2026 ore 10:00


Tipo di vendita
Senza incanto


Modalità di vendita
Asincrona telematica


Luogo
N.A. -


Luogo presentazione offerte
-


Termine presentazione offerte
11/02/2026 ore 13:00


Prezzo base
€ 389.250,00


Offerta minima
€ 291.937,00


Rialzo minimo in caso di gara
€ 5.000,00


Deposito cauzionale
10% del prezzo offerto


Deposito in conto spese
-


Tribunale
Pisa

Tipo di procedura
Esecuzione immobiliare post legge 80

Ruolo
70/2023

Giudice
Zinna Marco

Recapiti
-

Email
-

Delegato alla vendita
Calcagno Luca
(Procede alle operazioni di vendita)

Recapiti
Tel. 05021065

Email
STUDIOCALCAGNO@GMAIL.COM

Custode giudiziario
Cosimo Erriquez

Recapiti
Tel. 050554790

Email
prenotazionipisa@astagiudiziar...

Scheda COD. 4322594 - Pubblicata dal 02/12/2025

La presente scheda di vendita riporta integralmente informazioni e documenti pervenuti ufficialmente dal Ministero e dal professionista incaricato.

Pubblicazione notarizzata su Blockchain


Pubblicazione autorizzata dall’Autorità competente, è vietata ogni ripubblicazione o riproduzione anche parziale


Ti interessa questa vendita?

Documentazione

Visualizza su mappa

Mappa geografica del bene

Storico delle vendite

Data venditaPrezzo base
07/05/2025€ 519.000,00
03/09/2025€ 519.000,00
12/02/2026€ 389.250,00

Punti di interesse

Fonte dati

Nel raggio di {{range}}Km

Loading...
  • {{ getIcon(poi.type) }} {{ poi.localized }}: {{poi.count}}
  • {{ getIcon(poi.type) }} {{ poi.localized }}: {{poi.count}}
Dati non disponibili