Astegiudiziarie.it è parte di Rete Aste Network

Accedi o registrati

Non sei ancora registrato?

Oppure

Accedi

Abitazione di tipo economico

Via Ciro Chistoni, 32, 46040 Fontanella Grazioli MN, Italia, Casalromano (MN)

€ 62.475,00

Offerta minima € 46.857,00


Codice A4336464

Lotto 2

Data udienza 05/03/2026 ore 15:00

Termine presentazione offerte 02/03/2026 ore 12:00

Abitazione di tipo economico

Via Ciro Chistoni, 32, 46040 Fontanella Grazioli MN, Italia, Casalromano (MN)

€ 62.475,00

Offerta minima € 46.857,00


Codice A4336464

Lotto 2

Data udienza 05/03/2026 ore 15:00

Termine presentazione offerte 02/03/2026 ore 12:00

Ti interessa questa vendita?

Documentazione

Visualizza su mappa

Mappa geografica del bene

Punti di interesse

Fonte dati

Nel raggio di {{range}}Km

Loading...
  • {{ getIcon(poi.type) }} {{ poi.localized }}: {{poi.count}}
  • {{ getIcon(poi.type) }} {{ poi.localized }}: {{poi.count}}
Dati non disponibili

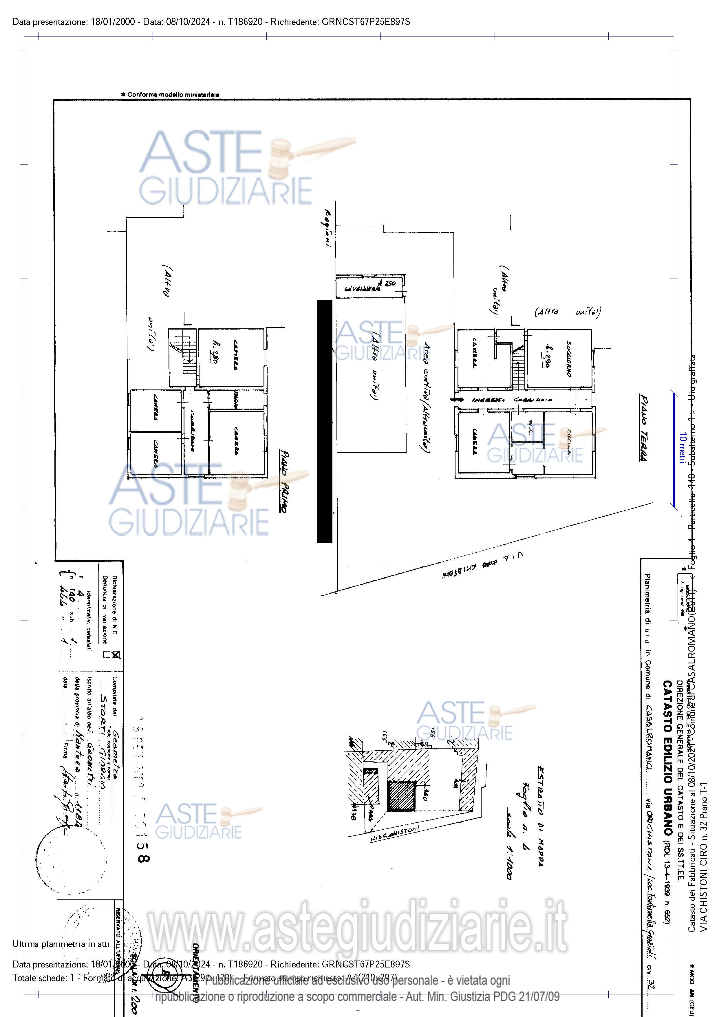
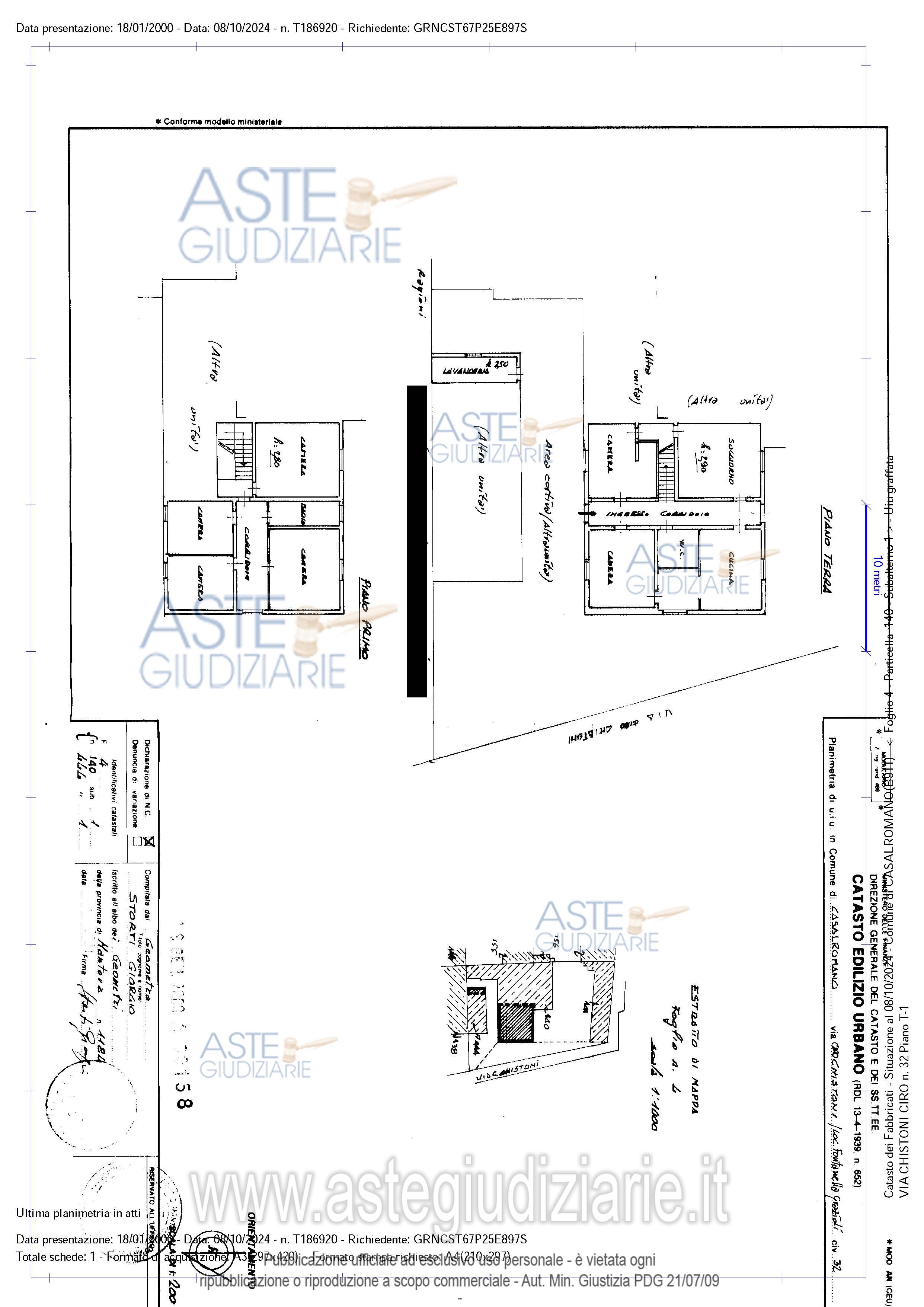
Unità abitativa su due piani, tra loro collegati con scala interna, con circostante area cortiliva comune, composta da: al piano terra da ingresso-corridoio, soggiorno, cucina, bagno, due camere da letto e una lavanderia esterna; al piano primo da corridoio, soggiorno-cucina, bagno, tre camere da letto; unità abitativa su due piani, con circostante area cortiliva comune, composta da: al piano terra da cucina, due rustici; al piano primo da tre camere.

Indirizzo
Via Ciro Chistoni, 32, 46040 Fontanella Grazioli MN, Italia, Casalromano (MN)


Codice asta
4336464


Lotto
2


Numero beni
1


Genere
Immobili


Categoria
Immobile residenziale


Valore di stima
-


Abitazione di tipo economico

Unità abitativa su due piani, tra loro collegati con scala interna, con circostante area cortiliva comune, composta da: al piano terra da ingresso-corridoio, soggiorno, cucina, bagno, due camere da letto e una lavanderia esterna; al piano primo da corridoio, soggiorno-cucina, bagno, tre camere da letto; unità abitativa su due piani, con circostante area cortiliva comune, composta da: al piano terra da cucina, due rustici; al piano primo da tre camere.

Indirizzo
Via Ciro Chistoni, 32, 46040 Fontanella Grazioli MN, Italia, Casalromano (MN)


Piano
-


Disponibilità
OCCUP


Vani
10,00


Bagni
-


Metri quadri
294,00


Certificazione energetica
-


Dati catastali

Foglio:4, Sezione:FABBRICATI, Particella:140, Subalterno:1
Foglio:4, Sezione:FABBRICATI, Particella:140, Subalterno:3


Data udienza
05/03/2026 ore 15:00


Tipo di vendita
Senza incanto


Modalità di vendita
Sincrona mista


Luogo
Via Iº Maggio, 3, 46030 Mottella MN, Italia - San Giorgio Bigarello 46051


Luogo presentazione offerte
-


Termine presentazione offerte
02/03/2026 ore 12:00


Prezzo base
€ 62.475,00


Offerta minima
€ 46.857,00


Rialzo minimo in caso di gara
€ 3.000,00


Deposito cauzionale
10% del prezzo offerto


Deposito in conto spese
-


Tribunale
Mantova

Tipo di procedura
Espropriazione immobiliare (cartabia)

Ruolo
176/2023

Delegato alla vendita
Bergamini Cinzia
(Procede alle operazioni di vendita)

Recapiti
Tel. 0376220961

Email
cinzia.bergamini@studioangioli...

Custode giudiziario
So.ve.mo. srl 
(Gestisce la visita del bene)

Recapiti
Tel. 0376220694

Scheda COD. 4336464 - Pubblicata dal 24/12/2025

La presente scheda di vendita riporta integralmente informazioni e documenti pervenuti ufficialmente dal Ministero e dal professionista incaricato.


Pubblicazione autorizzata dall’Autorità competente, è vietata ogni ripubblicazione o riproduzione anche parziale


Ti interessa questa vendita?

Documentazione

Visualizza su mappa

Mappa geografica del bene

Storico delle vendite

Data venditaPrezzo base
11/12/2025€ 83.300,00
05/03/2026€ 62.475,00

Punti di interesse

Fonte dati

Nel raggio di {{range}}Km

Loading...
  • {{ getIcon(poi.type) }} {{ poi.localized }}: {{poi.count}}
  • {{ getIcon(poi.type) }} {{ poi.localized }}: {{poi.count}}
Dati non disponibili