Astegiudiziarie.it è parte di Rete Aste Network

Accedi o registrati

Non sei ancora registrato?

Oppure

Accedi

Abitazione di tipo popolare

Contrada Vaccarizzo, Carlentini (SR)

€ 61.245,00

Offerta minima € 45.933,75


Codice A4344754

Lotto 0

Data udienza 03/04/2026 ore 10:00

Termine presentazione offerte 02/04/2026 ore 12:00

Abitazione di tipo popolare

Contrada Vaccarizzo, Carlentini (SR)

€ 61.245,00

Offerta minima € 45.933,75


Codice A4344754

Lotto 0

Data udienza 03/04/2026 ore 10:00

Termine presentazione offerte 02/04/2026 ore 12:00

Ti interessa questa vendita?

Documentazione

Visualizza su mappa

Mappa geografica del bene

Punti di interesse

Fonte dati

Nel raggio di {{range}}Km

Loading...
  • {{ getIcon(poi.type) }} {{ poi.localized }}: {{poi.count}}
  • {{ getIcon(poi.type) }} {{ poi.localized }}: {{poi.count}}
Dati non disponibili

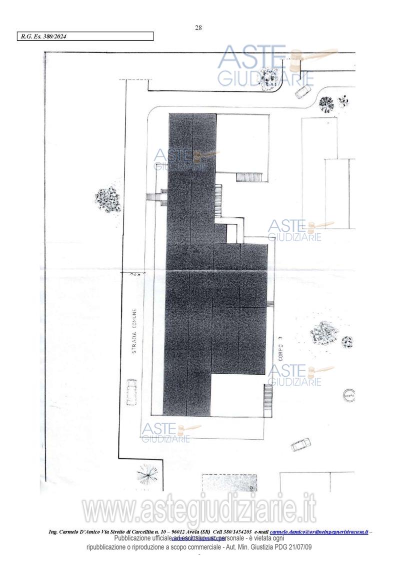
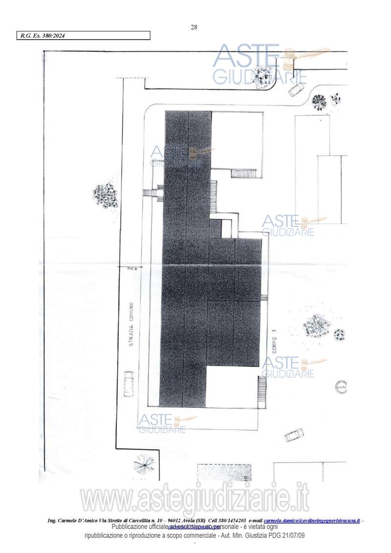
Piena proprietà per la quota di 1/2 ciascuno in comunione legale tra i comproprietari dell’immobile: “appartamento sito nel Comune di Carlentini, C.da Vaccarizzo, censito al Catasto Fabbricati al Foglio 3, particella 5 sub 21; p.T, z.c.1,cat.A/4, di classe 3, di vani 5, rendita di Euro 162,68; confinante con proprietà omissis, proprietà omissis e strada statale Catania-Siracusa

Indirizzo
Contrada Vaccarizzo, Carlentini (SR)


Codice asta
4344754


Lotto
0


Numero beni
1


Genere
Immobili


Categoria
Immobile residenziale


Valore di stima
-


Abitazione di tipo popolare

Piena proprietà per la quota di 1/2 ciascuno in comunione legale tra i comproprietari dell’immobile: “appartamento sito nel Comune di Carlentini, C.da Vaccarizzo, censito al Catasto Fabbricati al Foglio 3, particella 5 sub 21; p.T, z.c.1, cat.A/4, di classe 3, di vani 5, rendita di Euro 162,68; confinante con proprietà omissis, proprietà omissis e strada statale Catania-Siracusa

Indirizzo
Contrada Vaccarizzo, Carlentini (SR)


Piano
T


Disponibilità
-


Vani
-


Bagni
-


Metri quadri
-


Certificazione energetica
-


Data udienza
03/04/2026 ore 10:00


Tipo di vendita
Senza incanto


Modalità di vendita
Sincrona mista


Luogo
presso la sala aste telematiche sita nel Palazzo di Giustizia, Viale Santa Panagia 109, livello 0, corpo B, stanza n. 27 - Siracusa 96100


Luogo presentazione offerte
-


Termine presentazione offerte
02/04/2026 ore 12:00


Prezzo base
€ 61.245,00


Offerta minima
€ 45.933,75


Rialzo minimo in caso di gara
€ 4.000,00


Deposito cauzionale
10 % del prezzo offerto


Deposito in conto spese
-


Tribunale
Siracusa

Tipo di procedura
Espropriazione immobiliare (cartabia)

Ruolo
380/2024

Giudice
Solarino Giuseppe

Recapiti
-

Email
-

Delegato alla vendita
Scala Moena
(Procede alle operazioni di vendita)

Recapiti
Tel. 3662568420

Email
avv.moenascala@gmail.com

Custode giudiziario
Scala Moena
(Gestisce la visita del bene)

Recapiti
Tel. 3662568420

Scheda COD. 4344754 - Pubblicata dal 11/02/2026

La presente scheda di vendita riporta integralmente informazioni e documenti pervenuti ufficialmente dal Ministero e dal professionista incaricato.


Pubblicazione autorizzata dall’Autorità competente, è vietata ogni ripubblicazione o riproduzione anche parziale


Ti interessa questa vendita?

Documentazione

Visualizza su mappa

Mappa geografica del bene

Punti di interesse

Fonte dati

Nel raggio di {{range}}Km

Loading...
  • {{ getIcon(poi.type) }} {{ poi.localized }}: {{poi.count}}
  • {{ getIcon(poi.type) }} {{ poi.localized }}: {{poi.count}}
Dati non disponibili