Astegiudiziarie.it è parte di Rete Aste Network

Accedi o registrati

Non sei ancora registrato?

Oppure

Accedi

Abitazione di tipo economico

Località Genna Corriga, snc, Carbonia (SU)

€ 38.880,00

Offerta minima € 29.160,00


Codice A4332603

Lotto 4

Data udienza 04/06/2026 ore 10:00

Termine presentazione offerte 03/06/2026 ore 13:00

Abitazione di tipo economico

Località Genna Corriga, snc, Carbonia (SU)

€ 38.880,00

Offerta minima € 29.160,00


Codice A4332603

Lotto 4

Data udienza 04/06/2026 ore 10:00

Termine presentazione offerte 03/06/2026 ore 13:00

Ti interessa questa vendita?

Documentazione

Visualizza su mappa

Mappa geografica del bene

Punti di interesse

Fonte dati

Nel raggio di {{range}}Km

Loading...
  • {{ getIcon(poi.type) }} {{ poi.localized }}: {{poi.count}}
  • {{ getIcon(poi.type) }} {{ poi.localized }}: {{poi.count}}
Dati non disponibili

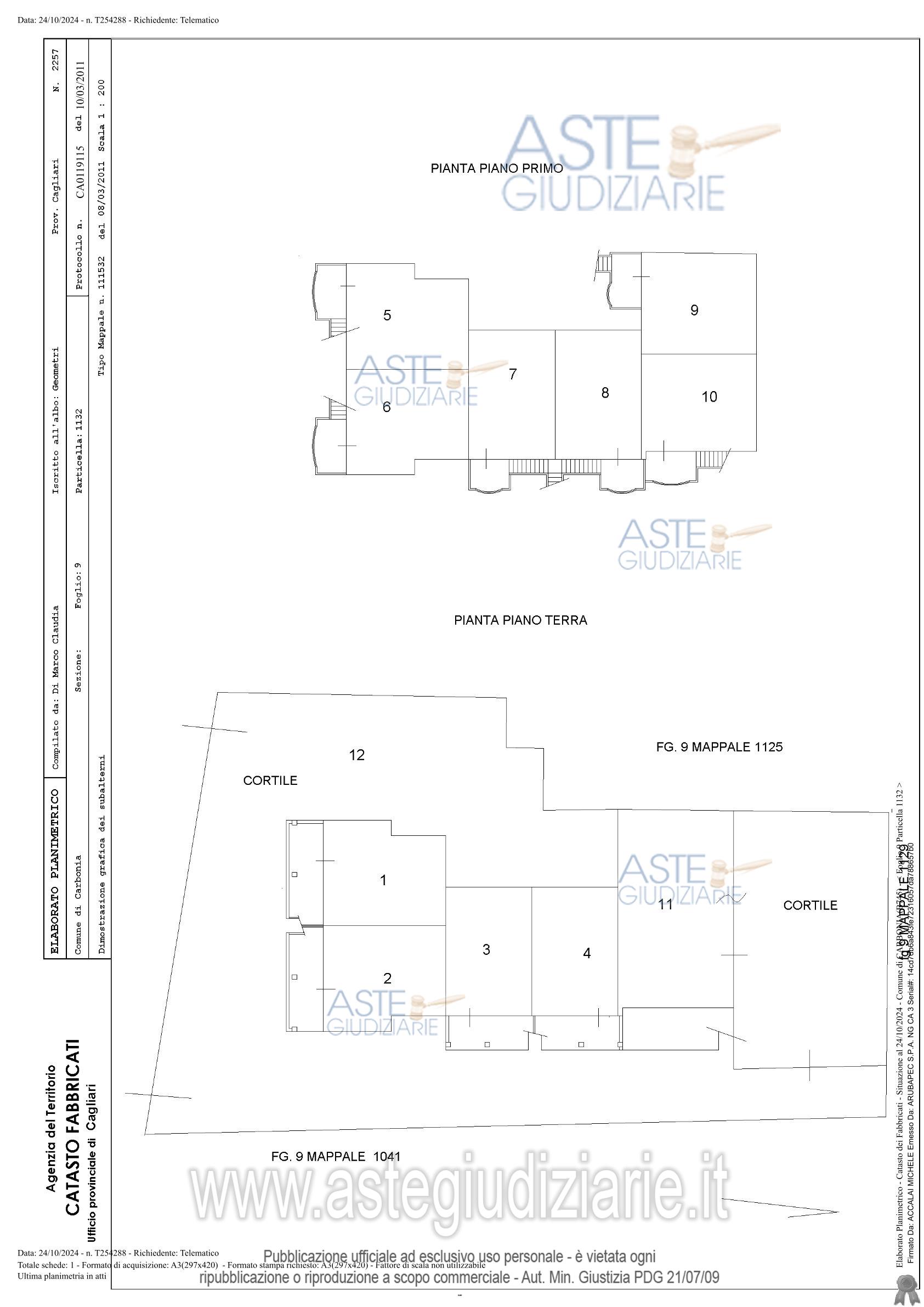
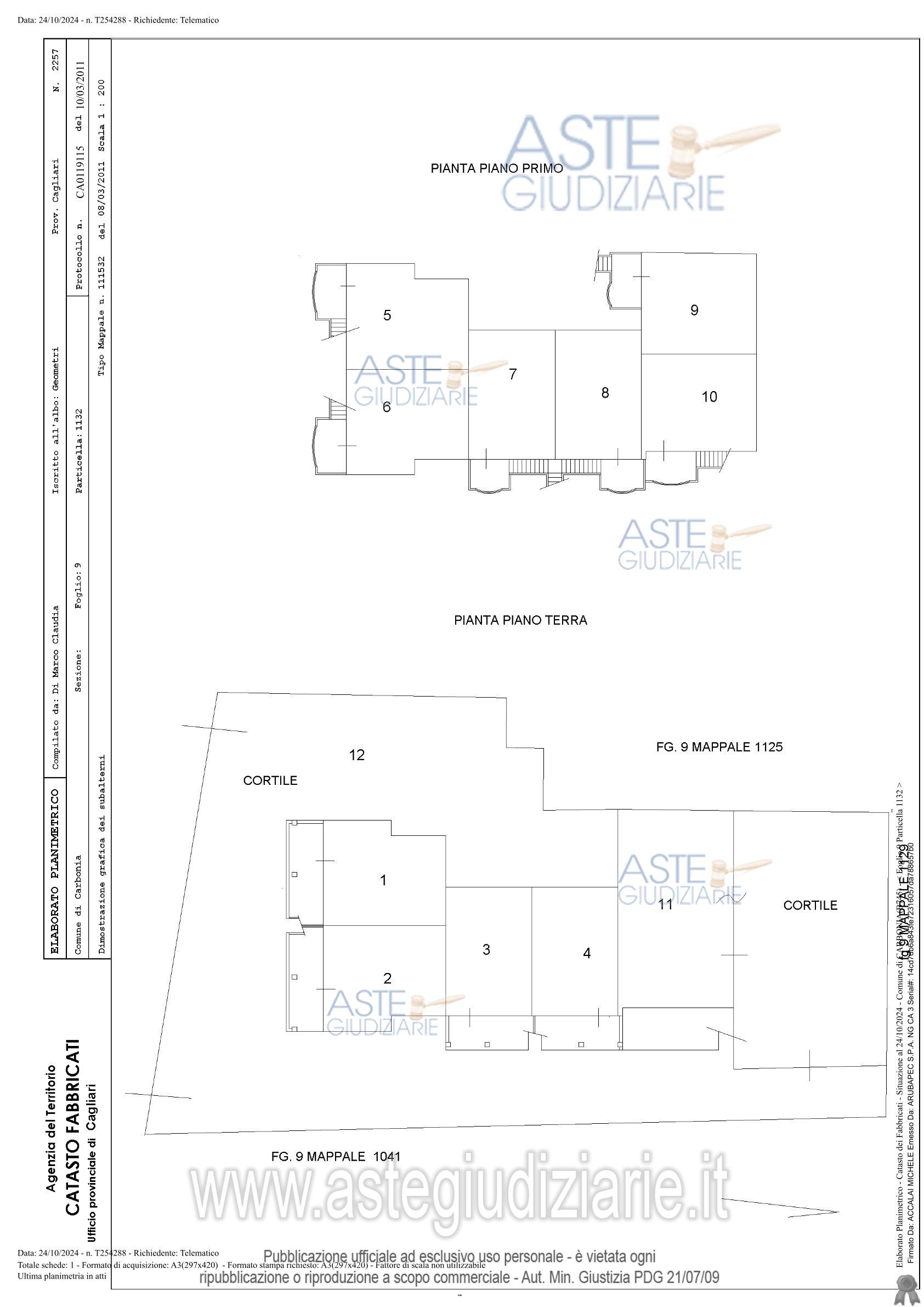
Carbonia, Località Genna Corriga snc, quota pari a 1/1 del diritto di proprietà di unità immobiliare, costituita da appartamento al piano primo di maggior palazzina di due piani fuori terra, con unico ingresso pedonale su balcone (ingresso/soggiorno con angolo cottura, disimpegno, camera, bagno) categoria A/3, consistenza 3 vani e posto auto scoperto in area cortilizia indivisa, bene comune non censibile.

Indirizzo
Località Genna Corriga, snc, Carbonia (SU)


Codice asta
4332603


Lotto
4


Numero beni
1


Genere
Immobili


Categoria
Immobile residenziale


Valore di stima
-


Abitazione di tipo economico

Carbonia, Località Genna Corriga snc, quota pari a 1/1 del diritto di proprietà di unità immobiliare, costituita da appartamento al piano primo di maggior palazzina di due piani fuori terra, con unico ingresso pedonale su balcone (ingresso/soggiorno con angolo cottura, disimpegno, camera, bagno) categoria A/3, consistenza 3 vani e posto auto scoperto in area cortilizia indivisa, bene comune non censibile.

Indirizzo
Località Genna Corriga, snc, Carbonia (CI)


Piano
-


Disponibilità
LIBERO


Vani
3,00


Bagni
-


Metri quadri
54,08


Certificazione energetica
-


Dati catastali

Foglio:9, Particella:1132, Subalterno:9
Foglio:9, Particella:1132, Subalterno:12


Data udienza
04/06/2026 ore 10:00


Tipo di vendita
Senza incanto


Modalità di vendita
Asincrona telematica


Luogo
N.A. -


Luogo presentazione offerte
-


Termine presentazione offerte
03/06/2026 ore 13:00


Prezzo base
€ 38.880,00


Offerta minima
€ 29.160,00


Rialzo minimo in caso di gara
€ 2.000,00


Deposito cauzionale
5000.00


Deposito in conto spese
-


Tribunale
Cagliari

Tipo di procedura
Espropriazione immobiliare (cartabia)

Ruolo
174/2024

Giudice
Cocco Silvia

Recapiti
-

Email
-

Delegato alla vendita
Sanna Edoardo
(Procede alle operazioni di vendita)

Recapiti
Tel. 070490790

Email
studioedoardosanna@gmail.com

Custode giudiziario
Ivg di cagliari 
(Gestisce la visita del bene)

Recapiti
Tel. 0702299036

Scheda COD. 4332603 - Pubblicata dal 03/04/2026

La presente scheda di vendita riporta integralmente informazioni e documenti pervenuti ufficialmente dal Ministero e dal professionista incaricato.


Pubblicazione autorizzata dall’Autorità competente, è vietata ogni ripubblicazione o riproduzione anche parziale


Ti interessa questa vendita?

Documentazione

Visualizza su mappa

Mappa geografica del bene

Storico delle vendite

Data venditaPrezzo base
21/10/2025€ 60.750,00
03/02/2026€ 48.600,00
04/06/2026€ 38.880,00

Punti di interesse

Fonte dati

Nel raggio di {{range}}Km

Loading...
  • {{ getIcon(poi.type) }} {{ poi.localized }}: {{poi.count}}
  • {{ getIcon(poi.type) }} {{ poi.localized }}: {{poi.count}}
Dati non disponibili