Astegiudiziarie.it è parte di Rete Aste Network

Accedi o registrati

Non sei ancora registrato?

Oppure

Accedi

Abitazione di tipo civile

Corso Vittorio Emanuele, 137, 80030 Carbonara di Nola NA, Italia, Carbonara di Nola (NA)

€ 134.000,00

Offerta minima € 100.500,00


Codice A4341414

Lotto Lotto unico

Data udienza 17/03/2026 ore 16:00

Termine presentazione offerte 16/03/2026 ore 23:59

Abitazione di tipo civile

Corso Vittorio Emanuele, 137, 80030 Carbonara di Nola NA, Italia, Carbonara di Nola (NA)

€ 134.000,00

Offerta minima € 100.500,00


Codice A4341414

Lotto Lotto unico

Data udienza 17/03/2026 ore 16:00

Termine presentazione offerte 16/03/2026 ore 23:59

Ti interessa questa vendita?

Documentazione

Visualizza su mappa

Mappa geografica del bene

Punti di interesse

Fonte dati

Nel raggio di {{range}}Km

Loading...
  • {{ getIcon(poi.type) }} {{ poi.localized }}: {{poi.count}}
  • {{ getIcon(poi.type) }} {{ poi.localized }}: {{poi.count}}
Dati non disponibili

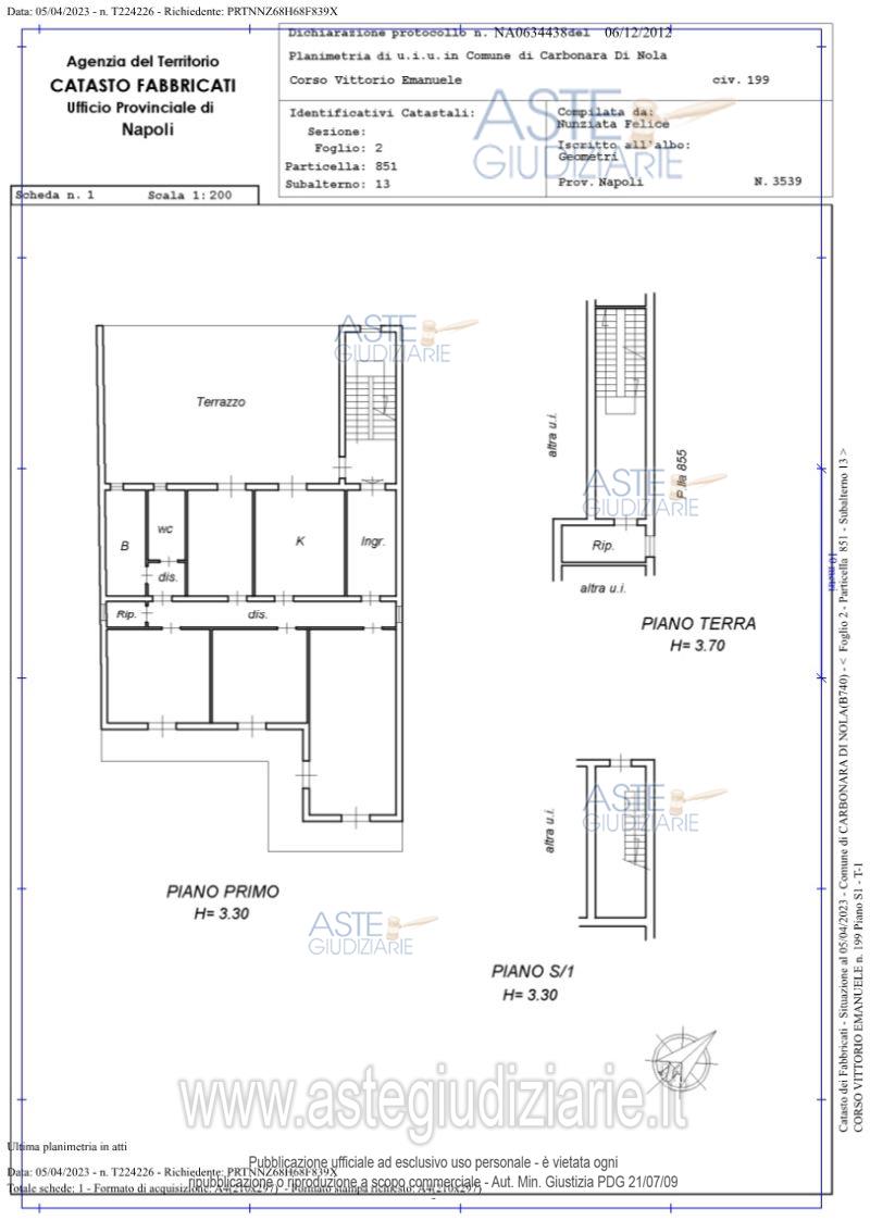
Piena ed intera proprietà di appartamento ubicato a Carbonara di Nola (NA) - Corso Vittorio Emanuele n.137 oggi Via Generale G. Curto n.9, piano S1-T-1 Il bene oggetto di pignoramento fa parte di un fabbricato ad uso residenziale e commerciale, ubicato in Carbonara di Nola (Na) con accesso inizialmente da corso Vittorio Emanuele n.137 (ex 199) oggi da via Generale Giuseppe Curto n.9. Come meglio precisato nelle perizie depositate in atti dall’Esperto Stimatore Arch. A. Prota del 01.07.2023 e del 31.01.2024.

Indirizzo
Corso Vittorio Emanuele, 137, 80030 Carbonara di Nola NA, Italia, Carbonara di Nola (NA)


Codice asta
4341414


Lotto
Lotto unico


Numero beni
1


Genere
Immobili


Categoria
Immobile residenziale


Valore di stima
-


Abitazione di tipo civile

Piena ed intera proprietà di appartamento ubicato a Carbonara di Nola (NA) - Corso Vittorio Emanuele n.137 oggi Via Generale G. Curto n.9, piano S1-T-1 Il bene oggetto di pignoramento fa parte di un fabbricato ad uso residenziale e commerciale, ubicato in Carbonara di Nola (Na) con accesso inizialmente da corso Vittorio Emanuele n.137 (ex 199) oggi da via Generale Giuseppe Curto n.9. Il comune di Carbonara di Nola si trova a circa 31 chilometri ad est di Napoli. Il bene pignorato è identificato al NCEU:- Foglio 2 Part.851, sub 13, cat. A/2 classe 4 Cons. 8,5 vani, S.C. 230 mq, Rendita € 592,63. (ex Foglio 2 Part.851, sub 1 graffato con il sub 6).L'immobile in oggetto, pur essendo inserito strutturalmente in un piccolo fabbricato all'interno del quale sono ubicati altri appartamenti e attività commerciali, è servito da un vano scala di proprietà ed uso esclusivo. L'accesso al vano scala oggi è consentito esclusivamente attraversando un piccolo cortile recintato di proprietà esclusiva di terzi estranei alla procedura in corso. Di fatto superato il cancello carrabile contraddistinto con il numero civico 9 di via Generale Giuseppe Curto, si attraversa un piccolo cortile e si arriva al portoncino d'ingresso del vano scale, questo portoncino era in origine un vano finestra. La trasformazione da finestra a porta è stata realizzata senza chiedere le necessarie autorizzazioni.In origine l'ingresso al vano scala avveniva attraverso il retrobottega del locale commerciale posto su corso Vittorio Emanuele, unità immobiliare riportata all’ NCEU foglio 2 particella 851 sub. 12 piano T-S1 Cat. C/1, classe 4 mq 32 gravata da pregressa servitù di passaggio verso il bene oggetto di pignoramento, ceduta dall' esecutato a terzi acquirenti, dopo aver senza alcuna autorizzazione chiuso il vano porta che rappresentava il legittimo e unico varco di accesso al vano scale.Il bene in oggetto ha pertanto, oggi, un unico accesso al piano terra (ex S1) posto all'interno del cortile, di proprietà aliena, su via Generale Giuseppe Curto n.9.Il passaggio attraverso questo cortile privato non sarà tuttavia concesso al futuro acquirente, quindi allo stato il bene risulta essere, per chi lo acquista, intercluso. Il tutto come meglio precisato nelle perizie depositate in atti dall’Esperto Stimatore Arch. Annunziata Prota del 01.07.2023 e del 31.01.2024.

Indirizzo
Corso Vittorio Emanuele, 137, 80030 Carbonara di Nola NA, Italia, Carbonara di Nola (NA)


Piano
-


Disponibilità
Occupato


Vani
8,50


Bagni
-


Metri quadri
230,00


Certificazione energetica
-


Dati catastali

Foglio:2, Particella:851, Subalterno:13


Data udienza
17/03/2026 ore 16:00


Tipo di vendita
Senza incanto


Modalità di vendita
Asincrona telematica


Luogo
N.A. -


Luogo presentazione offerte
-


Termine presentazione offerte
16/03/2026 ore 23:59


Prezzo base
€ 134.000,00


Offerta minima
€ 100.500,00


Rialzo minimo in caso di gara
€ 3.000,00


Deposito cauzionale
-


Deposito in conto spese
-


Tribunale
Nola

Tipo di procedura
Esecuzione immobiliare post legge 80

Ruolo
127/2020

Giudice
Beatrice Gennaro

Recapiti
-

Email
-

Delegato alla vendita
Toledo Federico
(Procede alle operazioni di vendita)
(Gestisce la visita del bene)

Recapiti
Tel. 0815752147

Scheda COD. 4341414 - Pubblicata dal 13/01/2026

La presente scheda di vendita riporta integralmente informazioni e documenti pervenuti ufficialmente dal Ministero e dal professionista incaricato.


Pubblicazione autorizzata dall’Autorità competente, è vietata ogni ripubblicazione o riproduzione anche parziale


Ti interessa questa vendita?

Documentazione

Visualizza su mappa

Mappa geografica del bene

Punti di interesse

Fonte dati

Nel raggio di {{range}}Km

Loading...
  • {{ getIcon(poi.type) }} {{ poi.localized }}: {{poi.count}}
  • {{ getIcon(poi.type) }} {{ poi.localized }}: {{poi.count}}
Dati non disponibili