Astegiudiziarie.it è parte di Rete Aste Network

Accedi o registrati

Non sei ancora registrato?

Oppure

Accedi

Abitazione di tipo civile

VIA DELLE VILLE N. 70, Capannori (LU)

€ 72.931,95

Offerta minima € 54.698,96


Codice A4349000

Lotto Lotto unico

Data udienza 26/05/2026 ore 11:00

Termine presentazione offerte 25/05/2026 ore 12:00

Abitazione di tipo civile

VIA DELLE VILLE N. 70, Capannori (LU)

€ 72.931,95

Offerta minima € 54.698,96


Codice A4349000

Lotto Lotto unico

Data udienza 26/05/2026 ore 11:00

Termine presentazione offerte 25/05/2026 ore 12:00

Ti interessa questa vendita?

Documentazione

Visualizza su mappa

Mappa geografica del bene

Punti di interesse

Fonte dati

Nel raggio di {{range}}Km

Loading...
  • {{ getIcon(poi.type) }} {{ poi.localized }}: {{poi.count}}
  • {{ getIcon(poi.type) }} {{ poi.localized }}: {{poi.count}}
Dati non disponibili

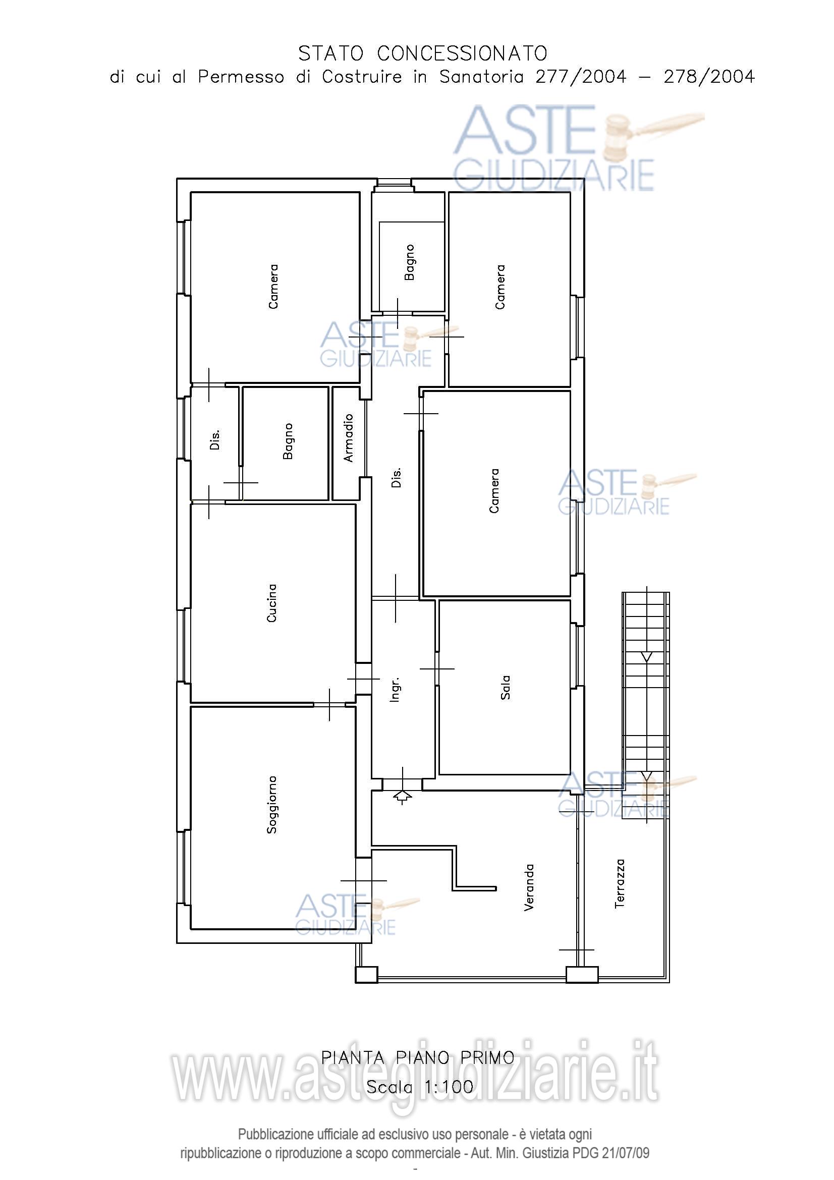
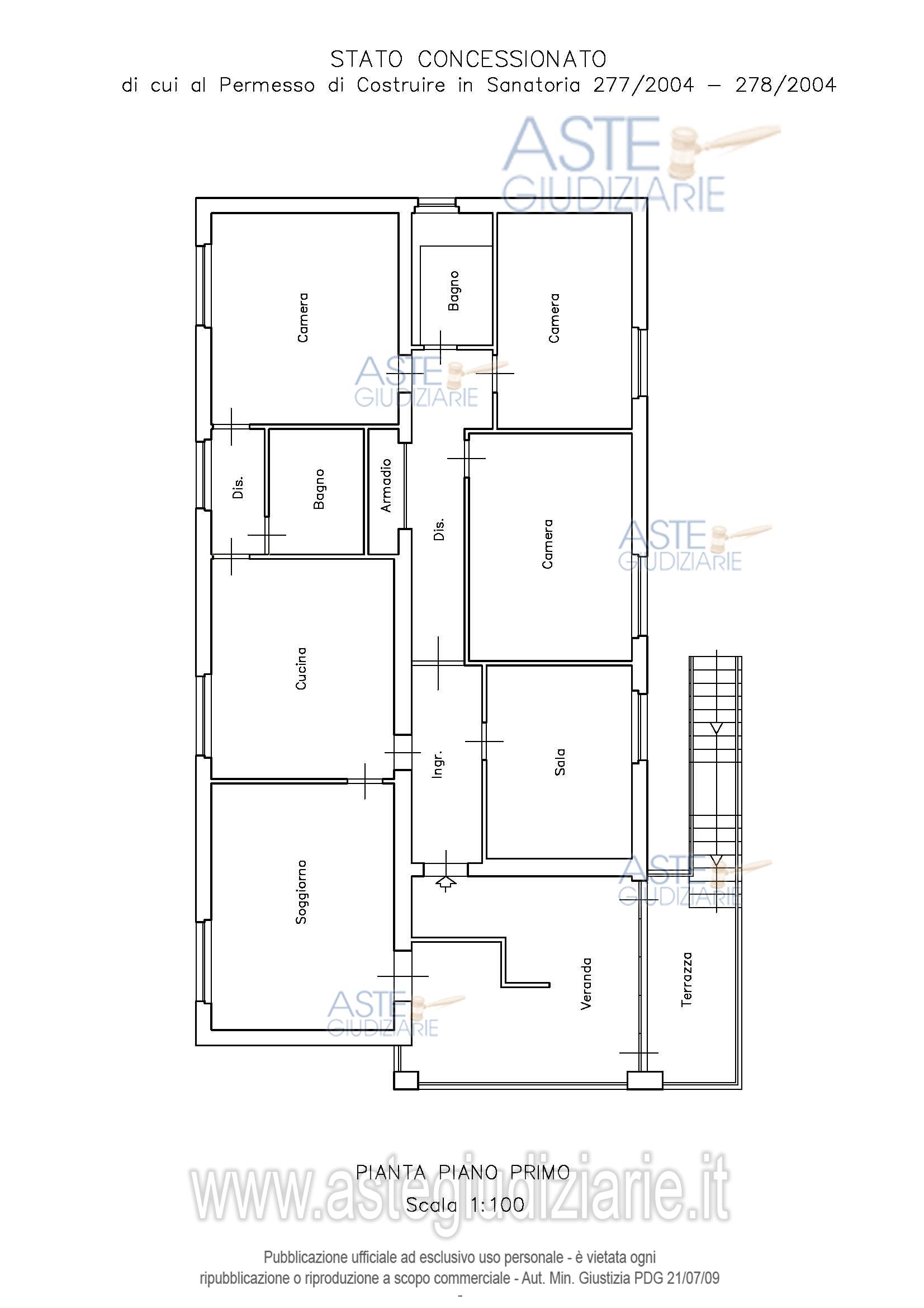
I diritti della piena proprietà su di un appartamento per civile abitazione, posto al piano primo di un fabbricato promiscuo elevato su due piani fuori terra compreso il terrestre. Si compone di ingresso-corridoio-disimpegno con vano armadi, altro ingresso in soggiorno, sala, cucina, tre camere e due bagni.

Indirizzo
VIA DELLE VILLE N. 70, Capannori (LU)


Codice asta
4349000


Lotto
Lotto unico


Numero beni
1


Genere
Immobili


Categoria
Immobile residenziale


Valore di stima
-


Abitazione di tipo civile

I diritti della piena proprietà su di un appartamento per civile abitazione, posto al piano primo di un fabbricato promiscuo elevato su due piani fuori terra compreso il terrestre. Si compone di ingresso-corridoio-disimpegno con vano armadi, altro ingresso in soggiorno, sala, cucina, tre camere e due bagni.

Indirizzo
VIA DELLE VILLE N. 70, Capannori (LU)


Piano
-


Disponibilità
-


Vani
7,50


Bagni
-


Metri quadri
191,00


Certificazione energetica
-


Dati catastali

Foglio:53, Particella:126, Subalterno:18


Data udienza
26/05/2026 ore 11:00


Tipo di vendita
Senza incanto


Modalità di vendita
Sincrona mista


Luogo
VIALE SAN CONCORDIO N. 996/B - Lucca 55100


Luogo presentazione offerte
-


Termine presentazione offerte
25/05/2026 ore 12:00


Prezzo base
€ 72.931,95


Offerta minima
€ 54.698,96


Rialzo minimo in caso di gara
€ 1.000,00


Deposito cauzionale
10% del prezzo offerto


Deposito in conto spese
-


Tribunale
Lucca

Tipo di procedura
Espropriazione immobiliare (cartabia)

Ruolo
166/2024

Giudice
Simoni Giulia

Recapiti
-

Email
-

Delegato alla vendita
Cozzi Marcello giovanni
(Procede alle operazioni di vendita)

Recapiti
Cell. 3351345594
Tel. 0583587942

Email
avvmarcellocozzi@tiscali.it

Custode giudiziario
Sofir srl Ivg lucca
(Gestisce la visita del bene)

Recapiti
Tel. 0583418555

Scheda COD. 4349000 - Pubblicata dal 03/04/2026

La presente scheda di vendita riporta integralmente informazioni e documenti pervenuti ufficialmente dal Ministero e dal professionista incaricato.


Pubblicazione autorizzata dall’Autorità competente, è vietata ogni ripubblicazione o riproduzione anche parziale


Ti interessa questa vendita?

Documentazione

Visualizza su mappa

Mappa geografica del bene

Punti di interesse

Fonte dati

Nel raggio di {{range}}Km

Loading...
  • {{ getIcon(poi.type) }} {{ poi.localized }}: {{poi.count}}
  • {{ getIcon(poi.type) }} {{ poi.localized }}: {{poi.count}}
Dati non disponibili