Astegiudiziarie.it è parte di Rete Aste Network

Accedi o registrati

Non sei ancora registrato?

Oppure

Accedi

Abitazione di tipo economico

via Pirandello, 199, Canicattì (AG)

€ 27.750,00

Offerta minima € 21.000,00


Codice A4328010

Lotto 2

Data udienza 16/03/2026 ore 10:30

Termine presentazione offerte 13/03/2026 ore 12:00

Abitazione di tipo economico

via Pirandello, 199, Canicattì (AG)

€ 27.750,00

Offerta minima € 21.000,00


Codice A4328010

Lotto 2

Data udienza 16/03/2026 ore 10:30

Termine presentazione offerte 13/03/2026 ore 12:00

Ti interessa questa vendita?

Documentazione

Visualizza su mappa

Mappa geografica del bene

Punti di interesse

Fonte dati

Nel raggio di {{range}}Km

Loading...
  • {{ getIcon(poi.type) }} {{ poi.localized }}: {{poi.count}}
  • {{ getIcon(poi.type) }} {{ poi.localized }}: {{poi.count}}
Dati non disponibili

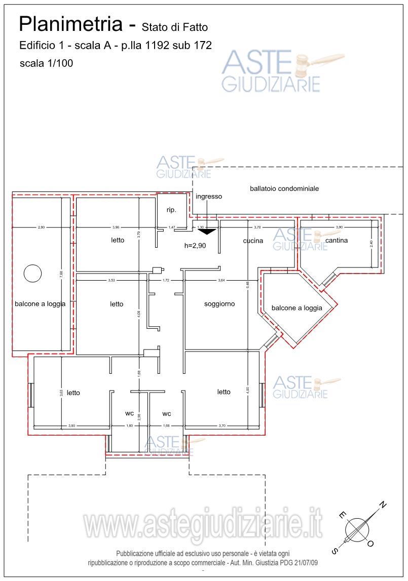
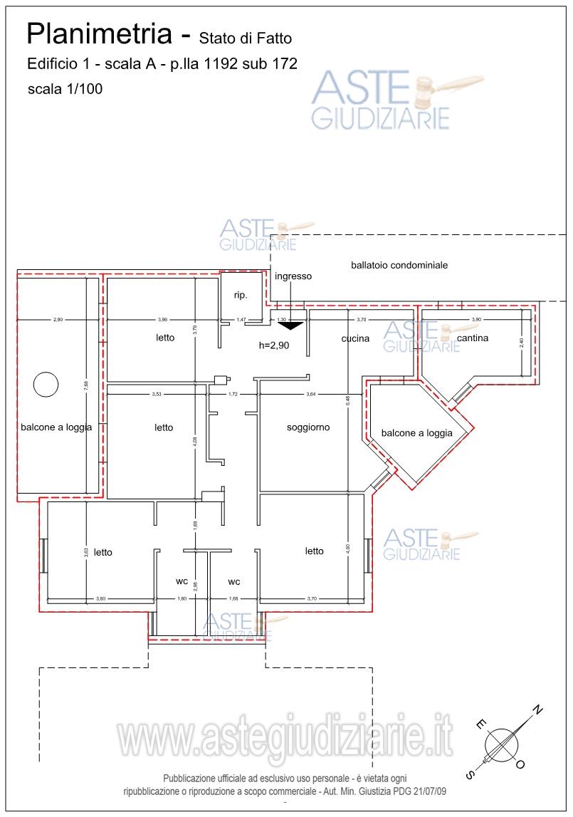
Unità immobiliare a destinazione residenziale ricadente in Canicattì (Ag) via Pirandello civico 199 – Edificio 1 – Scala A – al piano secondo di stabile comune di complessivi cinque piani fuori terra (Ballatoio Nord), dotato di ascensore. È identificato al NCEU Fg 54 p.lla 1192 (edificio 1 scala A) sub 172, cat A3, classe 4^, consistenza 8,0 vani

Indirizzo
via Pirandello, 199, Canicattì (AG)


Codice asta
4328010


Lotto
2


Numero beni
1


Genere
Immobili


Categoria
Immobile residenziale


Valore di stima
-


Abitazione di tipo economico

Unità immobiliare a destinazione residenziale ricadente in Canicattì (Ag) via Pirandello civico 199 – Edificio 1 – Scala A – al piano secondo di stabile comune di complessivi cinque piani fuori terra (Ballatoio Nord), dotato di ascensore. È identificato al NCEU Fg 54 p.lla 1192 (edificio 1 scala A) sub 172, cat A3, classe 4^, consistenza 8,0 vani

Indirizzo
via Pirandello, 199, Canicattì (AG)


Piano
2


Disponibilità
OCCUP


Vani
8,00


Bagni
-


Metri quadri
-


Certificazione energetica
-


Dati catastali

Foglio:57, Particella:1192, Subalterno:172


Data udienza
16/03/2026 ore 10:30


Tipo di vendita
Senza incanto


Modalità di vendita
Sincrona mista


Luogo
VIA NUVOLARI 5 PRESSO LA SEDE AAC ASSOCIAZIONE AVVOCATI E CONSULENTI - Porto Empedocle 92014


Luogo presentazione offerte
-


Termine presentazione offerte
13/03/2026 ore 12:00


Prezzo base
€ 27.750,00


Offerta minima
€ 21.000,00


Rialzo minimo in caso di gara
€ 500,00


Deposito cauzionale
-


Deposito in conto spese
-


Tribunale
Agrigento

Tipo di procedura
Esecuzione immobiliare post legge 80

Ruolo
127/2018

Giudice
Torregrossa Laura

Recapiti
-

Email
-

Delegato alla vendita
Cillino Alessandro
(Procede alle operazioni di vendita)

Recapiti
Tel. 0912733522

Email
alecillino@aacconsultingsrl.it

Custode giudiziario
Cillino Alessandro
(Gestisce la visita del bene)

Recapiti
Tel. 0912733522

Scheda COD. 4328010 - Pubblicata dal 05/01/2026

La presente scheda di vendita riporta integralmente informazioni e documenti pervenuti ufficialmente dal Ministero e dal professionista incaricato.


Pubblicazione autorizzata dall’Autorità competente, è vietata ogni ripubblicazione o riproduzione anche parziale


Ti interessa questa vendita?

Documentazione

Visualizza su mappa

Mappa geografica del bene

Storico delle vendite

Data venditaPrezzo base
16/07/2025€ 49.300,00
30/10/2025€ 37.000,00
16/03/2026€ 27.750,00

Punti di interesse

Fonte dati

Nel raggio di {{range}}Km

Loading...
  • {{ getIcon(poi.type) }} {{ poi.localized }}: {{poi.count}}
  • {{ getIcon(poi.type) }} {{ poi.localized }}: {{poi.count}}
Dati non disponibili