Astegiudiziarie.it è parte di Rete Aste Network

Accedi o registrati

Non sei ancora registrato?

Oppure

Accedi

Abitazione di tipo economico

Via Cristina, 8, 41011 CAMPOGALLIANO MO, Italia, Campogalliano (MO)

€ 69.000,00

Offerta minima € 51.750,00


Codice A4336051

Lotto Lotto unico

Data udienza 19/03/2026 ore 11:00

Termine presentazione offerte 18/03/2026 ore 23:59

Abitazione di tipo economico

Via Cristina, 8, 41011 CAMPOGALLIANO MO, Italia, Campogalliano (MO)

€ 69.000,00

Offerta minima € 51.750,00


Codice A4336051

Lotto Lotto unico

Data udienza 19/03/2026 ore 11:00

Termine presentazione offerte 18/03/2026 ore 23:59

Ti interessa questa vendita?

Documentazione

Visualizza su mappa

Mappa geografica del bene

Punti di interesse

Fonte dati

Nel raggio di {{range}}Km

Loading...
  • {{ getIcon(poi.type) }} {{ poi.localized }}: {{poi.count}}
  • {{ getIcon(poi.type) }} {{ poi.localized }}: {{poi.count}}
Dati non disponibili

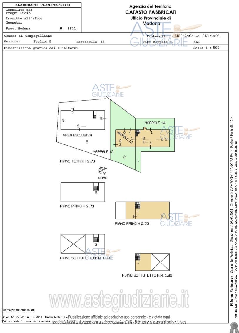
Piena ed esclusiva proprietà di complesso immobiliare sito nel comune di Campogalliano (MO), Via Cristina n°8, costituito da fabbricato ad uso civile abitazione con magazzini-cantine con terreno circostante e disposto su più livelli collegati da scala interna, con ingresso da portico comune e con parte abitativa a piano terra. Nella parte ovest del fabbricato, con accesso dall’esterno vi sono tre cantine (di fronte all’edificio adiacente).

Indirizzo
Via Cristina, 8, 41011 CAMPOGALLIANO MO, Italia, Campogalliano (MO)


Codice asta
4336051


Lotto
Lotto unico


Numero beni
3


Genere
Immobili


Categoria
Immobile residenziale


Valore di stima
-


Abitazione di tipo economico

Terreno esteso ettari 00.00.86 Semin. Arbor.

Indirizzo
Via Cristina, 8, 41011 CAMPOGALLIANO MO, Italia, Campogalliano (MO)


Piano
-


Disponibilità
-


Vani
-


Bagni
-


Metri quadri
86,00


Certificazione energetica
-


Abitazione di tipo economico

Civile abitazione al piano terra e primo piano e soffitta al secondo piano; 8,5 vani

Indirizzo
Via Cristina, 8, 41011 CAMPOGALLIANO MO, Italia, Campogalliano (MO)


Piano
-


Disponibilità
-


Vani
8,50


Bagni
-


Metri quadri
215,00


Certificazione energetica
-


Abitazione di tipo economico

Cantina al piano terra e legnaia al primo piano: metri quadri 120

Indirizzo
Via Cristina, 8, 41011 CAMPOGALLIANO MO, Italia, Campogalliano (MO)


Piano
-


Disponibilità
-


Vani
-


Bagni
-


Metri quadri
120,00


Certificazione energetica
-


Data udienza
19/03/2026 ore 11:00


Tipo di vendita
Senza incanto


Modalità di vendita
Asincrona telematica


Luogo
N.A. -


Luogo presentazione offerte
-


Termine presentazione offerte
18/03/2026 ore 23:59


Prezzo base
€ 69.000,00


Offerta minima
€ 51.750,00


Rialzo minimo in caso di gara
€ 2.000,00


Deposito cauzionale
10% del prezzo offerto


Deposito in conto spese
-


Tribunale
Modena

Tipo di procedura
Esecuzione immobiliare post legge 80

Ruolo
6/2023

Delegato alla vendita
Menetti Luca
(Procede alle operazioni di vendita)

Recapiti
Cell. 3405815399

Email
lucamenetti@libero.it

Custode giudiziario
Manelli Alex
(Gestisce la visita del bene)

Recapiti
Tel. 059847301

Scheda COD. 4336051 - Pubblicata dal 15/01/2026

La presente scheda di vendita riporta integralmente informazioni e documenti pervenuti ufficialmente dal Ministero e dal professionista incaricato.


Pubblicazione autorizzata dall’Autorità competente, è vietata ogni ripubblicazione o riproduzione anche parziale


Ti interessa questa vendita?

Documentazione

Visualizza su mappa

Mappa geografica del bene

Storico delle vendite

Data venditaPrezzo base
18/11/2025€ 92.000,00
19/03/2026€ 69.000,00

Punti di interesse

Fonte dati

Nel raggio di {{range}}Km

Loading...
  • {{ getIcon(poi.type) }} {{ poi.localized }}: {{poi.count}}
  • {{ getIcon(poi.type) }} {{ poi.localized }}: {{poi.count}}
Dati non disponibili