Astegiudiziarie.it è parte di Rete Aste Network

Accedi o registrati

Non sei ancora registrato?

Oppure

Accedi

Abitazione di tipo civile

frazione Licusati, via S. Caterina, Camerota (SA)

€ 66.813,30

Offerta minima € 49.637,48


Codice A4298134

Lotto Lotto unico

Data udienza 19/12/2025 ore 16:30

Termine presentazione offerte 18/12/2025 ore 12:00

Abitazione di tipo civile

frazione Licusati, via S. Caterina, Camerota (SA)

€ 66.813,30

Offerta minima € 49.637,48


Codice A4298134

Lotto Lotto unico

Data udienza 19/12/2025 ore 16:30

Termine presentazione offerte 18/12/2025 ore 12:00

Vendita deserta

Ti interessa questa vendita?

Documentazione

Visualizza su mappa

Mappa geografica del bene

Punti di interesse

Fonte dati

Nel raggio di {{range}}Km

Loading...
  • {{ getIcon(poi.type) }} {{ poi.localized }}: {{poi.count}}
  • {{ getIcon(poi.type) }} {{ poi.localized }}: {{poi.count}}
Dati non disponibili

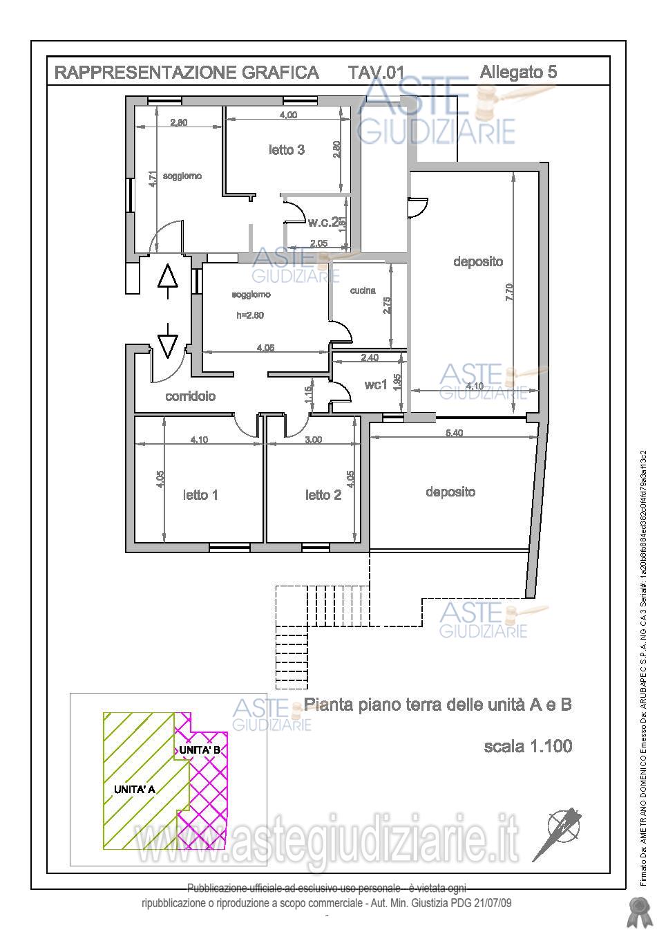
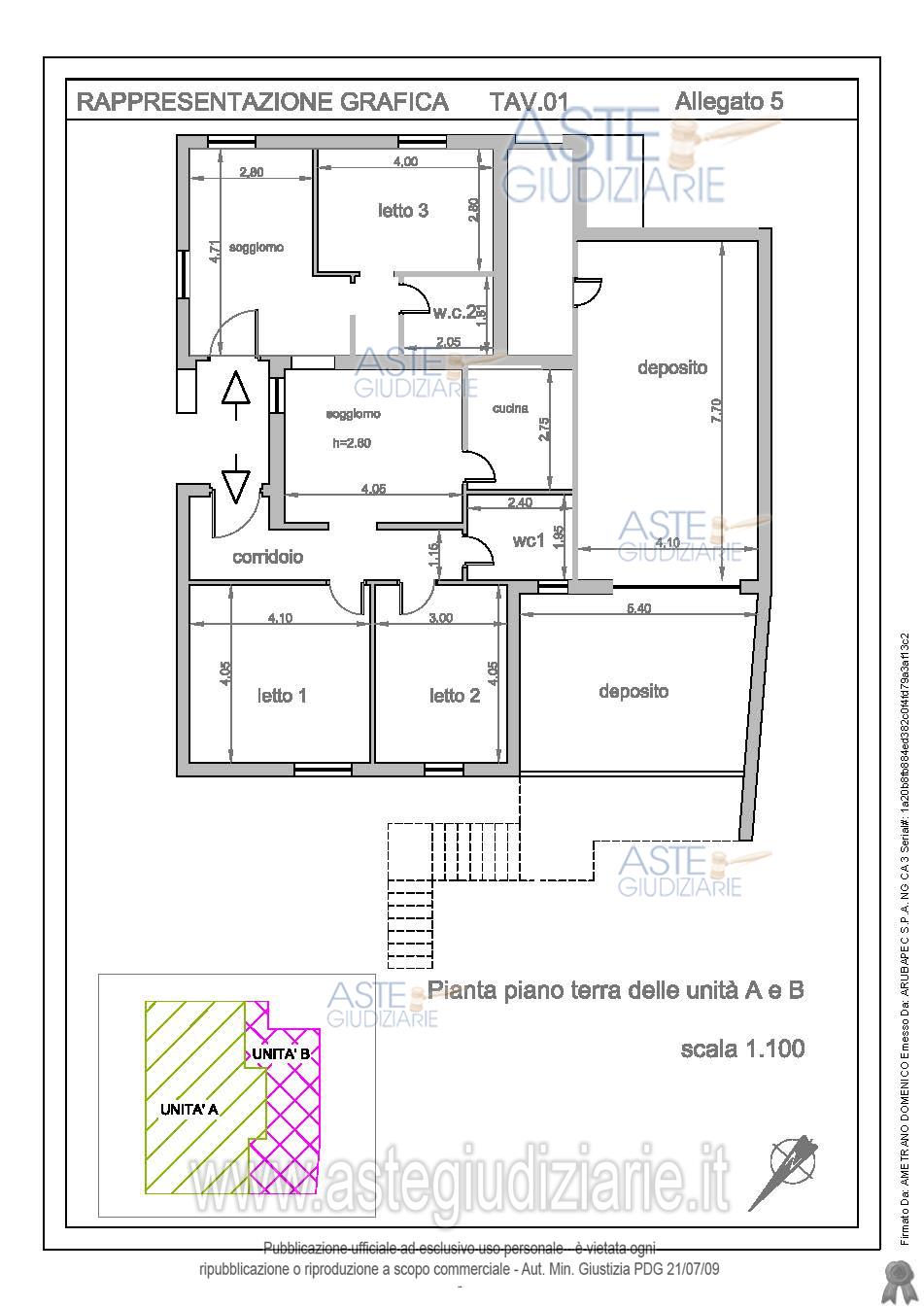
Immobile costituito da: Un Piano Terra del fabbricato che presenta in parte una destinazione abitativa individuata in seguito come unità A e, in parte, una destinazione di deposito-garage, individuata in seguito come unità B; ed un Primo Piano del fabbricato che presenta esclusivamente una destinazione abitativa ed è suddiviso in due unità individuate in seguito come C e D.

Indirizzo
frazione Licusati, via S. Caterina, Camerota (SA)


Codice asta
4298134


Lotto
Lotto unico


Numero beni
2


Genere
Immobili


Categoria
Immobile residenziale


Valore di stima
-


Abitazione di tipo civile

Il Piano Terra del fabbricato presenta in parte una destinazione abitativa individuata in seguito come unità A e, in parte, una destinazione di deposito-garage, individuata in seguito come unità B. Unità A: unità abitativa al piano terra composta da 2 vani soggiorno, una cucina, 2 wc e 3 camere da letto, oltre ambienti distributivi. Unità B: vano deposito delimitato da un cancello, da cui si accede a n. 2 vani deposito più interni.

Indirizzo
Via Santa Caterina, Licusati SA, Italia, Camerota (SA)


Piano
-


Disponibilità
-


Vani
5,00


Bagni
-


Metri quadri
94,00


Certificazione energetica
-


Abitazione di tipo civile

Il Primo Piano del fabbricato presenta esclusivamente una destinazione abitativa ed è suddiviso in due unità individuate in seguito come C e D. Unità C: unità abitativa al primo piano composta da ingresso, zona soggiorno-pranzo, con accesso su un ampio terrazzo coperto, cucina, bagno e 2 camere da letto. Unità D: unità abitativa collegata con l’unità abitativa C mediante una porta ad oggi bloccata, comprende una zona soggiorno-cucina, un bagno, una camera da letto oltre ambiente distributivo.

Indirizzo
Via Santa Caterina, Licusati SA, Italia, Camerota (SA)


Piano
-


Disponibilità
-


Vani
6,50


Bagni
-


Metri quadri
129,00


Certificazione energetica
-


Data udienza
19/12/2025 ore 16:30


Tipo di vendita
Senza incanto


Modalità di vendita
Asincrona telematica


Luogo
-


Luogo presentazione offerte
-


Termine presentazione offerte
18/12/2025 ore 12:00


Prezzo base
€ 66.813,30


Offerta minima
€ 49.637,48


Rialzo minimo in caso di gara
-


Deposito cauzionale
10% del prezzo offerto


Deposito in conto spese
-


Tribunale
Vallo della Lucania

Tipo di procedura
Esecuzione immobiliare post legge 80

Ruolo
34/2022

Giudice
Giglio Roberta

Recapiti
-

Email
-

Delegato alla vendita
Schiavo Ugo
(Procede alle operazioni di vendita)

Recapiti
-

Email
-

Custode giudiziario
Schiavo Ugo
(Gestisce la visita del bene)

Recapiti
Cell. 3203429858

Email

Scheda COD. 4298134 - Pubblicata dal 24/09/2025

La presente scheda di vendita riporta integralmente informazioni e documenti pervenuti ufficialmente dal Ministero e dal professionista incaricato.

Pubblicazione notarizzata su Blockchain


Pubblicazione autorizzata dall’Autorità competente, è vietata ogni ripubblicazione o riproduzione anche parziale


Ti interessa questa vendita?

Documentazione

Visualizza su mappa

Mappa geografica del bene

Storico delle vendite

Data venditaPrezzo base
24/05/2024€ 91.650,00
12/12/2024€ 82.485,00
05/06/2025€ 74.237,00
19/12/2025€ 66.813,30

Punti di interesse

Fonte dati

Nel raggio di {{range}}Km

Loading...
  • {{ getIcon(poi.type) }} {{ poi.localized }}: {{poi.count}}
  • {{ getIcon(poi.type) }} {{ poi.localized }}: {{poi.count}}
Dati non disponibili