Accedi o registrati
Oppure
Accedi
Corso Umberto I, 5, Caltanissetta (CL)
Offerta minima € 38.804,02
Codice A188092
Lotto Lotto unico
Data udienza 09/07/2025 ore 16:30
Termine presentazione offerte 08/07/2025 ore 12:00
Corso Umberto I, 5, Caltanissetta (CL)
Offerta minima € 38.804,02
Codice A188092
Lotto Lotto unico
Data udienza 09/07/2025 ore 16:30
Termine presentazione offerte 08/07/2025 ore 12:00
                Nel raggio di {{range}}Km
                
                
            
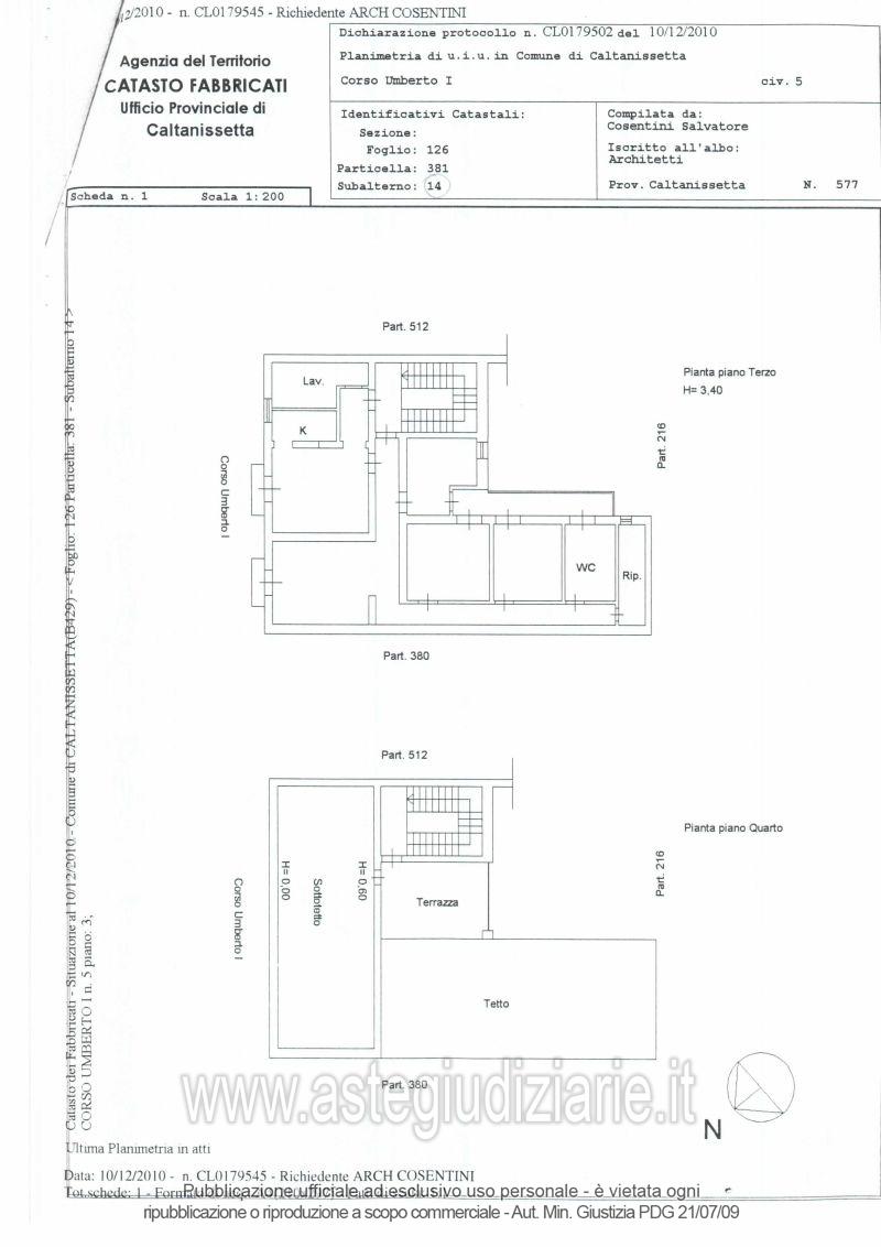
Immobile al terzo piano composto da: cucina, cucina-pranzo, lavanderia, soggiorno, due camere, una camera matrimoniale, bagno, ripostiglio, corridoio e tre balconi, nonché da una terrazza posta al piano soprastante (quarto piano) a cui si accede dal vano scala, da un sottotetto con accesso dalla predetta terrazza e da un'aerea adibita a tetto.
                                Indirizzo
                                
                                    Corso Umberto I, 5,
                                Caltanissetta (CL)
                            
                                Codice asta
                                
                                188092
                            
                                Lotto
                                
                                Lotto unico
                            
                                Numero beni
                                
                                1
                            
                                Genere
                                
                                Immobili
                            
                                Categoria
                                
                                Immobile residenziale
                            
                                    Valore di stima
                                
                                -
                            
Appartamento
Immobile al terzo piano composto da: cucina, cucina-pranzo, lavanderia, soggiorno, due camere, una camera matrimoniale, bagno, ripostiglio, corridoio e tre balconi, nonché da una terrazza posta al piano soprastante (quarto piano) a cui si accede dal vano scala, da un sottotetto con accesso dalla predetta terrazza e da un'aerea adibita a tetto.
                    Indirizzo
                    
                        Corso Umberto I n. 5,
                    Caltanissetta (CL)
                    
                    
                    
                    
                    
                
                    Piano
                    
                    -
                
                    Disponibilità
                    
                        -
                
                    Vani
                    
                        8,00
                
                    Bagni
                    
                    -
                
                    Metri quadri
                    
                        161,84
                
                    Certificazione energetica
                    
                    -
                
                                    Delegato alla vendita
                                    
                                    Catalano Gaetano fabio
                                        
(Procede alle operazioni di vendita)
                                                                    
                                    Recapiti
                                    
                                    Cell. 3384206393
Tel. 0934584954
                                
                                    Email
                                    
                                                -
                                
                                    Custode giudiziario
                                    
                                    Catalano Gaetano fabio
                                                                            
(Gestisce la visita del bene)
                                
                                    Recapiti
                                    
                                    Cell. 3384206393
Tel. 0934584954
                                
                                    Email
                                    
                                
Scheda COD. 188092 - Pubblicata dal 17/04/2025
La presente scheda di vendita riporta integralmente informazioni e documenti pervenuti ufficialmente dal Ministero e dal professionista incaricato.
La sua pubblicazione è prolungata, in conformità agli accordi con il Tribunale, con l’obiettivo di garantire un’informazione continua e aggiornata, nel rispetto delle tempistiche procedurali.
Pubblicazione autorizzata dall’Autorità competente, è vietata ogni ripubblicazione o riproduzione anche parziale
| Data vendita | Prezzo base | 
| 20/03/2012 | € 202.500,00 | 
| 27/03/2012 | € 202.500,00 | 
| 12/10/2012 | € 151.875,00 | 
| 17/03/2015 | € 113.907,00 | 
| 14/07/2016 | € 113.907,00 | 
| 05/05/2017 | € 85.430,25 | 
| 07/12/2017 | € 64.072,68 | 
| 08/11/2023 | € 60.869,05 | 
| 09/07/2025 | € 51.738,70 | 
                Nel raggio di {{range}}Km