Astegiudiziarie.it è parte di Rete Aste Network

Accedi o registrati

Non sei ancora registrato?

Oppure

Accedi

Abitazione di tipo popolare

via Ernesto Faraone n. 11, Caivano (NA)

€ 53.000,00

Offerta minima € 39.750,00


Codice A4348354

Lotto Lotto unico

Data udienza 16/06/2026 ore 11:30

Termine presentazione offerte 15/06/2026 ore 23:59

Abitazione di tipo popolare

via Ernesto Faraone n. 11, Caivano (NA)

€ 53.000,00

Offerta minima € 39.750,00


Codice A4348354

Lotto Lotto unico

Data udienza 16/06/2026 ore 11:30

Termine presentazione offerte 15/06/2026 ore 23:59

Ti interessa questa vendita?

Documentazione

Visualizza su mappa

Mappa geografica del bene

Punti di interesse

Fonte dati

Nel raggio di {{range}}Km

Loading...
  • {{ getIcon(poi.type) }} {{ poi.localized }}: {{poi.count}}
  • {{ getIcon(poi.type) }} {{ poi.localized }}: {{poi.count}}
Dati non disponibili

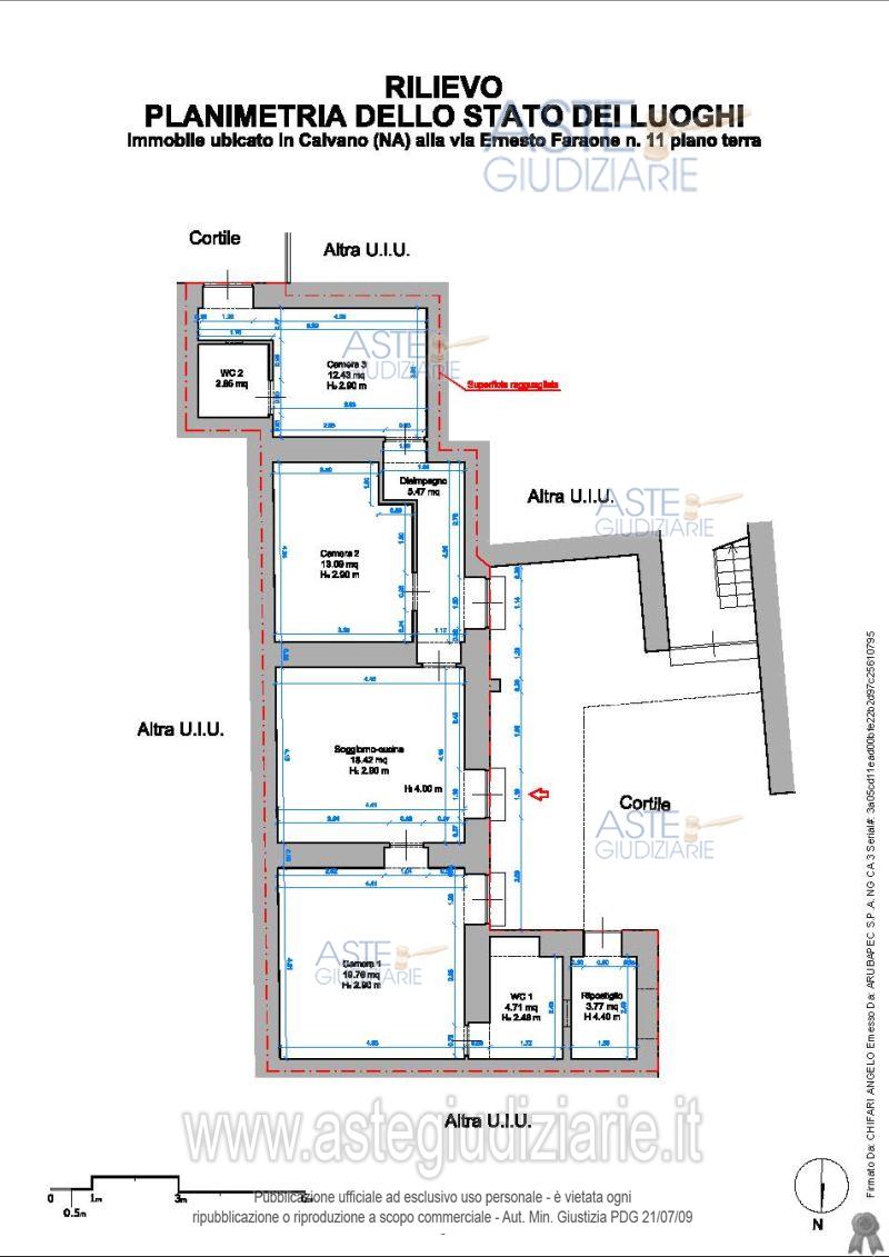
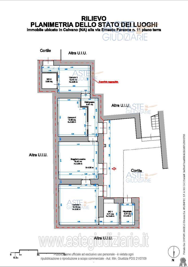
Piena ed intera proprietà di abitazione di tipo popolare sita in via Ernesto Faraone n. 11 – Comune di Caivano (NA) – piano terra composta da cucina-soggiorno, due bagni, tre camere e da un ripostiglio esterno.

Indirizzo
via Ernesto Faraone n. 11, Caivano (NA)


Codice asta
4348354


Lotto
Lotto unico


Numero beni
1


Genere
Immobili


Categoria
Immobile residenziale


Valore di stima
-


Abitazione di tipo popolare

Piena ed intera proprietà di abitazione di tipo popolare sita in via Ernesto Faraone n. 11 – Comune di Caivano (NA) – piano terra composto da cucina-soggiorno, due bagni, tre camere e da un ripostiglio esterno.

Indirizzo
via Ernesto Faraone n. 11, Caivano (NA)


Piano
-


Disponibilità
OCCUPATO


Vani
5,00


Bagni
2


Metri quadri
90,00


Certificazione energetica
-


Dati catastali

Foglio:31, Particella:393, Subalterno:6, Graffato:p.lla 428 sub 9


Data udienza
16/06/2026 ore 11:30


Tipo di vendita
Senza incanto


Modalità di vendita
Asincrona telematica


Luogo
-


Luogo presentazione offerte
-


Termine presentazione offerte
15/06/2026 ore 23:59


Prezzo base
€ 53.000,00


Offerta minima
€ 39.750,00


Rialzo minimo in caso di gara
€ 2.000,00


Deposito cauzionale
10% del prezzo offerto


Deposito in conto spese
-


Tribunale
Napoli Nord

Tipo di procedura
Espropriazione immobiliare (cartabia)

Ruolo
193/2024

Giudice
Paone Antonella

Recapiti
-

Email
-

Delegato alla vendita
Pratillo Michelina
(Procede alle operazioni di vendita)

Recapiti
-

Email
-

Custode giudiziario
Pratillo Michelina
(Gestisce la visita del bene)

Recapiti
-

Scheda COD. 4348354 - Pubblicata dal 31/03/2026

La presente scheda di vendita riporta integralmente informazioni e documenti pervenuti ufficialmente dal Ministero e dal professionista incaricato.


Pubblicazione autorizzata dall’Autorità competente, è vietata ogni ripubblicazione o riproduzione anche parziale


Ti interessa questa vendita?

Documentazione

Visualizza su mappa

Mappa geografica del bene

Punti di interesse

Fonte dati

Nel raggio di {{range}}Km

Loading...
  • {{ getIcon(poi.type) }} {{ poi.localized }}: {{poi.count}}
  • {{ getIcon(poi.type) }} {{ poi.localized }}: {{poi.count}}
Dati non disponibili