Astegiudiziarie.it è parte di Rete Aste Network

Accedi o registrati

Non sei ancora registrato?

Oppure

Accedi

Abitazione di tipo civile, ufficio

Via Isonzo, 17, 09122 Cagliari CA, Italia, Cagliari (CA)

€ 79.650,00

Offerta minima € 59.738,00


Codice A4349217

Lotto 4

Data udienza 07/07/2026 ore 10:30

Termine presentazione offerte 06/07/2026 ore 10:30

Abitazione di tipo civile, ufficio

Via Isonzo, 17, 09122 Cagliari CA, Italia, Cagliari (CA)

€ 79.650,00

Offerta minima € 59.738,00


Codice A4349217

Lotto 4

Data udienza 07/07/2026 ore 10:30

Termine presentazione offerte 06/07/2026 ore 10:30

Ti interessa questa vendita?

Documentazione

Visualizza su mappa

Mappa geografica del bene

Punti di interesse

Fonte dati

Nel raggio di {{range}}Km

Loading...
  • {{ getIcon(poi.type) }} {{ poi.localized }}: {{poi.count}}
  • {{ getIcon(poi.type) }} {{ poi.localized }}: {{poi.count}}
Dati non disponibili

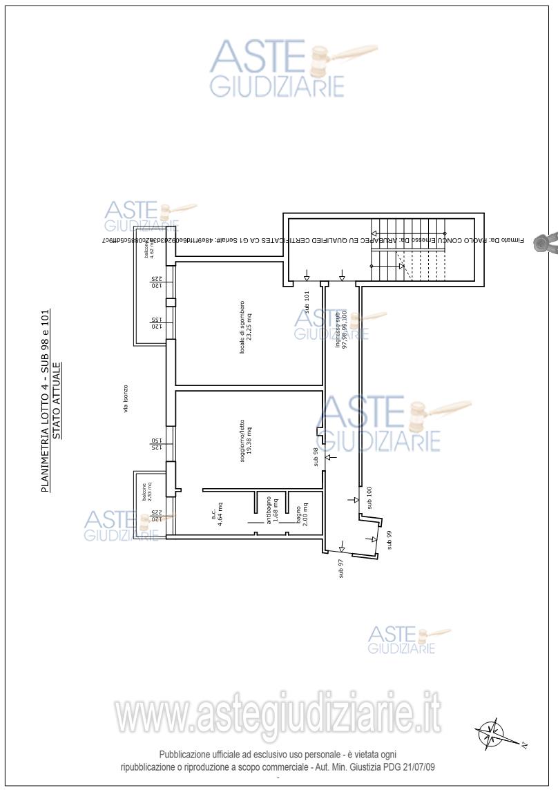
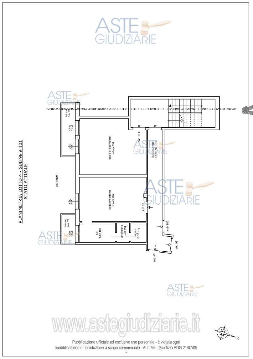
-Appartamento a uso civile abitazione sito al piano terzo e porzione di lastrico composto da un ingresso salone con angolo cottura, un bagno e un balcone ;-Appartamento a uso ufficio sito al piano terzo e porzione di lastrico solare composto da un unico ambiente privo di servizio igienico, con un balcone

Indirizzo
Via Isonzo, 17, 09122 Cagliari CA, Italia, Cagliari (CA)


Codice asta
4349217


Lotto
4


Numero beni
2


Genere
Immobili


Categoria
Immobile residenziale


Valore di stima
-


Abitazione di tipo civile

-Appartamento a uso civile abitazione sito al piano terzo e porzione di lastrico composto da un ingresso salone con angolo cottura, un bagno e un balcone ;

Indirizzo
Via Isonzo, 17, 09122 Cagliari CA, Italia, Cagliari (CA)


Piano
3 E 4


Disponibilità
OCCUPATO


Vani
2,00


Bagni
-


Metri quadri
37,00


Certificazione energetica
-


Ufficio

-Appartamento a uso ufficio sito al piano terzo e porzione di lastrico solare composto da un unico ambiente privo di servizio igienico, con un balcone

Indirizzo
Via Isonzo, 17, 09122 Cagliari CA, Italia, Cagliari (CA)


Piano
3 e 4


Disponibilità
IN CORSO DI LIBERAZIONE


Vani
1,50


Bagni
-


Metri quadri
29,00


Certificazione energetica
-


Data udienza
07/07/2026 ore 10:30


Tipo di vendita
Senza incanto


Modalità di vendita
Asincrona telematica


Luogo
N.A. -


Luogo presentazione offerte
-


Termine presentazione offerte
06/07/2026 ore 10:30


Prezzo base
€ 79.650,00


Offerta minima
€ 59.738,00


Rialzo minimo in caso di gara
€ 5.000,00


Deposito cauzionale
10000


Deposito in conto spese
-


Tribunale
Cagliari

Tipo di procedura
Espropriazione immobiliare (cartabia)

Ruolo
113/2024

Delegato alla vendita
Tripepi Barbara
(Procede alle operazioni di vendita)

Recapiti
Cell. 3517155575

Email
btripepi@tiscali.it

Custode giudiziario
Ivg cagliari 
(Gestisce la visita del bene)

Recapiti
Tel. 0702299036

Scheda COD. 4349217 - Pubblicata dal 13/04/2026

La presente scheda di vendita riporta integralmente informazioni e documenti pervenuti ufficialmente dal Ministero e dal professionista incaricato.


Pubblicazione autorizzata dall’Autorità competente, è vietata ogni ripubblicazione o riproduzione anche parziale


Ti interessa questa vendita?

Documentazione

Visualizza su mappa

Mappa geografica del bene

Punti di interesse

Fonte dati

Nel raggio di {{range}}Km

Loading...
  • {{ getIcon(poi.type) }} {{ poi.localized }}: {{poi.count}}
  • {{ getIcon(poi.type) }} {{ poi.localized }}: {{poi.count}}
Dati non disponibili