Astegiudiziarie.it è parte di Rete Aste Network

Accedi o registrati

Non sei ancora registrato?

Oppure

Accedi

Abitazione di tipo economico

località Spedino - Via Defensa 15, Borgorose (RI)

€ 37.925,87

Offerta minima € 28.444,40


Codice A4342994

Lotto Lotto unico

Data udienza 13/05/2026 ore 12:15

Termine presentazione offerte 12/05/2026 ore 12:00

Abitazione di tipo economico

località Spedino - Via Defensa 15, Borgorose (RI)

€ 37.925,87

Offerta minima € 28.444,40


Codice A4342994

Lotto Lotto unico

Data udienza 13/05/2026 ore 12:15

Termine presentazione offerte 12/05/2026 ore 12:00

Ti interessa questa vendita?

Documentazione

Visualizza su mappa

Mappa geografica del bene

Punti di interesse

Fonte dati

Nel raggio di {{range}}Km

Loading...
  • {{ getIcon(poi.type) }} {{ poi.localized }}: {{poi.count}}
  • {{ getIcon(poi.type) }} {{ poi.localized }}: {{poi.count}}
Dati non disponibili

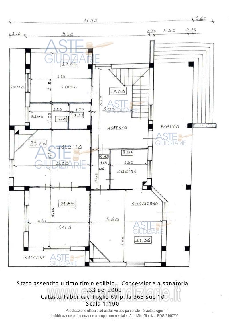
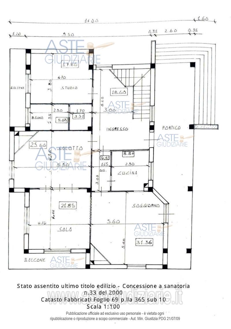
Quota pari a 1000/1000 del diritto di proprietà di APPARTAMENTO posto al piano primo di una palazzina plurifamiliare con GARAGE e CANTINA sito in BORGOROSE (RI) – Località Spedino - Via Defensa, 15.

Indirizzo
località Spedino - Via Defensa 15, Borgorose (RI)


Codice asta
4342994


Lotto
Lotto unico


Numero beni
1


Genere
Immobili


Categoria
Immobile residenziale


Valore di stima
-


Abitazione di tipo economico

Quota pari a 1000/1000 del diritto di proprietà di APPARTAMENTO posto al piano primo di una palazzina plurifamiliare con GARAGE e CANTINA sito in BORGOROSE (RI) – Località Spedino - Via Defensa, 15. COMPOSTO DA: circa 70mq, con un comodo soggiorno, cucina, due camere e due bagni oltre ad una superficie esterna di circa 34mq distribuita tra un balcone e un'area a terrazzo; completa la proprietà un garage con cantina di complessivi 24mq netti.

Indirizzo
località Spedino - Via Defensa 15, Borgorose (RI)


Piano
1 S1


Disponibilità
LIBERO


Vani
5,50


Bagni
-


Metri quadri
-


Certificazione energetica
-


Dati catastali

Foglio:69, Particella:365, Subalterno:10
Foglio:69, Particella:365, Subalterno:18


Data udienza
13/05/2026 ore 12:15


Tipo di vendita
Senza incanto


Modalità di vendita
Asincrona telematica


Luogo
N.A. -


Luogo presentazione offerte
-


Termine presentazione offerte
12/05/2026 ore 12:00


Prezzo base
€ 37.925,87


Offerta minima
€ 28.444,40


Rialzo minimo in caso di gara
€ 1.000,00


Deposito cauzionale
10% del prezzo offerto


Deposito in conto spese
-


Tribunale
Rieti

Tipo di procedura
Espropriazione immobiliare (cartabia)

Ruolo
48/2024

Giudice
Guglielmi Marilina

Recapiti
-

Email
-

Delegato alla vendita
Galiani Mauro
(Procede alle operazioni di vendita)

Recapiti
Cell. 3485100938

Email
mauro.galiani@studiogaliani.pr...

Custode giudiziario
Galiani Mauro
(Gestisce la visita del bene)

Recapiti
Cell. 3485100938

Scheda COD. 4342994 - Pubblicata dal 25/03/2026

La presente scheda di vendita riporta integralmente informazioni e documenti pervenuti ufficialmente dal Ministero e dal professionista incaricato.


Pubblicazione autorizzata dall’Autorità competente, è vietata ogni ripubblicazione o riproduzione anche parziale


Ti interessa questa vendita?

Documentazione

Visualizza su mappa

Mappa geografica del bene

Storico delle vendite

Data venditaPrezzo base
11/03/2026€ 50.567,82
13/05/2026€ 37.925,87

Punti di interesse

Fonte dati

Nel raggio di {{range}}Km

Loading...
  • {{ getIcon(poi.type) }} {{ poi.localized }}: {{poi.count}}
  • {{ getIcon(poi.type) }} {{ poi.localized }}: {{poi.count}}
Dati non disponibili