Astegiudiziarie.it è parte di Rete Aste Network

Accedi o registrati

Non sei ancora registrato?

Oppure

Accedi

Abitazione di tipo economico

Via Rosina Anselmi, 27, Belpasso (CT)

€ 15.000,00

Offerta minima € 11.250,00


Codice A4348916

Lotto Lotto unico

Data udienza 17/06/2026 ore 11:30

Termine presentazione offerte 16/06/2026 ore 13:00

Abitazione di tipo economico

Via Rosina Anselmi, 27, Belpasso (CT)

€ 15.000,00

Offerta minima € 11.250,00


Codice A4348916

Lotto Lotto unico

Data udienza 17/06/2026 ore 11:30

Termine presentazione offerte 16/06/2026 ore 13:00

Ti interessa questa vendita?

Documentazione

Visualizza su mappa

Mappa geografica del bene

Punti di interesse

Fonte dati

Nel raggio di {{range}}Km

Loading...
  • {{ getIcon(poi.type) }} {{ poi.localized }}: {{poi.count}}
  • {{ getIcon(poi.type) }} {{ poi.localized }}: {{poi.count}}
Dati non disponibili

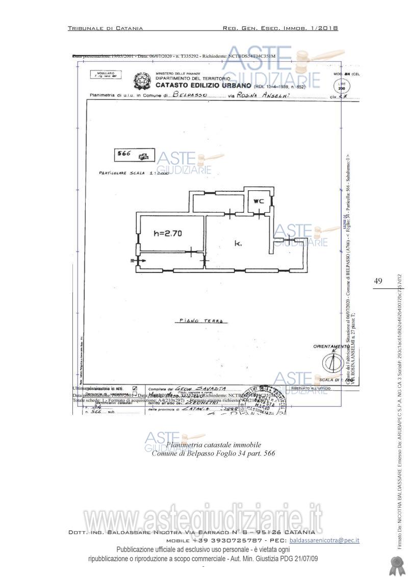
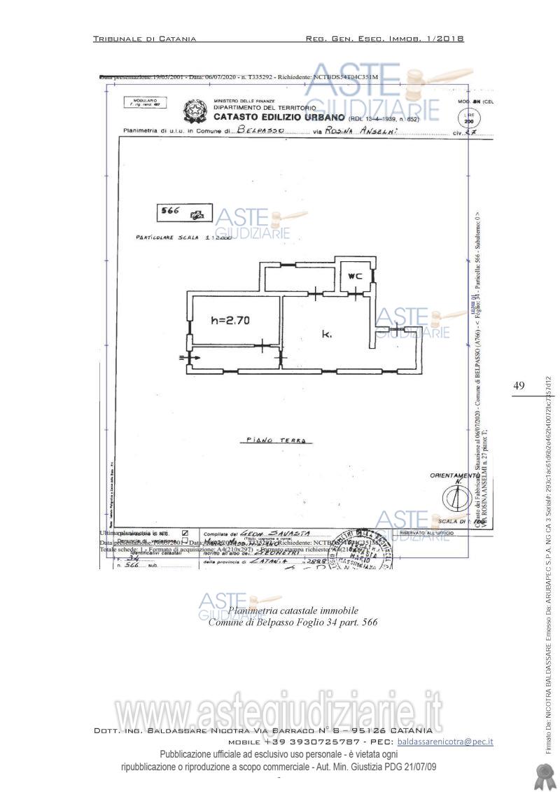
Fabbricato adibito a civile abitazione ad una elevazione fuori terra, indipendente composto da ampio soggiorno-living che si apre sull’ingresso con cucina a vista (50 mq.), altri quattro vani (in tutto, 70,90 mq.), terrazzo (78 mq.) corridoio-disimpegno (7,20 mq.), bagno (8,50 mq.), ripostiglio (5 mq.) e locale scala per sottotetto (4,80 mq.).

Indirizzo
Via Rosina Anselmi, 27, Belpasso (CT)


Codice asta
4348916


Lotto
Lotto unico


Numero beni
1


Genere
Immobili


Categoria
Immobile residenziale


Valore di stima
-


Abitazione di tipo economico

Fabbricato adibito a civile abitazione ad una elevazione fuori terra, indipendente composto da ampio soggiorno-living che si apre sull’ingresso con cucina a vista (50 mq.), altri quattro vani (in tutto, 70,90 mq.), terrazzo (78 mq.) corridoio-disimpegno (7,20 mq.), bagno (8,50 mq.), ripostiglio (5 mq.) e locale scala per sottotetto (4,80 mq.).

Indirizzo
Via Rosina Anselmi, 27, Belpasso (CT)


Piano
-


Disponibilità
OCCUPATO


Vani
3,50


Bagni
-


Metri quadri
85,00


Certificazione energetica
-


Data udienza
17/06/2026 ore 11:30


Tipo di vendita
Senza incanto


Modalità di vendita
Sincrona mista


Luogo
Avv. Malfitano c/o Sala Aste Giudiziarie - Corso delle Province, 203 - Scala E - Catania 95127


Luogo presentazione offerte
-


Termine presentazione offerte
16/06/2026 ore 13:00


Prezzo base
€ 15.000,00


Offerta minima
€ 11.250,00


Rialzo minimo in caso di gara
€ 250,00


Deposito cauzionale
10% del prezzo offerto


Deposito in conto spese
-


Tribunale
Catania

Tipo di procedura
Esecuzione immobiliare post legge 80

Ruolo
1/2018

Giudice
Mangiameli Nelly gaia

Recapiti
-

Email
-

Delegato alla vendita
Malfitano Luca
(Procede alle operazioni di vendita)
(Gestisce la visita del bene)

Recapiti
-

Scheda COD. 4348916 - Pubblicata dal 09/04/2026

La presente scheda di vendita riporta integralmente informazioni e documenti pervenuti ufficialmente dal Ministero e dal professionista incaricato.

Pubblicazione notarizzata su Blockchain


Pubblicazione autorizzata dall’Autorità competente, è vietata ogni ripubblicazione o riproduzione anche parziale


Ti interessa questa vendita?

Documentazione

Visualizza su mappa

Mappa geografica del bene

Punti di interesse

Fonte dati

Nel raggio di {{range}}Km

Loading...
  • {{ getIcon(poi.type) }} {{ poi.localized }}: {{poi.count}}
  • {{ getIcon(poi.type) }} {{ poi.localized }}: {{poi.count}}
Dati non disponibili