Astegiudiziarie.it è parte di Rete Aste Network

Accedi o registrati

Non sei ancora registrato?

Oppure

Accedi

Abitazione di tipo civile

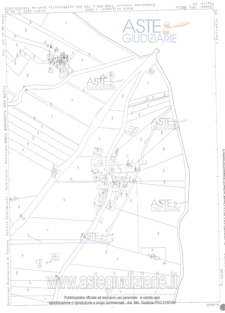
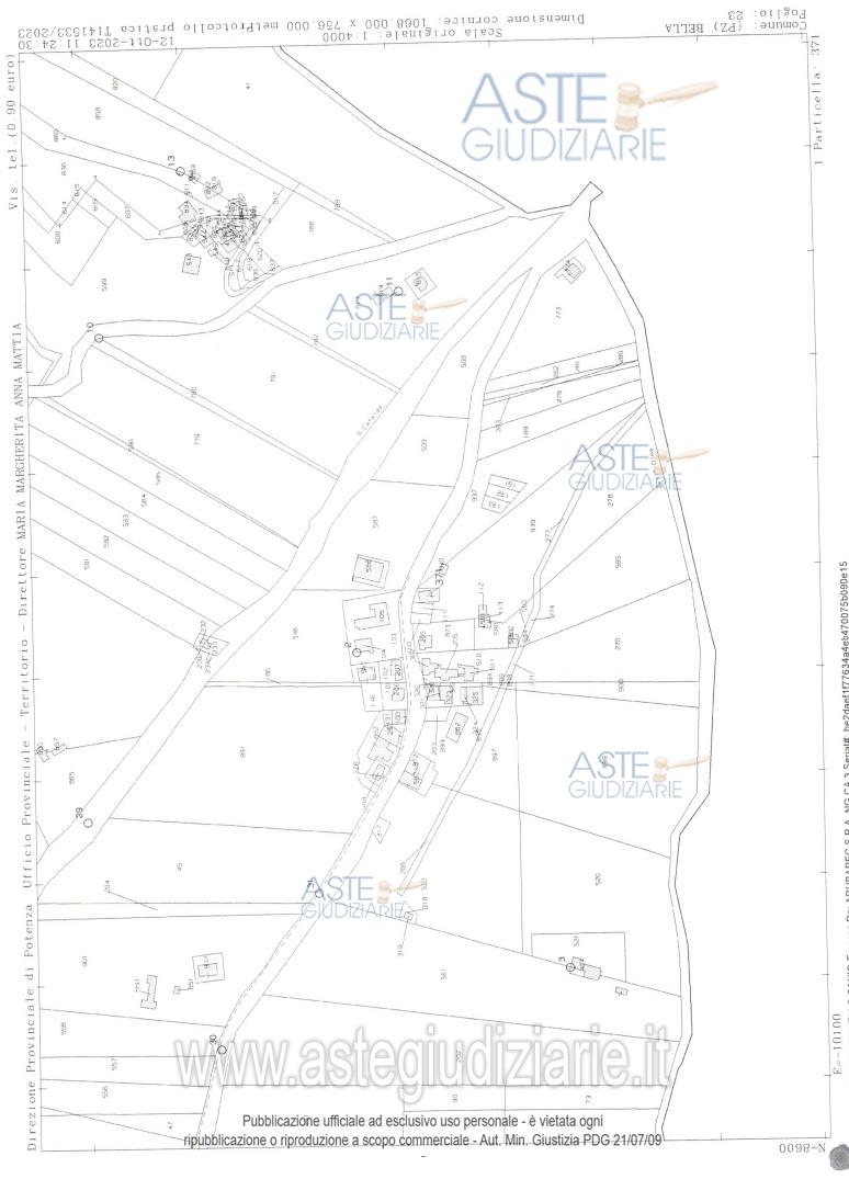
Località Sant'Antonio Casalini , Bella (PZ)

€ 119.019,37

Offerta minima € 89.264,53


Codice A4332227

Lotto 2

Data udienza 14/01/2026 ore 15:00

Termine presentazione offerte 13/01/2026 ore 15:00

Abitazione di tipo civile

Località Sant'Antonio Casalini , Bella (PZ)

€ 119.019,37

Offerta minima € 89.264,53


Codice A4332227

Lotto 2

Data udienza 14/01/2026 ore 15:00

Termine presentazione offerte 13/01/2026 ore 15:00

Vendita deserta

Ti interessa questa vendita?

Documentazione

Visualizza su mappa

Mappa geografica del bene

Punti di interesse

Fonte dati

Nel raggio di {{range}}Km

Loading...
  • {{ getIcon(poi.type) }} {{ poi.localized }}: {{poi.count}}
  • {{ getIcon(poi.type) }} {{ poi.localized }}: {{poi.count}}
Dati non disponibili

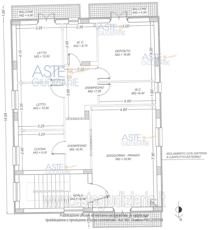
Piena proprietà 1/1 di locale in corso di costruzione e abitazione

Indirizzo
Località Sant'Antonio Casalini , Bella (PZ)


Codice asta
4332227


Lotto
2


Numero beni
1


Genere
Immobili


Categoria
Immobile residenziale


Valore di stima
-


Abitazione di tipo civile

Piena proprietà 1/1 di locale in corso di costruzione e abitazione

Indirizzo
Località Sant'Antonio Casalini, Bella (PZ)


Piano
-


Disponibilità
OCCUP


Vani
5,00


Bagni
-


Metri quadri
130,00


Certificazione energetica
-


Dati catastali

Foglio:23, Sezione:F, Particella:371, Subalterno:6 (ex sub. 2)
Foglio:23, Sezione:F, Particella:371, Subalterno:7 (ex sub. 3)


Data udienza
14/01/2026 ore 15:00


Tipo di vendita
Senza incanto


Modalità di vendita
Asincrona telematica


Luogo
N.A. -


Luogo presentazione offerte
-


Termine presentazione offerte
13/01/2026 ore 15:00


Prezzo base
€ 119.019,37


Offerta minima
€ 89.264,53


Rialzo minimo in caso di gara
-


Deposito cauzionale
-


Deposito in conto spese
-


Tribunale
Potenza

Tipo di procedura
Esecuzione immobiliare post legge 80

Ruolo
136/2004

Delegato alla vendita
Pandolfo Carmela
(Procede alle operazioni di vendita)
(Gestisce la visita del bene)

Recapiti
Cell. 3482944668
Tel. 0971993450

Email

Scheda COD. 4332227 - Pubblicata dal 30/10/2025

La presente scheda di vendita riporta integralmente informazioni e documenti pervenuti ufficialmente dal Ministero e dal professionista incaricato.

Pubblicazione notarizzata su Blockchain


Pubblicazione autorizzata dall’Autorità competente, è vietata ogni ripubblicazione o riproduzione anche parziale


Ti interessa questa vendita?

Documentazione

Visualizza su mappa

Mappa geografica del bene

Storico delle vendite

Data venditaPrezzo base
02/10/2025€ 158.692,50
14/01/2026€ 119.019,37

Punti di interesse

Fonte dati

Nel raggio di {{range}}Km

Loading...
  • {{ getIcon(poi.type) }} {{ poi.localized }}: {{poi.count}}
  • {{ getIcon(poi.type) }} {{ poi.localized }}: {{poi.count}}
Dati non disponibili