Astegiudiziarie.it è parte di Rete Aste Network

Accedi o registrati

Non sei ancora registrato?

Oppure

Accedi

Appartamento

Via Gaetano Bianchi, 5, 28832 Belgirate VB, Italia, Belgirate (VB)

€ 20.000,00

Offerta minima € 15.000,00


Codice A4338527

Lotto 5

Data udienza 19/12/2025 ore 10:00

Termine presentazione offerte 18/12/2025 ore 12:00

Appartamento

Via Gaetano Bianchi, 5, 28832 Belgirate VB, Italia, Belgirate (VB)

€ 20.000,00

Offerta minima € 15.000,00


Codice A4338527

Lotto 5

Data udienza 19/12/2025 ore 10:00

Termine presentazione offerte 18/12/2025 ore 12:00

Ti interessa questa vendita?

Documentazione

Visualizza su mappa

Mappa geografica del bene

Punti di interesse

Fonte dati

Nel raggio di {{range}}Km

Loading...
  • {{ getIcon(poi.type) }} {{ poi.localized }}: {{poi.count}}
  • {{ getIcon(poi.type) }} {{ poi.localized }}: {{poi.count}}
Dati non disponibili

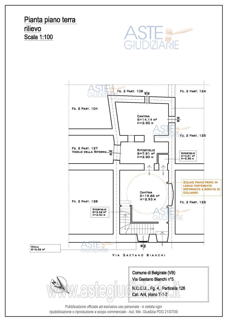
Appartamento compreso in un aggregato di edifici del centro storico disposto su tre livelli. Il pian terreno comprende tre vani cantina consecutivi destinati a cantina. Al piano primo, raggiungibile tramite una scala interna, sono presenti una camera comunicante con un loggiato aperto dal quale si accede alla cucina e alla scala che conduce al secondo piano. Qui è presente unicamente una camera da letto

Indirizzo
Via Gaetano Bianchi, 5, 28832 Belgirate VB, Italia, Belgirate (VB)


Codice asta
4338527


Lotto
5


Numero beni
1


Genere
Immobili


Categoria
Immobile residenziale


Valore di stima
-


Appartamento

Appartamento compreso in un aggregato di edifici del centro storico disposto su tre livelli. Il pian terreno comprende tre vani cantina consecutivi destinati a cantina. Al piano primo, raggiungibile tramite una scala interna, sono presenti una camera comunicante con un loggiato aperto dal quale si accede alla cucina e alla scala che conduce al secondo piano. Qui è presente unicamente una camera da letto

Indirizzo
Via Gaetano Bianchi, 5, 28832 Belgirate VB, Italia, Belgirate (VB)


Piano
-


Disponibilità
-


Vani
5,00


Bagni
-


Metri quadri
100,00


Certificazione energetica
-


Data udienza
19/12/2025 ore 10:00


Tipo di vendita
Senza incanto


Modalità di vendita
Asincrona telematica


Luogo
N.A. -


Luogo presentazione offerte
-


Termine presentazione offerte
18/12/2025 ore 12:00


Prezzo base
€ 20.000,00


Offerta minima
€ 15.000,00


Rialzo minimo in caso di gara
€ 2.000,00


Deposito cauzionale
2.000


Deposito in conto spese
-


Tribunale
Verbania

Tipo di procedura
Contenzioso civile

Ruolo
200/2024

Giudice
Sinico Caterina
(Procede alle operazioni di vendita)

Recapiti
-

Email
-

Custode giudiziario
Aste giudiziarie inlinea spa 
(Gestisce la visita del bene)

Recapiti
-

Scheda COD. 4338527 - Pubblicata dal 29/10/2025

La presente scheda di vendita riporta integralmente informazioni e documenti pervenuti ufficialmente dal Ministero e dal professionista incaricato.

Pubblicazione notarizzata su Blockchain


Pubblicazione autorizzata dall’Autorità competente, è vietata ogni ripubblicazione o riproduzione anche parziale


Ti interessa questa vendita?

Documentazione

Visualizza su mappa

Mappa geografica del bene

Punti di interesse

Fonte dati

Nel raggio di {{range}}Km

Loading...
  • {{ getIcon(poi.type) }} {{ poi.localized }}: {{poi.count}}
  • {{ getIcon(poi.type) }} {{ poi.localized }}: {{poi.count}}
Dati non disponibili