Astegiudiziarie.it è parte di Rete Aste Network

Accedi o registrati

Non sei ancora registrato?

Oppure

Accedi

Abitazione di tipo civile

Via G. Verdi, 40, 10092 Beinasco TO, Italia, Beinasco (TO)

€ 104.700,00

Offerta minima € 78.525,00


Codice A4340143

Lotto Lotto unico

Data udienza 27/01/2026 ore 15:30

Termine presentazione offerte 26/01/2026 ore 13:00

Abitazione di tipo civile

Via G. Verdi, 40, 10092 Beinasco TO, Italia, Beinasco (TO)

€ 104.700,00

Offerta minima € 78.525,00


Codice A4340143

Lotto Lotto unico

Data udienza 27/01/2026 ore 15:30

Termine presentazione offerte 26/01/2026 ore 13:00

Ti interessa questa vendita?

Documentazione

Visualizza su mappa

Mappa geografica del bene

Punti di interesse

Fonte dati

Nel raggio di {{range}}Km

Loading...
  • {{ getIcon(poi.type) }} {{ poi.localized }}: {{poi.count}}
  • {{ getIcon(poi.type) }} {{ poi.localized }}: {{poi.count}}
Dati non disponibili

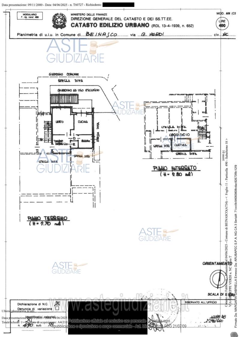
Lotto unico in Comune di Beinasco (TO), Via Giuseppe Verdi n. 40:appartamento posto al piano terra (1° F.T.), con accesso dalla scala seconda all'ingresso principale esterno da via, così articolato: ingresso, cucina abitabile, camera, servizio igienico, sgabuzzino, giardino ad uso esclusivo (non di proprietà), cantina pertinenziale al piano interrato (S1).Superficie commerciale: unità principale 51 mq, accessori 5,95 mq.

Indirizzo
Via G. Verdi, 40, 10092 Beinasco TO, Italia, Beinasco (TO)


Codice asta
4340143


Lotto
Lotto unico


Numero beni
1


Genere
Immobili


Categoria
Immobile residenziale


Valore di stima
-


Abitazione di tipo civile

Lotto unico in Comune di Beinasco (TO), Via Giuseppe Verdi n. 40:appartamento posto al piano terra (1° F.T.), con accesso dalla scala seconda all'ingresso principale esterno da via, così articolato: ingresso, cucina abitabile, camera, servizio igienico, sgabuzzino, giardino ad uso esclusivo (non di proprietà), cantina pertinenziale al piano interrato (S1).Superficie commerciale: unità principale 51 mq, accessori 5,95 mq.

Indirizzo
Via G. Verdi, 40, 10092 Beinasco TO, Italia, Beinasco (TO)


Piano
-


Disponibilità
-


Vani
-


Bagni
-


Metri quadri
-


Certificazione energetica
-


Dati catastali

Foglio:11, Particella:490, Subalterno:18


Data udienza
27/01/2026 ore 15:30


Tipo di vendita
Senza incanto


Modalità di vendita
Asincrona telematica


Luogo
N.A. -


Luogo presentazione offerte
-


Termine presentazione offerte
26/01/2026 ore 13:00


Prezzo base
€ 104.700,00


Offerta minima
€ 78.525,00


Rialzo minimo in caso di gara
€ 2.000,00


Deposito cauzionale
10% del prezzo offerto


Deposito in conto spese
-


Tribunale
Torino

Tipo di procedura
Espropriazione immobiliare (cartabia)

Ruolo
7/2025

Giudice
Demaria Paola

Recapiti
-

Email
-

Delegato alla vendita
Ruggeri Cecilia
(Procede alle operazioni di vendita)

Recapiti
Tel. 0114330187

Email
ceciliaruggeri@studiolegalerug...

Custode giudiziario
Srl Ifir piemonte ivg
(Gestisce la visita del bene)

Recapiti
Tel. 011482822

Scheda COD. 4340143 - Pubblicata dal 24/11/2025

La presente scheda di vendita riporta integralmente informazioni e documenti pervenuti ufficialmente dal Ministero e dal professionista incaricato.


Pubblicazione autorizzata dall’Autorità competente, è vietata ogni ripubblicazione o riproduzione anche parziale


Ti interessa questa vendita?

Documentazione

Visualizza su mappa

Mappa geografica del bene

Punti di interesse

Fonte dati

Nel raggio di {{range}}Km

Loading...
  • {{ getIcon(poi.type) }} {{ poi.localized }}: {{poi.count}}
  • {{ getIcon(poi.type) }} {{ poi.localized }}: {{poi.count}}
Dati non disponibili