Astegiudiziarie.it è parte di Rete Aste Network

Accedi o registrati

Non sei ancora registrato?

Oppure

Accedi

Abitazione di tipo civile, abitazione di tipo economico, stalle, scuderie, rimesse, autorimesse, terreno, compendio pignorato

FORNACI DI BARGA VIA REPUBBLICA 51, Barga (LU)

€ 162.971,00

Offerta minima € 122.228,00


Codice A4281868

Lotto Lotto unico

Data udienza 07/07/2026 ore 10:00

Termine presentazione offerte 06/07/2026 ore 12:00

Abitazione di tipo civile, abitazione di tipo economico, stalle, scuderie, rimesse, autorimesse, terreno, compendio pignorato

FORNACI DI BARGA VIA REPUBBLICA 51, Barga (LU)

€ 162.971,00

Offerta minima € 122.228,00


Codice A4281868

Lotto Lotto unico

Data udienza 07/07/2026 ore 10:00

Termine presentazione offerte 06/07/2026 ore 12:00

Ti interessa questa vendita?

Documentazione

Visualizza su mappa

Mappa geografica del bene

Punti di interesse

Fonte dati

Nel raggio di {{range}}Km

Loading...
  • {{ getIcon(poi.type) }} {{ poi.localized }}: {{poi.count}}
  • {{ getIcon(poi.type) }} {{ poi.localized }}: {{poi.count}}
Dati non disponibili

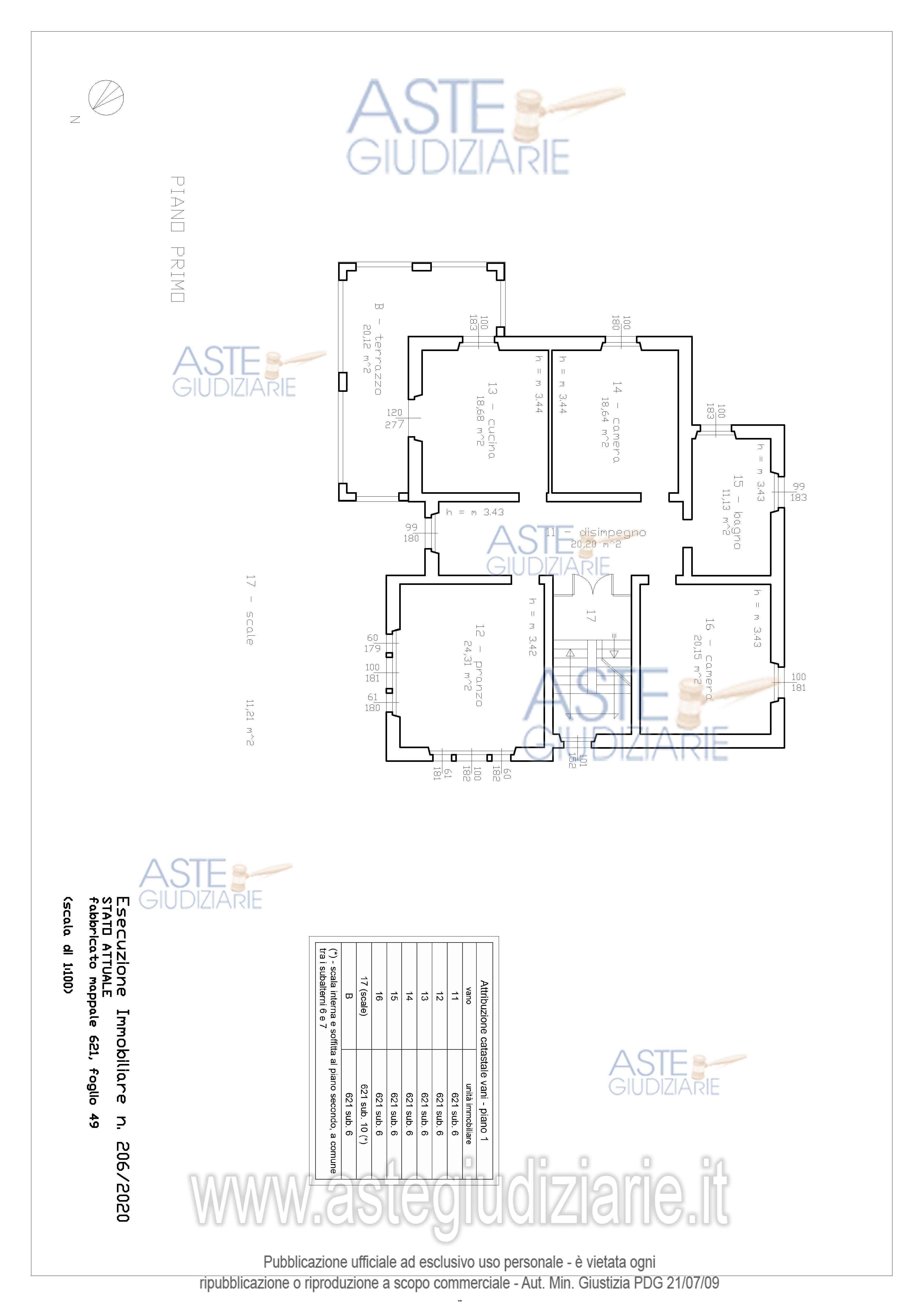
Piena proprietà per l’intero su villa singola sita a BARGA, via Repubblica 51, frazione Fornaci di Barga, della superficie commerciale di 432,19 mq.

Indirizzo
FORNACI DI BARGA VIA REPUBBLICA 51, Barga (LU)


Codice asta
4281868


Lotto
Lotto unico


Numero beni
5


Genere
Immobili


Categoria
Immobile residenziale


Valore di stima
-


Abitazione di tipo civile

Piena proprietà per l’intero su villa singola sita a BARGA, via Repubblica 51, frazione Fornaci di Barga, della superficie commerciale di 432,19 mq.

Indirizzo
FORNACI DI BARGA VIA REPUBBLICA 51, Barga (LU)


Piano
-


Disponibilità
-


Vani
20,00


Bagni
-


Metri quadri
432,19


Certificazione energetica
-


Dati catastali

Foglio:49, Particella:621, Subalterno:4
Foglio:49, Particella:621, Subalterno:6
Foglio:49, Particella:621, Subalterno:5


Abitazione di tipo economico

Piena proprietà per l’intero su villa singola sita a BARGA, via Repubblica 51, frazione Fornaci di Barga, della superficie commerciale di 432,19 mq.

Indirizzo
FORNACI DI BARGA VIA REPUBBLICA 51, Barga (LU)


Piano
-


Disponibilità
-


Vani
20,00


Bagni
-


Metri quadri
432,19


Certificazione energetica
-


Dati catastali

Foglio:49, Particella:621, Subalterno:7


Stalle, scuderie, rimesse, autorimesse

Piena proprietà per l’intero su villa singola sita a BARGA, via Repubblica 51, frazione Fornaci di Barga, della superficie commerciale di 432,19 mq.

Indirizzo
FORNACI DI BARGA VIA REPUBBLICA 51, Barga (LU)


Piano
-


Disponibilità
-


Vani
20,00


Bagni
-


Metri quadri
432,19


Certificazione energetica
-


Dati catastali

Foglio:49, Particella:622, Subalterno:2


Terreno

Piena proprietà per l’intero su villa singola sita a BARGA, via Repubblica 51, frazione Fornaci di Barga, della superficie commerciale di 432,19 mq.

Indirizzo
FORNACI DI BARGA VIA REPUBBLICA 51, Barga (LU)


Piano
-


Disponibilità
-


Vani
-


Bagni
-


Metri quadri
432,19


Certificazione energetica
-


Dati catastali

Foglio:49, Particella:908


Compendio pignorato

Piena proprietà per l’intero su villa singola sita a BARGA, via Repubblica 51, frazione Fornaci di Barga, della superficie commerciale di 432,19 mq.

Indirizzo
FORNACI DI BARGA VIA REPUBBLICA 51, Barga (LU)


Piano
-


Disponibilità
-


Vani
-


Bagni
-


Metri quadri
432,19


Certificazione energetica
-


Dati catastali

Foglio:49, Particella:621, Subalterno:8
Foglio:49, Particella:621, Subalterno:11
Foglio:49, Particella:621, Subalterno:10
Foglio:49, Particella:621, Subalterno:9


Data udienza
07/07/2026 ore 10:00


Tipo di vendita
Senza incanto


Modalità di vendita
Sincrona mista


Luogo
Viale S. Concordio, 996B, 55100 Lucca LU, Italia - Lucca 55100


Luogo presentazione offerte
-


Termine presentazione offerte
06/07/2026 ore 12:00


Prezzo base
€ 162.971,00


Offerta minima
€ 122.228,00


Rialzo minimo in caso di gara
€ 3.000,00


Deposito cauzionale
20% del prezzo offerto


Deposito in conto spese
-


Tribunale
Lucca

Tipo di procedura
Esecuzione immobiliare post legge 80

Ruolo
206/2020

Giudice
Simoni Giulia

Recapiti
-

Email
-

Delegato alla vendita
Menchetti Roberta
(Procede alle operazioni di vendita)

Recapiti
Cell. 3478070297
Tel. 058355960

Email
roberta@studiolegalemenchetti....

IVG
Sofir srl Ivg lucca

Recapiti
-

Email
-

Custode giudiziario
Sofir srl Ivg lucca
(Gestisce la visita del bene)

Recapiti
Tel. 0583418555

Scheda COD. 4281868 - Pubblicata dal 21/04/2026

La presente scheda di vendita riporta integralmente informazioni e documenti pervenuti ufficialmente dal Ministero e dal professionista incaricato.

Pubblicazione notarizzata su Blockchain


Pubblicazione autorizzata dall’Autorità competente, è vietata ogni ripubblicazione o riproduzione anche parziale


Ti interessa questa vendita?

Documentazione

Visualizza su mappa

Mappa geografica del bene

Storico delle vendite

Data venditaPrezzo base
14/11/2023€ 386.300,00
26/03/2024€ 289.725,00
17/12/2024€ 289.725,00
08/04/2025€ 217.294,00
07/07/2026€ 162.971,00

Punti di interesse

Fonte dati

Nel raggio di {{range}}Km

Loading...
  • {{ getIcon(poi.type) }} {{ poi.localized }}: {{poi.count}}
  • {{ getIcon(poi.type) }} {{ poi.localized }}: {{poi.count}}
Dati non disponibili