Astegiudiziarie.it è parte di Rete Aste Network

Accedi o registrati

Non sei ancora registrato?

Oppure

Accedi

Abitazione di tipo civile

Via Cagliari, 50, Ballao (SU)

€ 30.080,00

Offerta minima € 22.560,00


Codice A255839

Lotto Lotto unico

Data udienza 24/02/2026 ore 11:00

Termine presentazione offerte 23/02/2026 ore 13:00

Abitazione di tipo civile

Via Cagliari, 50, Ballao (SU)

€ 30.080,00

Offerta minima € 22.560,00


Codice A255839

Lotto Lotto unico

Data udienza 24/02/2026 ore 11:00

Termine presentazione offerte 23/02/2026 ore 13:00

Ti interessa questa vendita?

Documentazione

Visualizza su mappa

Mappa geografica del bene

Punti di interesse

Fonte dati

Nel raggio di {{range}}Km

Loading...
  • {{ getIcon(poi.type) }} {{ poi.localized }}: {{poi.count}}
  • {{ getIcon(poi.type) }} {{ poi.localized }}: {{poi.count}}
Dati non disponibili

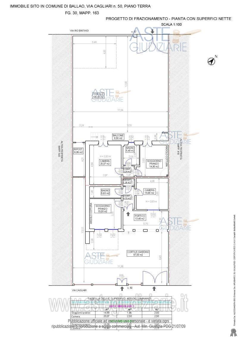
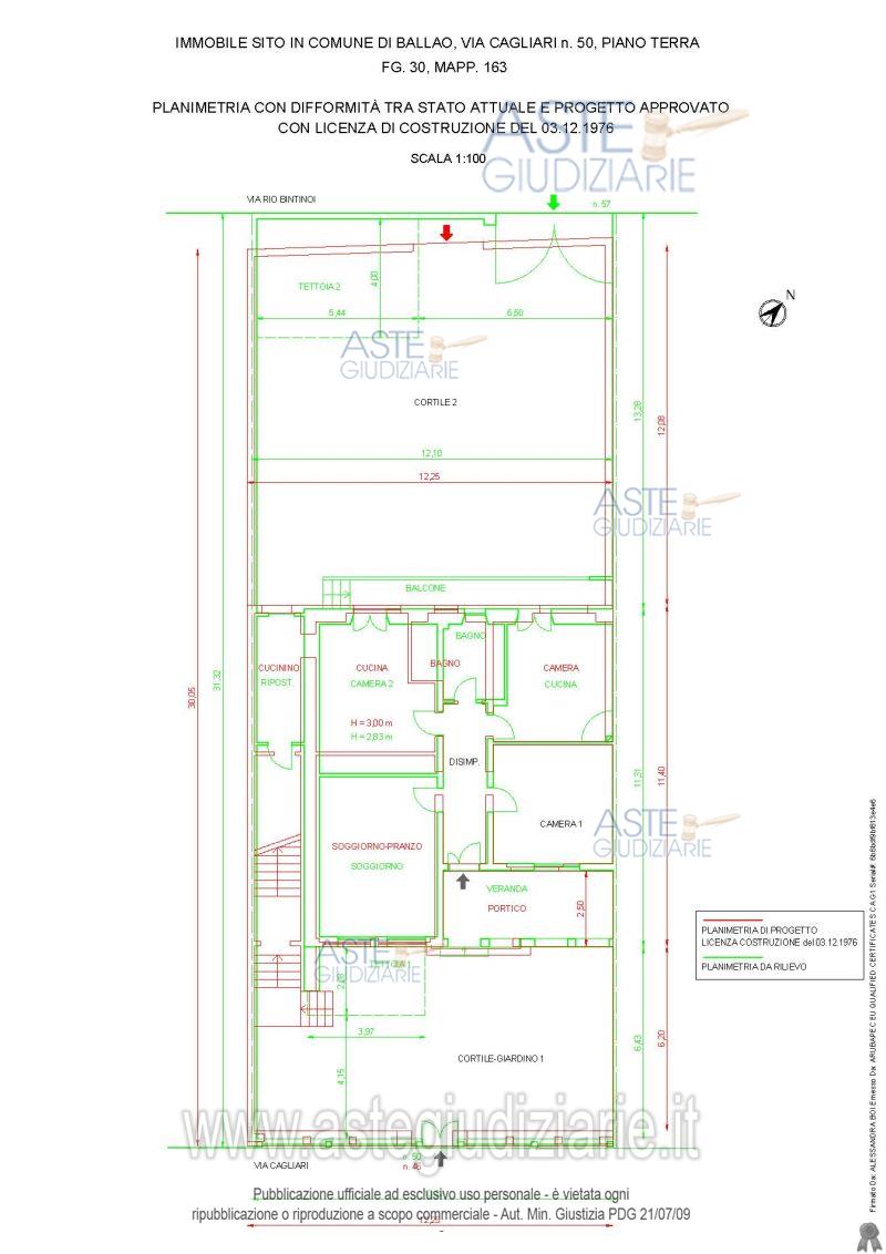
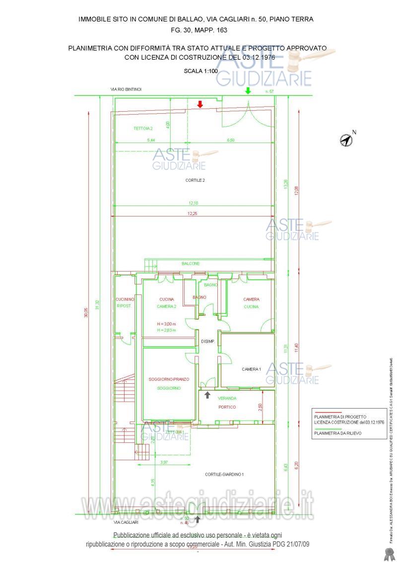
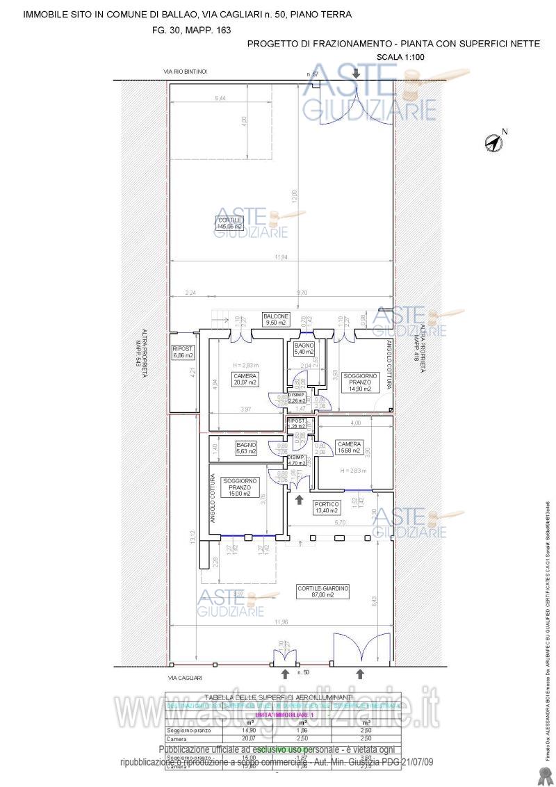
Quota pari all’intero del diritto di proprietà del fabbricato abitativo al piano terra con accesso pedonale dalla Via Cagliari 50 e carrabile dalla Via Rio Bintinoi n.57, composto da due bilocali, di cui uno composto da soggiorno-pranzo con angolo cottura, camera, disimpegno, bagno, oltre ripostiglio con accesso solo dal cortile, un balcone e il cortile ; l’altro composto da soggiorno pranzo con angolo cottura, camera, ripostiglio, disimpegno, bagno, oltre portico e cortile , oltre portico e il cortile.

Indirizzo
Via Cagliari, 50, Ballao (SU)


Codice asta
255839


Lotto
Lotto unico


Numero beni
1


Genere
Immobili


Categoria
Immobile residenziale


Valore di stima
-


Abitazione di tipo civile

Quota pari all’intero del diritto di proprietà del fabbricato abitativo al piano terra con accesso pedonale dalla Via Cagliari 50 e carrabile dalla Via Rio Bintinoi n.57, composto da due bilocali, di cui uno composto da soggiorno-pranzo con angolo cottura, camera, disimpegno, bagno, oltreripostiglio di superficie lorda pari a 7,70 mq con accesso solo dal cortile, un balcone di superficie lorda pari a 10,60 mq e il cortile con superficie lorda pari a 151,90 mq; l’altro composto da soggiorno pranzo con angolo cottura, camera, ripostiglio, disimpegno, bagno, oltre portico e cortile della superficie lorda di mq.94,06, oltre portico di superficie lorda pari a 14,96 m2 e il cortile con superficie lorda pari a 94,06 mq.

Indirizzo
Via Cagliari, 50, Ballao (SU)


Piano
-


Disponibilità
-


Vani
5,00


Bagni
-


Metri quadri
123,00


Certificazione energetica
-


Data udienza
24/02/2026 ore 11:00


Tipo di vendita
Senza incanto


Modalità di vendita
Asincrona telematica


Luogo
N.A. -


Luogo presentazione offerte
-


Termine presentazione offerte
23/02/2026 ore 13:00


Prezzo base
€ 30.080,00


Offerta minima
€ 22.560,00


Rialzo minimo in caso di gara
€ 2.000,00


Deposito cauzionale
5.000,00


Deposito in conto spese
-


Tribunale
Cagliari

Tipo di procedura
Esecuzione immobiliare post legge 80

Ruolo
79/2011

Giudice
De giorgi Francesco

Recapiti
-

Email
-

Delegato alla vendita
Casti Stefano
(Procede alle operazioni di vendita)

Recapiti
Tel. 07060222574

Email
ufficiouniconotai@pec.it

Custode giudiziario
Ivg cagliari 
(Gestisce la visita del bene)

Recapiti
Tel. 0702299036

Scheda COD. 255839 - Pubblicata dal 31/12/2025

La presente scheda di vendita riporta integralmente informazioni e documenti pervenuti ufficialmente dal Ministero e dal professionista incaricato.


Pubblicazione autorizzata dall’Autorità competente, è vietata ogni ripubblicazione o riproduzione anche parziale


Ti interessa questa vendita?

Documentazione

Visualizza su mappa

Mappa geografica del bene

Storico delle vendite

Data venditaPrezzo base
30/04/2014€ 132.000,00
28/05/2014€ 119.000,00
22/10/2014€ 99.000,00
19/11/2014€ 89.500,00
04/02/2015€ 79.500,00
04/03/2015€ 72.000,00
20/05/2015€ 65.000,00
15/07/2015€ 62.000,00
11/11/2015€ 62.000,00
03/02/2016€ 62.000,00
27/04/2016€ 58.900,00
22/06/2016€ 56.000,00
19/10/2016€ 53.200,00
08/02/2017€ 50.600,00
21/04/2017€ 48.100,00
18/02/2022€ 48.100,00
24/06/2022€ 38.500,00
27/05/2025€ 47.000,00
25/11/2025€ 37.600,00
24/02/2026€ 30.080,00

Punti di interesse

Fonte dati

Nel raggio di {{range}}Km

Loading...
  • {{ getIcon(poi.type) }} {{ poi.localized }}: {{poi.count}}
  • {{ getIcon(poi.type) }} {{ poi.localized }}: {{poi.count}}
Dati non disponibili