Astegiudiziarie.it è parte di Rete Aste Network

Accedi o registrati

Non sei ancora registrato?

Oppure

Accedi

Abitazione di tipo civile

via Torino n. 53/B e n. 53/C, Balangero (TO)

€ 30.000,00

Offerta minima € 22.500,00


Codice A4341566

Lotto 1

Data udienza 17/02/2026 ore 15:00

Termine presentazione offerte 16/02/2026 ore 12:00

Abitazione di tipo civile

via Torino n. 53/B e n. 53/C, Balangero (TO)

€ 30.000,00

Offerta minima € 22.500,00


Codice A4341566

Lotto 1

Data udienza 17/02/2026 ore 15:00

Termine presentazione offerte 16/02/2026 ore 12:00

Ti interessa questa vendita?

Documentazione

Visualizza su mappa

Mappa geografica del bene

Punti di interesse

Fonte dati

Nel raggio di {{range}}Km

Loading...
  • {{ getIcon(poi.type) }} {{ poi.localized }}: {{poi.count}}
  • {{ getIcon(poi.type) }} {{ poi.localized }}: {{poi.count}}
Dati non disponibili

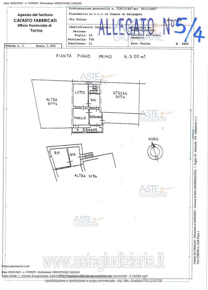
LOTTO PRIMO: DIRITTO DI 1/2 (UN MEZZO) DELLA PIENA PROPRIETA', in Comune di Balangero (TO), via Torino n. 53/B e n. 53/C: 1) alloggio piano T, composto da monolocale con servizio wc; 2) autorimessa piano T; 3) alloggio piano 1, composto da: camera, cucina, bagno e antibagno, balcone con piccolo ripostiglio; 4) alloggio piano 1, composto da: tinello con cucinino, camera, bagno, disimpegno, veranda con affaccio su balcone, un disimpegno e un ripostiglio distaccati e ricompresi nel fabbricato dirimpettaio.

Indirizzo
via Torino n. 53/B e n. 53/C, Balangero (TO)


Codice asta
4341566


Lotto
1


Numero beni
1


Genere
Immobili


Categoria
Immobile residenziale


Valore di stima
-


Abitazione di tipo civile

LOTTO PRIMO: DIRITTO DI 1/2 (UN MEZZO) DELLA PIENA PROPRIETA', in Comune di Balangero (TO), via Torino n. 53/B e n. 53/C: 1) alloggio piano terreno, composto da monolocale con servizio wc;2) autorimessa piano terreno;3) alloggio piano primo, composto da: camera, cucina, bagno e antibagno, balcone con piccolo ripostiglio;4) alloggio piano primo, composto da: tinello con cucinino, camera, bagno, disimpegno, veranda con affaccio su balcone, un disimpegno e un ripostiglio distaccati e ricompresi nel fabbricato dirimpettaio.

Indirizzo
via Torino n. 53/B e n. 53/C, Balangero (TO)


Piano
-


Disponibilità
-


Vani
-


Bagni
-


Metri quadri
-


Certificazione energetica
-


Dati catastali

Foglio:10, Particella:740, Subalterno:4
Foglio:10, Particella:740, Subalterno:5
Foglio:10, Particella:740, Subalterno:6
Foglio:10, Particella:738, Subalterno:11


Data udienza
17/02/2026 ore 15:00


Tipo di vendita
Competitiva


Modalità di vendita
Asincrona telematica


Luogo
-


Luogo presentazione offerte
-


Termine presentazione offerte
16/02/2026 ore 12:00


Prezzo base
€ 30.000,00


Offerta minima
€ 22.500,00


Rialzo minimo in caso di gara
€ 2.000,00


Deposito cauzionale
10% del prezzo offerto


Deposito in conto spese
-


Tribunale
Ivrea

Tipo di procedura
Liquidazione giudiziale(cci)

Ruolo
43/2024

Giudice
Mussa Antonia

Recapiti
-

Email
-

Curatore
Miglia Alberto
(Procede alle operazioni di vendita)
(Gestisce la visita del bene)

Recapiti
Tel. 0115091524

Scheda COD. 4341566 - Pubblicata dal 29/12/2025

La presente scheda di vendita riporta integralmente informazioni e documenti pervenuti ufficialmente dal Ministero e dal professionista incaricato.


Pubblicazione autorizzata dall’Autorità competente, è vietata ogni ripubblicazione o riproduzione anche parziale


Ti interessa questa vendita?

Documentazione

Visualizza su mappa

Mappa geografica del bene

Punti di interesse

Fonte dati

Nel raggio di {{range}}Km

Loading...
  • {{ getIcon(poi.type) }} {{ poi.localized }}: {{poi.count}}
  • {{ getIcon(poi.type) }} {{ poi.localized }}: {{poi.count}}
Dati non disponibili