Astegiudiziarie.it è parte di Rete Aste Network

Accedi o registrati

Non sei ancora registrato?

Oppure

Accedi

Appartamento

Via Giuseppe Garibaldi 75, Bagnacavallo (RA)

€ 81.562,50

Offerta minima € 61.171,87


Codice A4331198

Lotto Lotto unico

Data udienza 17/03/2026 ore 11:00

Termine presentazione offerte 16/03/2026 ore 23:59

Appartamento

Via Giuseppe Garibaldi 75, Bagnacavallo (RA)

€ 81.562,50

Offerta minima € 61.171,87


Codice A4331198

Lotto Lotto unico

Data udienza 17/03/2026 ore 11:00

Termine presentazione offerte 16/03/2026 ore 23:59

Ti interessa questa vendita?

Documentazione

Visualizza su mappa

Mappa geografica del bene

Punti di interesse

Fonte dati

Nel raggio di {{range}}Km

Loading...
  • {{ getIcon(poi.type) }} {{ poi.localized }}: {{poi.count}}
  • {{ getIcon(poi.type) }} {{ poi.localized }}: {{poi.count}}
Dati non disponibili

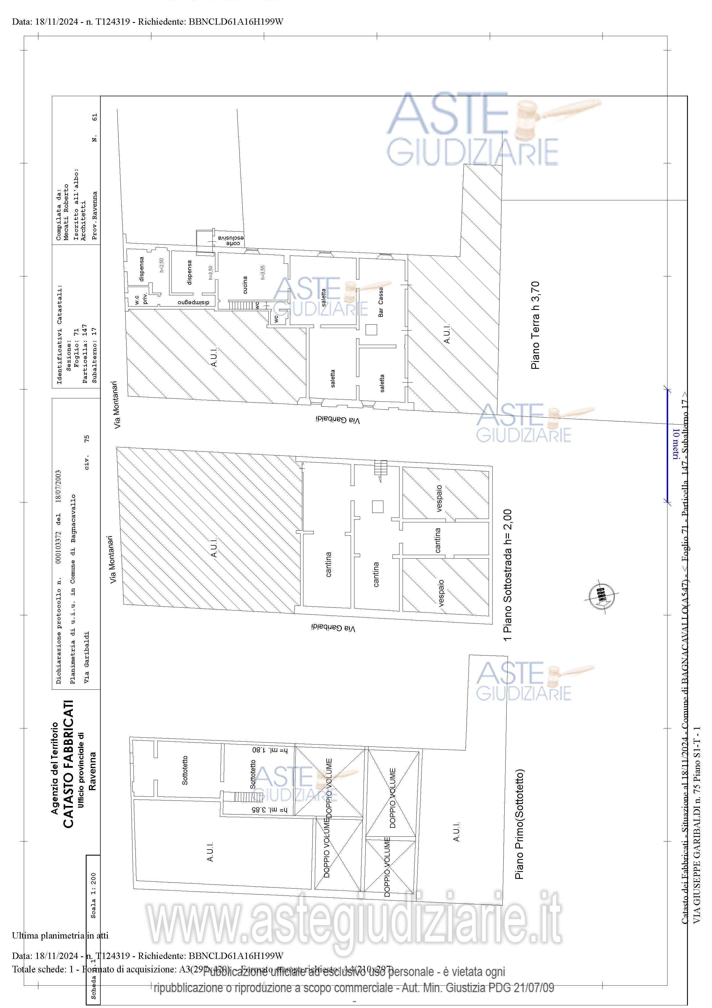
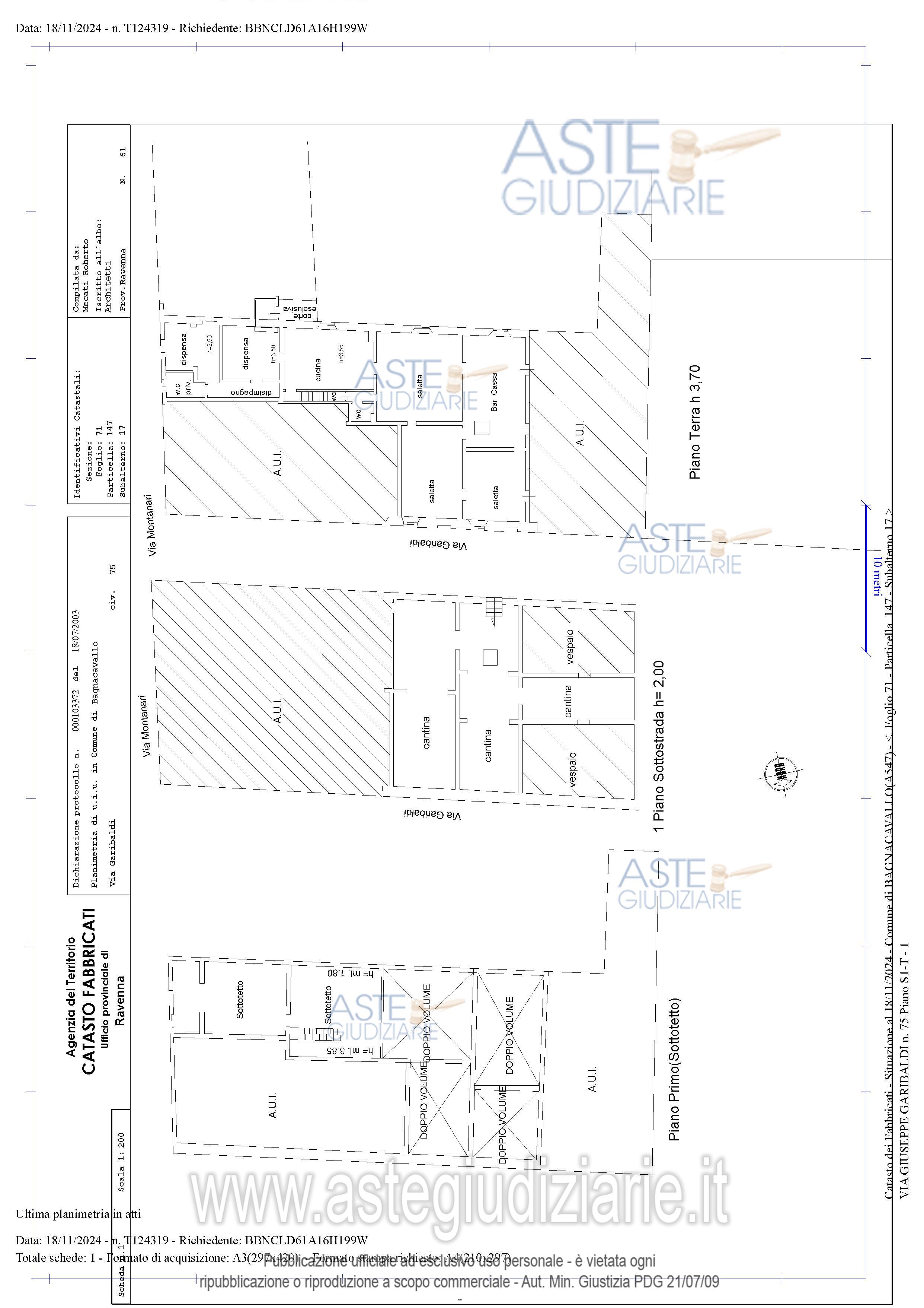
Due unità immobiliari a destinazione residenziale e commerciale oltre ad area cortilizia facenti parte di più ampio fabbricato di remota costruzione, denominato Palazzo Tesorieri.

Indirizzo
Via Giuseppe Garibaldi 75, Bagnacavallo (RA)


Codice asta
4331198


Lotto
Lotto unico


Numero beni
1


Genere
Immobili


Categoria
Immobile residenziale


Valore di stima
-


Appartamento

Due unità immobiliari a destinazione residenziale e commerciale oltre ad area cortilizia facenti parte di più ampio fabbricato di remota costruzione, denominato Palazzo Tesorieri. L’unità immobiliare identificata come attività D/8 si compone da 7 locali in planimetria catastale identificati come Bar Cassa, Saletta (n. 3), cucina, dispensa (n. 2 ) e 2 bagni. Da una scala interna si accede ad un piano sottotetto con tetto in legno a vista. L’unita immobiliare identificata come abitazione A/2, si compone in planimetria da ambienti identificati come letto, ingresso, pranzo ma non utilizzati come tali.

Indirizzo
Via Giuseppe Garibaldi 75, Bagnacavallo (RA)


Piano
-


Disponibilità
LIBERO


Vani
-


Bagni
-


Metri quadri
-


Certificazione energetica
-


Data udienza
17/03/2026 ore 11:00


Tipo di vendita
Senza incanto


Modalità di vendita
Asincrona telematica


Luogo
N.A. -


Luogo presentazione offerte
-


Termine presentazione offerte
16/03/2026 ore 23:59


Prezzo base
€ 81.562,50


Offerta minima
€ 61.171,87


Rialzo minimo in caso di gara
€ 4.000,00


Deposito cauzionale
10% del prezzo offerto


Deposito in conto spese
-


Tribunale
Ravenna

Tipo di procedura
Esecuzione immobiliare post legge 80

Ruolo
105/2024

Giudice
Gilotta Paolo

Recapiti
-

Email
-

Delegato alla vendita
Montanari Antonella
(Procede alle operazioni di vendita)

Recapiti
-

Email
amontanari@paviraniassociati.i...

Custode giudiziario
Montanari Antonella
(Gestisce la visita del bene)

Recapiti
Tel. 0544270020

Scheda COD. 4331198 - Pubblicata dal 28/01/2026

La presente scheda di vendita riporta integralmente informazioni e documenti pervenuti ufficialmente dal Ministero e dal professionista incaricato.

Pubblicazione notarizzata su Blockchain


Pubblicazione autorizzata dall’Autorità competente, è vietata ogni ripubblicazione o riproduzione anche parziale


Ti interessa questa vendita?

Documentazione

Visualizza su mappa

Mappa geografica del bene

Storico delle vendite

Data venditaPrezzo base
09/09/2025€ 145.000,00
25/11/2025€ 108.750,00
17/03/2026€ 81.562,50

Punti di interesse

Fonte dati

Nel raggio di {{range}}Km

Loading...
  • {{ getIcon(poi.type) }} {{ poi.localized }}: {{poi.count}}
  • {{ getIcon(poi.type) }} {{ poi.localized }}: {{poi.count}}
Dati non disponibili