Astegiudiziarie.it è parte di Rete Aste Network

Accedi o registrati

Non sei ancora registrato?

Oppure

Accedi

Abitazione di tipo economico

Contrada Pietre Rosse, Via Paolo Borsellino n.13, Scala A,, Augusta (SR)

€ 102.300,00

Offerta minima € 76.725,00


Codice A4349632

Lotto Lotto unico

Data udienza 11/06/2026 ore 11:00

Termine presentazione offerte 10/06/2026 ore 12:00

Abitazione di tipo economico

Contrada Pietre Rosse, Via Paolo Borsellino n.13, Scala A,, Augusta (SR)

€ 102.300,00

Offerta minima € 76.725,00


Codice A4349632

Lotto Lotto unico

Data udienza 11/06/2026 ore 11:00

Termine presentazione offerte 10/06/2026 ore 12:00

Ti interessa questa vendita?

Documentazione

Visualizza su mappa

Mappa geografica del bene

Punti di interesse

Fonte dati

Nel raggio di {{range}}Km

Loading...
  • {{ getIcon(poi.type) }} {{ poi.localized }}: {{poi.count}}
  • {{ getIcon(poi.type) }} {{ poi.localized }}: {{poi.count}}
Dati non disponibili

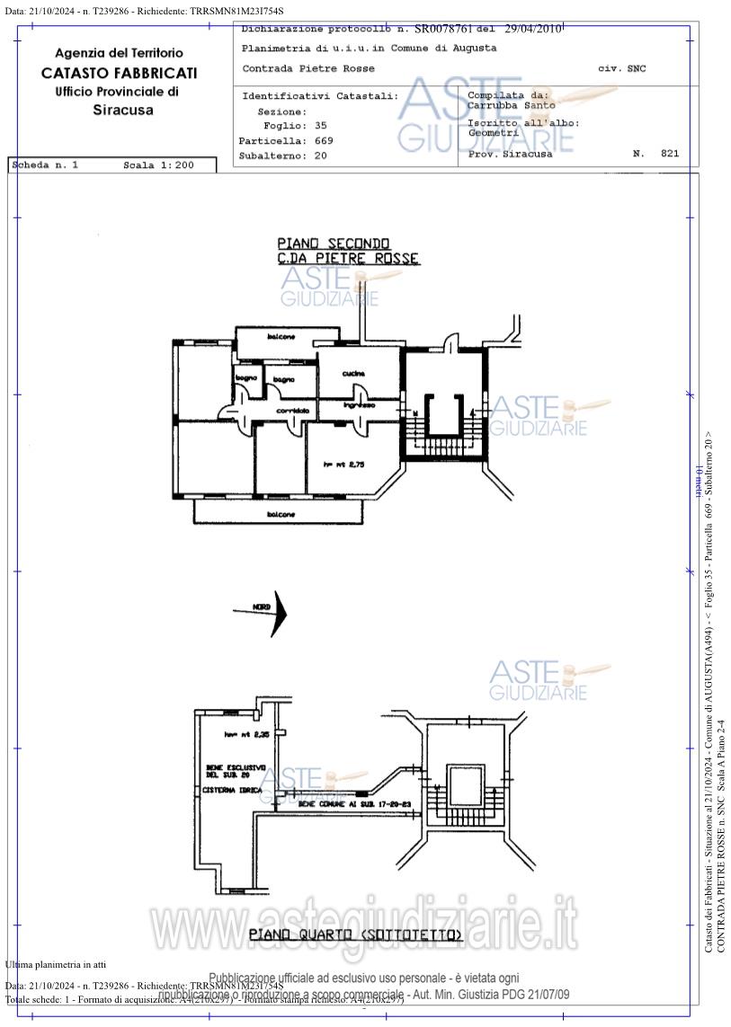
Piena proprietà di un appartamento per civile abitazione, facente parte di un edifico condominiale, sito in Augusta (SR) , Contrada Pietre Rosse, Via Paolo Borsellino n.13, Scala A, posto al piano secondo, di un Box garage posto al piano terra e di un locale cisterna di esclusiva pertinenza, posto al piano quarto dell’edificio.

Indirizzo
Contrada Pietre Rosse, Via Paolo Borsellino n.13, Scala A,, Augusta (SR)


Codice asta
4349632


Lotto
Lotto unico


Numero beni
1


Genere
Immobili


Categoria
Immobile residenziale


Valore di stima
-


Abitazione di tipo economico

Appartamento per civile abitazione, facente parte di un edifico condominiale, sito in Augusta (SR), Contrada Pietre Rosse, Via Paolo Borsellino n.13, Scala A, posto al piano secondo, indentificato presso il N.C.E.U al foglio 35, particella 669, subalterno 20, Zona Censuaria 1, Categoria A3, Classe 3, Consistenza 7 vani, rendita Euro 469,98, Box garage sito in Augusta (SR) in Contrada Pietre Rosse, Via Paolo Borsellino n.13, Scala A, piano terra in N.C.E.U al foglio 35, particella 669, subalterno 14, Zona Censuaria 1, Categoria C6, Classe 1, Consistenza 21 mq, Rendita Euro 87,85. e locale cisterna di esclusiva pertinenza, posto al piano quarto dell’edificio di superficie totale di circa 34,00 mq.

Indirizzo
Contrada Pietre Rosse, Via Paolo Borsellino n.13, Scala A,, Augusta (SR)


Piano
quarto


Disponibilità
OCCUPATO


Vani
-


Bagni
-


Metri quadri
21,00


Certificazione energetica
-


Dati catastali

Foglio:35, Sezione:URBANA, Particella:669, Sub particella:20
Foglio:35, Sezione:Urbana, Particella:669, Sub particella:14


Data udienza
11/06/2026 ore 11:00


Tipo di vendita
Senza incanto


Modalità di vendita
Sincrona mista


Luogo
V.le Santa Panagia, 96100 Siracusa SR, Italia presso Tribunale di Siracusa sala aste n 27 - Siracusa 96100


Luogo presentazione offerte
-


Termine presentazione offerte
10/06/2026 ore 12:00


Prezzo base
€ 102.300,00


Offerta minima
€ 76.725,00


Rialzo minimo in caso di gara
€ 6.000,00


Deposito cauzionale
10% del prezzo offerto


Deposito in conto spese
-


Tribunale
Siracusa

Tipo di procedura
Esecuzione immobiliare post legge 80

Ruolo
229/2024

Delegato alla vendita
Leone Laura
(Procede alle operazioni di vendita)
(Gestisce la visita del bene)

Recapiti
Cell. 3479160205
Tel. 0931461891

Scheda COD. 4349632 - Pubblicata dal 22/04/2026

La presente scheda di vendita riporta integralmente informazioni e documenti pervenuti ufficialmente dal Ministero e dal professionista incaricato.

Pubblicazione notarizzata su Blockchain


Pubblicazione autorizzata dall’Autorità competente, è vietata ogni ripubblicazione o riproduzione anche parziale


Ti interessa questa vendita?

Documentazione

Visualizza su mappa

Mappa geografica del bene

Punti di interesse

Fonte dati

Nel raggio di {{range}}Km

Loading...
  • {{ getIcon(poi.type) }} {{ poi.localized }}: {{poi.count}}
  • {{ getIcon(poi.type) }} {{ poi.localized }}: {{poi.count}}
Dati non disponibili