Astegiudiziarie.it è parte di Rete Aste Network

Accedi o registrati

Non sei ancora registrato?

Oppure

Accedi

Abitazione di tipo civile

Rigutino Ovest 187/A - Fraz. Rigutino, Arezzo (AR)

€ 243.400,00

Offerta minima € 182.550,00


Codice A4339946

Lotto Lotto unico

Data udienza 12/03/2026 ore 09:00

Termine presentazione offerte 11/03/2026 ore 13:00

Abitazione di tipo civile

Rigutino Ovest 187/A - Fraz. Rigutino, Arezzo (AR)

€ 243.400,00

Offerta minima € 182.550,00


Codice A4339946

Lotto Lotto unico

Data udienza 12/03/2026 ore 09:00

Termine presentazione offerte 11/03/2026 ore 13:00

Ti interessa questa vendita?

Documentazione

Visualizza su mappa

Mappa geografica del bene

Punti di interesse

Fonte dati

Nel raggio di {{range}}Km

Loading...
  • {{ getIcon(poi.type) }} {{ poi.localized }}: {{poi.count}}
  • {{ getIcon(poi.type) }} {{ poi.localized }}: {{poi.count}}
Dati non disponibili

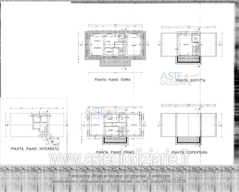
Diritto di piena proprietà per l’intero su di un fabbricato singolo sito in Arezzo (AR), Rigutino Ovest 187/A, frazione Rigutino. Il bene è costituito da un immobile monofamiliare, con annesso resede di pertinenza esterno ed è composto dall’unità residenziale posta a piano interrato, terra, primo, soffitta, oltre a garage a piano terra.

Indirizzo
Rigutino Ovest 187/A - Fraz. Rigutino, Arezzo (AR)


Codice asta
4339946


Lotto
Lotto unico


Numero beni
1


Genere
Immobili


Categoria
Immobile residenziale


Valore di stima
-


Abitazione di tipo civile

Diritto di piena proprietà per l’intero su di un fabbricato singolo sito in Arezzo (AR), Rigutino Ovest 187/A, frazione Rigutino. Il bene è costituito da un immobile monofamiliare, con annesso resede di pertinenza esterno ed è composto dall’unità residenziale posta a piano interrato, terra, primo, soffitta, oltre a garage a piano terra.

Indirizzo
Rigutino Ovest 187/A - Frazione Rigutino, Arezzo (AR)


Piano
-


Disponibilità
OCCUPATO


Vani
8,50


Bagni
-


Metri quadri
235,46


Certificazione energetica
-


Dati catastali

Foglio:93, Sezione:B, Particella:363, Subalterno:2
Foglio:93, Sezione:B, Particella:363, Subalterno:3


Data udienza
12/03/2026 ore 09:00


Tipo di vendita
Senza incanto


Modalità di vendita
Sincrona mista


Luogo
Piazza Falcone Borsellino 1 - Presso Tribunale di Arezzo - Arezzo 52100


Luogo presentazione offerte
-


Termine presentazione offerte
11/03/2026 ore 13:00


Prezzo base
€ 243.400,00


Offerta minima
€ 182.550,00


Rialzo minimo in caso di gara
€ 5.000,00


Deposito cauzionale
10% del prezzo offerto


Deposito in conto spese
-


Tribunale
Arezzo

Tipo di procedura
Espropriazione immobiliare (cartabia)

Ruolo
69/2024

Delegato alla vendita
Varignani Luca
(Procede alle operazioni di vendita)

Recapiti
Cell. 3393459030
Tel. 0575381125

Email
luca.varignani@studiovarignani...

Custode giudiziario
Istituto vendite giudiziarie arezzo - siena 
(Gestisce la visita del bene)

Recapiti
Cell. 3397337017
Tel. 0577318111

Scheda COD. 4339946 - Pubblicata dal 16/01/2026

La presente scheda di vendita riporta integralmente informazioni e documenti pervenuti ufficialmente dal Ministero e dal professionista incaricato.


Pubblicazione autorizzata dall’Autorità competente, è vietata ogni ripubblicazione o riproduzione anche parziale


Ti interessa questa vendita?

Documentazione

Visualizza su mappa

Mappa geografica del bene

Punti di interesse

Fonte dati

Nel raggio di {{range}}Km

Loading...
  • {{ getIcon(poi.type) }} {{ poi.localized }}: {{poi.count}}
  • {{ getIcon(poi.type) }} {{ poi.localized }}: {{poi.count}}
Dati non disponibili