Astegiudiziarie.it è parte di Rete Aste Network

Accedi o registrati

Non sei ancora registrato?

Oppure

Accedi

Appartamento

Via Mandelli 16, Arena Po (PV)

€ 101.500,00

Offerta minima € 76.125,00


Codice A4319891

Lotto Lotto unico

Data udienza 11/06/2026 ore 15:00

Termine presentazione offerte 10/06/2026 ore 12:00

Appartamento

Via Mandelli 16, Arena Po (PV)

€ 101.500,00

Offerta minima € 76.125,00


Codice A4319891

Lotto Lotto unico

Data udienza 11/06/2026 ore 15:00

Termine presentazione offerte 10/06/2026 ore 12:00

Ti interessa questa vendita?

Documentazione

Visualizza su mappa

Mappa geografica del bene

Punti di interesse

Fonte dati

Nel raggio di {{range}}Km

Loading...
  • {{ getIcon(poi.type) }} {{ poi.localized }}: {{poi.count}}
  • {{ getIcon(poi.type) }} {{ poi.localized }}: {{poi.count}}
Dati non disponibili

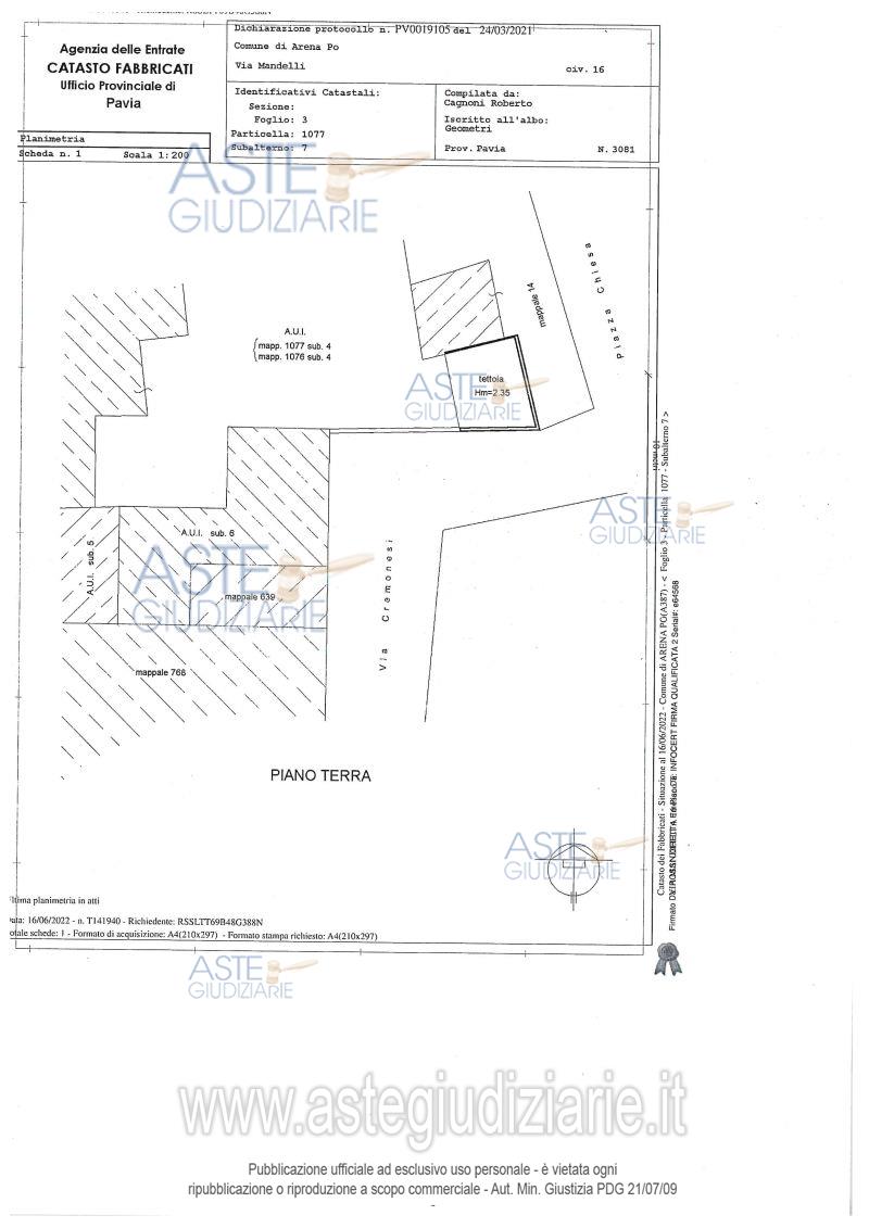
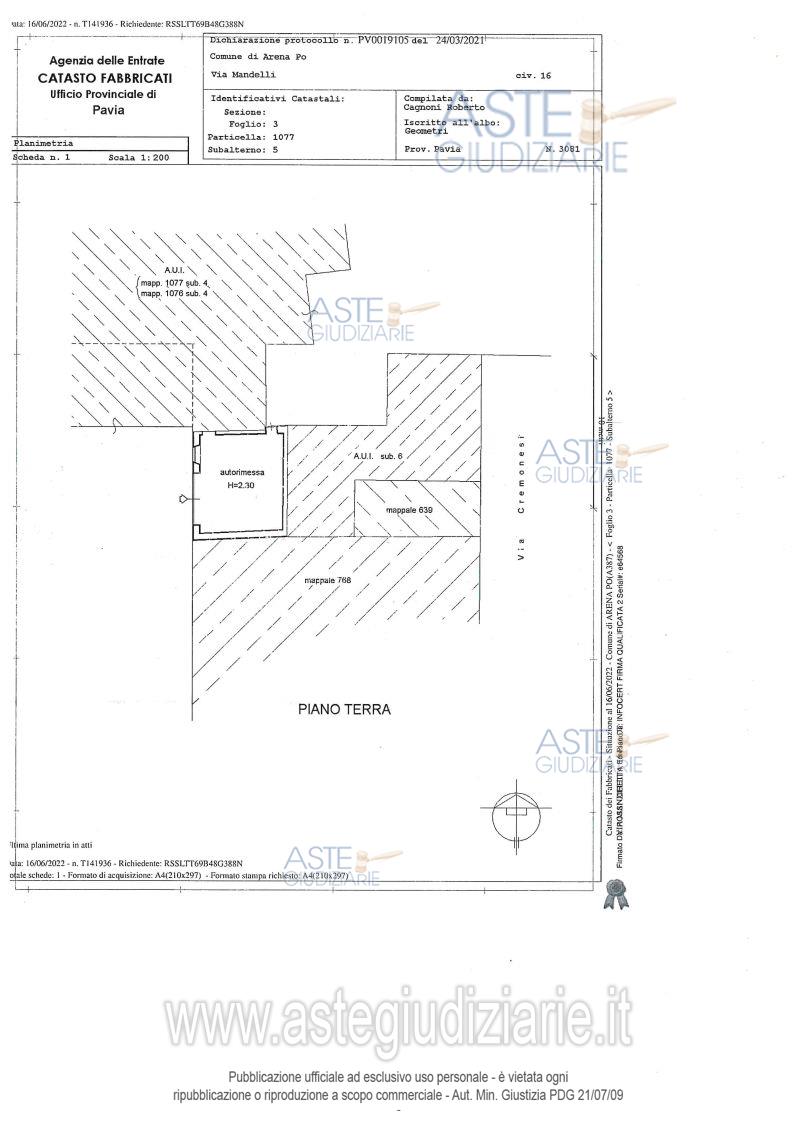
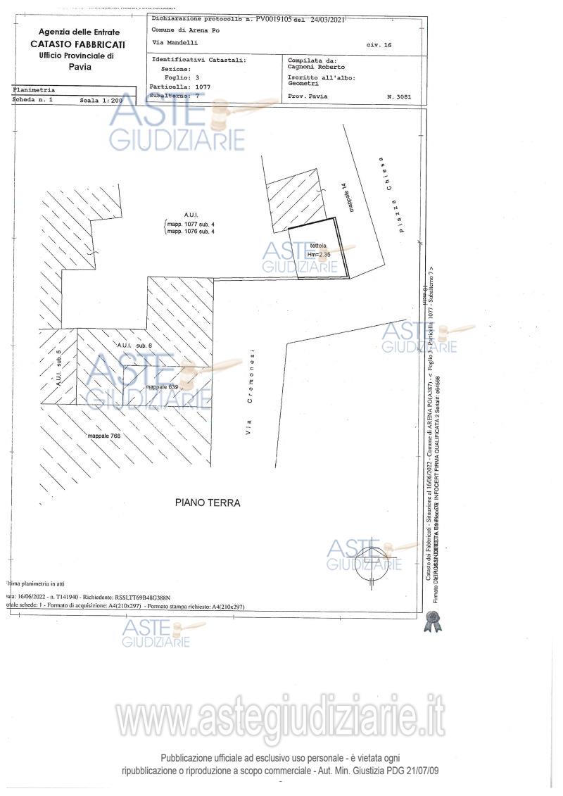
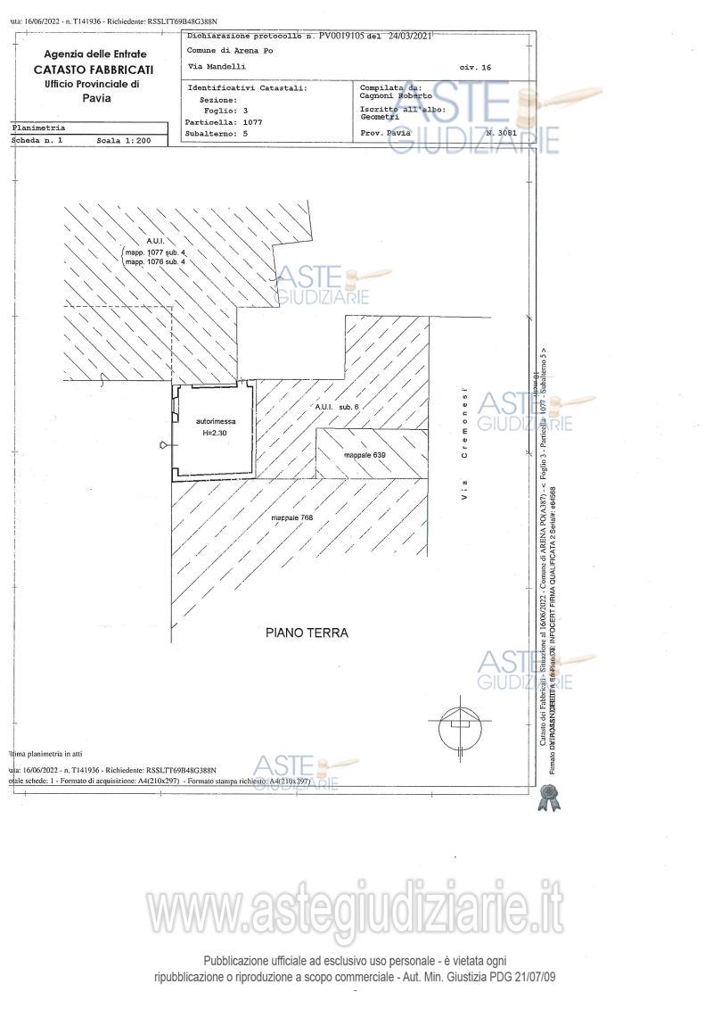
(Cauzione da versare con l'offerta pari ad almeno il 20 % del prezzo offerto) "Villa Mandelli" dimora lombarda d'epoca seicentesca composta da: villa gentilizia a due piani fuori terra oltre una porzione con sottotetto, preceduta da un ampio portico di ingresso ad aprirsi sull'androne passante laterale, del corpo rustici accessori, in parte a due piani, di una cantina seminterrata con soprastante ex tinaia, in origine di più ampie metrature, e di terreno pertinenziale.

Indirizzo
Via Mandelli 16, Arena Po (PV)


Codice asta
4319891


Lotto
Lotto unico


Numero beni
1


Genere
Immobili


Categoria
Immobile residenziale


Valore di stima
-


Appartamento

(Cauzione da versare con l'offerta pari ad almeno il 20 % del prezzo offerto) "Villa Mandelli" dimora lombarda d'epoca seicentesca composta da: villa gentilizia a due piani fuori terra oltre una porzione con sottotetto, preceduta da un ampio portico di ingresso ad aprirsi sull'androne passante laterale, del corpo rustici accessori, in parte a due piani, di una cantina seminterrata con soprastante ex tinaia, in origine di più ampie metrature, e di terreno pertinenziale, e precisamente: A) La villa gentilizia comprende i locali del piano terreno composti da: ingresso, tre sale, vano scala con disimpegni, loggiato interno, portico di ingresso, androne passante e balaustra; i locali del piano primo con: soggiorno, pranzo, cucina, salone, studio, disimpegno centrale e altri disimpegni laterali, tre camere da letto (di cui una utilizzabile anche ad ufficio), cabina armadio, quattro bagni, lavanderia, balcone, ripostiglio, vano ripostiglio al piano ammezzato, torretta all'ultimo piano. Fa parte integrante della villa il terreno pertinenziale, utilizzato anche per il transito carraio e pedonale o quale marciapiede, posto antistante la villa nella facciata di ingresso, e lateralmente negli sviluppi interni del complesso ad angolo con la strada di Via Cremonesi. B) unità artigianale comprende il piano terreno dell'ala di Nord della costruzione, precisamente costituita da: laboratorio, ripostiglio, C.T., due disimpegni, bagno, portico e sedime esclusivo (collocato in prosieguo del pertinenziale alla villa). C) rimessa che occupa il piano terreno del rustico ricavato tra l'androne passante della villa gentilizia e l'unità collabente. D) i rustici che comprendono gli accessori, in parte su due piani, posti lateralmente alla villa. Comprendono due depositi al piano terreno con soprastanti casseri e un portico da terra a tetto. E) la tettoia si inserisce nell'angolo Est della proprietà, a lato dell'ingresso su via Cremonesi. F) unità collabente costituita da costruzione indipendente ad angolo fra le due strade, disposta ai piani interrato e terreno con buona parte delle porzioni in elevazione del piano fuori terra demolite e o/a rovine.; G) terreno accessibile tanto dall'interno della villa quanto dalla Via Alzaia; H) terreno costituito da un lembo in parte gravato dalla servitù di transito pedonale -corrispondente alla Via Alzaia- e, in parte rappresenta la zona di rispetto della sponda del bacino d'acqua.

Indirizzo
Via Mandelli 16, Arena Po (PV)


Piano
-


Disponibilità
OCCUPATO


Vani
14,00


Bagni
-


Metri quadri
409,00


Certificazione energetica
-


Data udienza
11/06/2026 ore 15:00


Tipo di vendita
Senza incanto


Modalità di vendita
Asincrona telematica


Luogo
-


Luogo presentazione offerte
-


Termine presentazione offerte
10/06/2026 ore 12:00


Prezzo base
€ 101.500,00


Offerta minima
€ 76.125,00


Rialzo minimo in caso di gara
€ 1.000,00


Deposito cauzionale
20% del prezzo offerto


Deposito in conto spese
-


Tribunale
Pavia

Tipo di procedura
Esecuzione immobiliare post legge 80

Ruolo
39/2017

Giudice
Claris appiani Francesca paola

Recapiti
-

Email
-

Delegato alla vendita
Marchetti Marco
(Procede alle operazioni di vendita)

Recapiti
-

Email
notai@paviaesecuzioni.it

Custode giudiziario
Istituto vendite giudiziarie di vigevano 
(Gestisce la visita del bene)

Recapiti
Tel. 0381691137

Scheda COD. 4319891 - Pubblicata dal 17/04/2026

La presente scheda di vendita riporta integralmente informazioni e documenti pervenuti ufficialmente dal Ministero e dal professionista incaricato.

Pubblicazione notarizzata su Blockchain


Pubblicazione autorizzata dall’Autorità competente, è vietata ogni ripubblicazione o riproduzione anche parziale


Ti interessa questa vendita?

Documentazione

Visualizza su mappa

Mappa geografica del bene

Storico delle vendite

Data venditaPrezzo base
14/03/2025€ 135.300,00
22/01/2026€ 135.300,00
11/06/2026€ 101.500,00

Punti di interesse

Fonte dati

Nel raggio di {{range}}Km

Loading...
  • {{ getIcon(poi.type) }} {{ poi.localized }}: {{poi.count}}
  • {{ getIcon(poi.type) }} {{ poi.localized }}: {{poi.count}}
Dati non disponibili