Astegiudiziarie.it è parte di Rete Aste Network

Accedi o registrati

Non sei ancora registrato?

Oppure

Accedi

Abitazione di tipo civile

Via Bivia, 1, Amaseno (FR)

€ 49.750,00

Offerta minima € 37.312,50


Codice A4339372

Lotto Lotto unico

Data udienza 20/01/2026 ore 16:00

Termine presentazione offerte 19/01/2026 ore 12:00

Abitazione di tipo civile

Via Bivia, 1, Amaseno (FR)

€ 49.750,00

Offerta minima € 37.312,50


Codice A4339372

Lotto Lotto unico

Data udienza 20/01/2026 ore 16:00

Termine presentazione offerte 19/01/2026 ore 12:00

Ti interessa questa vendita?

Documentazione

Visualizza su mappa

Mappa geografica del bene

Punti di interesse

Fonte dati

Nel raggio di {{range}}Km

Loading...
  • {{ getIcon(poi.type) }} {{ poi.localized }}: {{poi.count}}
  • {{ getIcon(poi.type) }} {{ poi.localized }}: {{poi.count}}
Dati non disponibili

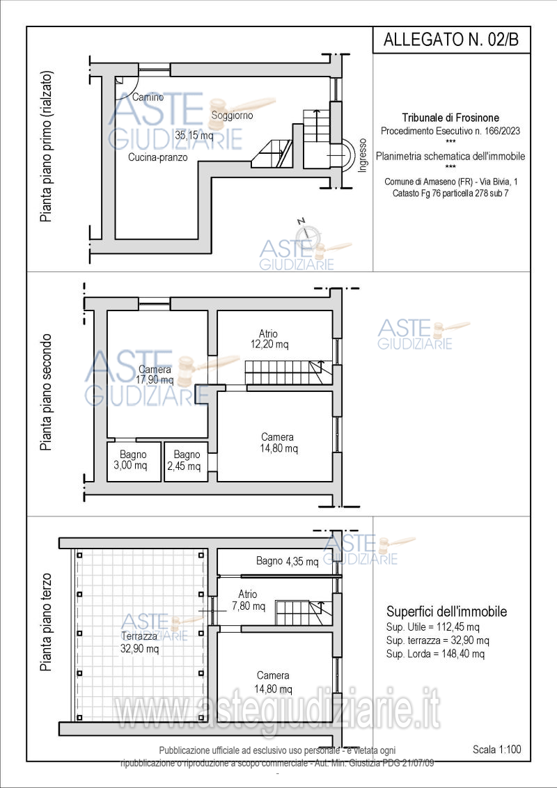
Abitazione su n. 3 livelli sita nel Comune di Amaseno (FR), in Via Bivia, 1. Il bene è ubicato ai piani 1-2 e 3 di una palazzina in muratura. L'immobile, in buono stato di conservazione, è inserito nel Centro storico ed è caratterizzato da strade piccole per la maggior parte pedonali. L'appartamento presenta finiture di buon livello ed è costituito da: Soggiorno, cucina pranzo con camino, n. 2 disimpegni, n. 3 camere, n. 3 bagni ed un'ampia terrazza. Fg. 76, Part. 278, Sub. 7, Categoria A3.

Indirizzo
Via Bivia, 1, Amaseno (FR)


Codice asta
4339372


Lotto
Lotto unico


Numero beni
2


Genere
Immobili


Categoria
Immobile residenziale


Valore di stima
-


Abitazione di tipo civile

Abitazione su n. 3 livelli sita nel Comune di Amaseno (FR), in Via Bivia, 1. Il bene è ubicato ai piani 1-2 e 3 di una palazzina in muratura di vecchia realizzazione. L'immobile, in buono stato di conservazione, è inserito nel Centro storico ed è caratterizzato da strade piccole per la maggior parte pedonali. Non è climaticamente ben esposto ma presenta all'ultimo piano una gradevole terrazza con vista. Il contesto in cui è situata la palazzina è tranquillo, centrale e dotato di tutti i servizi complementari alla residenza (es. uffici, negozi, ecc..). L'appartamento presenta finiture di buon livello ed è costituito da: Soggiorno, cucina pranzo con camino, n. 2 disimpegni, n. 3 camere, n. 3 bagni ed un'ampia terrazza. Fg. 76, Part. 278, Sub. 7, Categoria A3.

Indirizzo
Via Bivia, 1, Amaseno (FR)


Piano
-


Disponibilità
-


Vani
7,00


Bagni
-


Metri quadri
156,62


Certificazione energetica
-


Abitazione di tipo civile

Abitazione su n. 3 livelli sita nel Comune di Amaseno (FR), in Via Bivia, 1. Il bene è ubicato ai piani 1-2 e 3 di una palazzina in muratura di vecchia realizzazione. L'immobile, in buono stato di conservazione, è inserito nel Centro storico ed è caratterizzato da strade piccole per la maggior parte pedonali. Non è climaticamente ben esposto ma presenta all'ultimo piano una gradevole terrazza con vista. Il contesto in cui è situata la palazzina è tranquillo, centrale e dotato di tutti i servizi complementari alla residenza (es. uffici, negozi, ecc..). L'appartamento presenta finiture di buon livello ed è costituito da: Soggiorno, cucina pranzo con camino, n. 2 disimpegni, n. 3 camere, n. 3 bagni ed un'ampia terrazza. Fg. 76, Part. 278, Sub. 7, Categoria A3.

Indirizzo
Via Bivia, 1, Amaseno (FR)


Piano
-


Disponibilità
-


Vani
7,00


Bagni
-


Metri quadri
156,62


Certificazione energetica
-


Data udienza
20/01/2026 ore 16:00


Tipo di vendita
Senza incanto


Modalità di vendita
Asincrona telematica


Luogo
N.A. -


Luogo presentazione offerte
-


Termine presentazione offerte
19/01/2026 ore 12:00


Prezzo base
€ 49.750,00


Offerta minima
€ 37.312,50


Rialzo minimo in caso di gara
€ 4.000,00


Deposito cauzionale
10% del prezzo offerto


Deposito in conto spese
-


Tribunale
Frosinone

Tipo di procedura
Esecuzione immobiliare post legge 80

Ruolo
166/2023

Giudice
Piro Giampaolo

Recapiti
-

Email
-

Delegato alla vendita
Celani Giuseppe
(Procede alle operazioni di vendita)
(Gestisce la visita del bene)

Recapiti
Cell. 3454640106

Scheda COD. 4339372 - Pubblicata dal 12/11/2025

La presente scheda di vendita riporta integralmente informazioni e documenti pervenuti ufficialmente dal Ministero e dal professionista incaricato.


Pubblicazione autorizzata dall’Autorità competente, è vietata ogni ripubblicazione o riproduzione anche parziale


Ti interessa questa vendita?

Documentazione

Visualizza su mappa

Mappa geografica del bene

Punti di interesse

Fonte dati

Nel raggio di {{range}}Km

Loading...
  • {{ getIcon(poi.type) }} {{ poi.localized }}: {{poi.count}}
  • {{ getIcon(poi.type) }} {{ poi.localized }}: {{poi.count}}
Dati non disponibili