Astegiudiziarie.it è parte di Rete Aste Network

Accedi o registrati

Non sei ancora registrato?

Oppure

Accedi

Abitazione di tipo economico

Via Roma, 23, Africo (RC)

€ 28.144,33

Offerta minima € 21.108,26


Codice A4316075

Lotto 1

Data udienza 13/05/2026 ore 10:00

Termine presentazione offerte 12/05/2026 ore 12:00

Abitazione di tipo economico

Via Roma, 23, Africo (RC)

€ 28.144,33

Offerta minima € 21.108,26


Codice A4316075

Lotto 1

Data udienza 13/05/2026 ore 10:00

Termine presentazione offerte 12/05/2026 ore 12:00

Ti interessa questa vendita?

Documentazione

Visualizza su mappa

Mappa geografica del bene

Punti di interesse

Fonte dati

Nel raggio di {{range}}Km

Loading...
  • {{ getIcon(poi.type) }} {{ poi.localized }}: {{poi.count}}
  • {{ getIcon(poi.type) }} {{ poi.localized }}: {{poi.count}}
Dati non disponibili

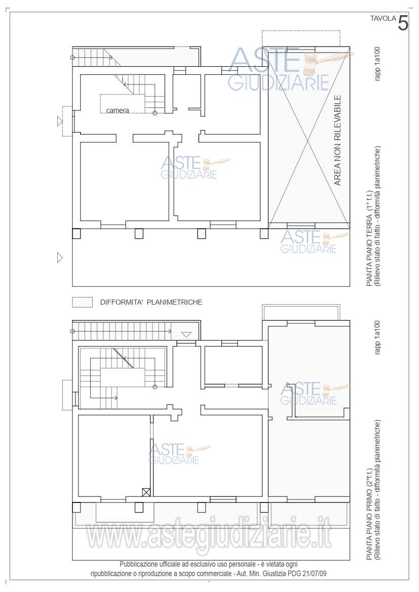
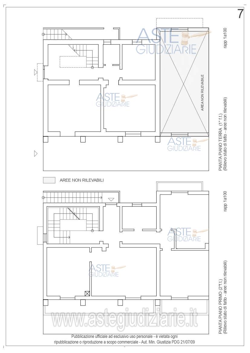
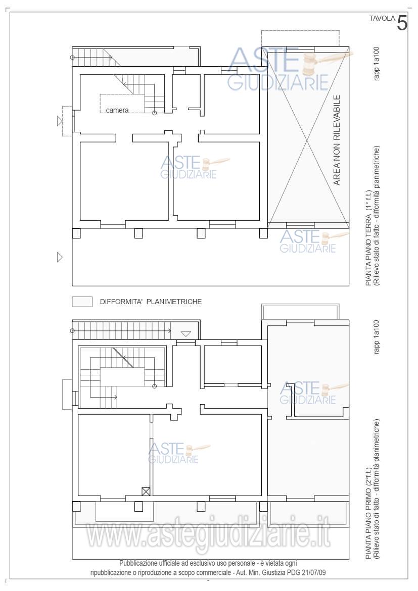
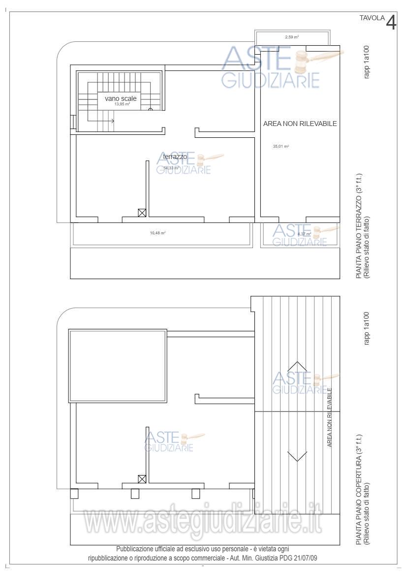
Appartamento, costituito da piano terra e piano primo, riportato in catasto, foglio 48 particella 198, zona censuaria 2, categoria A/3, classe prima, consistenza 7 vani

Indirizzo
Via Roma, 23, Africo (RC)


Codice asta
4316075


Lotto
1


Numero beni
1


Genere
Immobili


Categoria
Immobile residenziale


Valore di stima
-


Abitazione di tipo economico

Appartamento, costituito da piano terra e piano primo, riportato in catasto, foglio 48 particella 198, zona censuaria 2, categoria A/3, classe prima, consistenza 7 vani

Indirizzo
Via Roma, 23, Africo (RC)


Piano
T-1


Disponibilità
-


Vani
7,00


Bagni
-


Metri quadri
298,00


Certificazione energetica
-


Dati catastali

Foglio:48, Particella:198


Data udienza
13/05/2026 ore 10:00


Tipo di vendita
Senza incanto


Modalità di vendita
Asincrona telematica


Luogo
N.A. -


Luogo presentazione offerte
-


Termine presentazione offerte
12/05/2026 ore 12:00


Prezzo base
€ 28.144,33


Offerta minima
€ 21.108,26


Rialzo minimo in caso di gara
€ 1.000,00


Deposito cauzionale
10% del prezzo offerto


Deposito in conto spese
-


Tribunale
Reggio di Calabria

Tipo di procedura
Esecuzione immobiliare post legge 80

Ruolo
3/2021

Giudice
Buggè Francesco maria antonio

Recapiti
-

Email
-

Delegato alla vendita
Sorbo Sabrina
(Procede alle operazioni di vendita)

Recapiti
Tel. 3208361263

Email
avv.sabrinasorbo@gmail.com

Custode giudiziario
Sorbo Sabrina
(Gestisce la visita del bene)

Recapiti
Tel. 3208361263

Scheda COD. 4316075 - Pubblicata dal 20/03/2026

La presente scheda di vendita riporta integralmente informazioni e documenti pervenuti ufficialmente dal Ministero e dal professionista incaricato.

Pubblicazione notarizzata su Blockchain


Pubblicazione autorizzata dall’Autorità competente, è vietata ogni ripubblicazione o riproduzione anche parziale


Ti interessa questa vendita?

Documentazione

Visualizza su mappa

Mappa geografica del bene

Storico delle vendite

Data venditaPrezzo base
21/01/2025€ 66.712,50
10/06/2025€ 50.034,38
25/11/2025€ 37.525,78
13/05/2026€ 28.144,33

Punti di interesse

Fonte dati

Nel raggio di {{range}}Km

Loading...
  • {{ getIcon(poi.type) }} {{ poi.localized }}: {{poi.count}}
  • {{ getIcon(poi.type) }} {{ poi.localized }}: {{poi.count}}
Dati non disponibili