Astegiudiziarie.it è parte di Rete Aste Network

Accedi o registrati

Non sei ancora registrato?

Oppure

Accedi

Abitazione di tipo civile

Via Catania, 20, 95031 Adrano CT, Italia, Adrano (CT)

€ 53.664,00

Offerta minima € 40.248,00


Codice A4328586

Lotto 2

Data udienza 27/05/2026 ore 16:00

Termine presentazione offerte 26/05/2026 ore 13:00

Abitazione di tipo civile

Via Catania, 20, 95031 Adrano CT, Italia, Adrano (CT)

€ 53.664,00

Offerta minima € 40.248,00


Codice A4328586

Lotto 2

Data udienza 27/05/2026 ore 16:00

Termine presentazione offerte 26/05/2026 ore 13:00

Ti interessa questa vendita?

Documentazione

Visualizza su mappa

Mappa geografica del bene

Punti di interesse

Fonte dati

Nel raggio di {{range}}Km

Loading...
  • {{ getIcon(poi.type) }} {{ poi.localized }}: {{poi.count}}
  • {{ getIcon(poi.type) }} {{ poi.localized }}: {{poi.count}}
Dati non disponibili

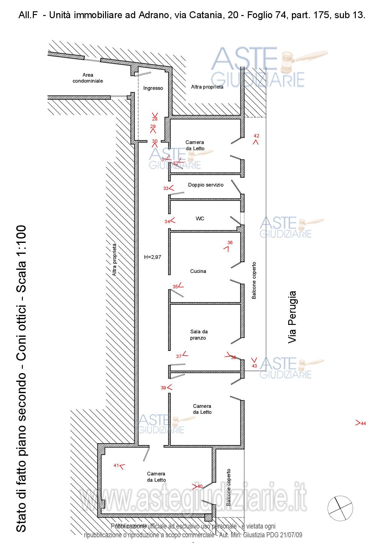
Appartamento sito in Adrano (CT), Via Catania n. 20, posto al piano secondo, avente superficie convenzionale mq. 139,25 c.ca; censito in Catasto Fabbricati del detto Comune al foglio 74, particella 175, sub. 13, cat. A/2, classe 4, consistenza vani 6, superficie catastale mq. 161, rendita catastale € 433,82

Indirizzo
Via Catania, 20, 95031 Adrano CT, Italia, Adrano (CT)


Codice asta
4328586


Lotto
2


Numero beni
1


Genere
Immobili


Categoria
Immobile residenziale


Valore di stima
-


Abitazione di tipo civile

Appartamento sito in Adrano (CT), Via Catania n. 20, posto al piano secondo, avente superficie convenzionale mq. 139,25 c.ca; censito in Catasto Fabbricati del detto Comune al foglio 74, particella 175, sub. 13, cat. A/2, classe 4, consistenza vani 6, superficie catastale mq. 161, rendita catastale € 433,82

Indirizzo
Via Catania, 20, 95031 Adrano CT, Italia, Adrano (CT)


Piano
-


Disponibilità
-


Vani
6,00


Bagni
-


Metri quadri
161,00


Certificazione energetica
-


Dati catastali

Foglio:74, Particella:175, Subalterno:13


Data udienza
27/05/2026 ore 16:00


Tipo di vendita
Senza incanto


Modalità di vendita
Sincrona mista


Luogo
Piazza Ludovico Ariosto, 13 - Catania 95127


Luogo presentazione offerte
-


Termine presentazione offerte
26/05/2026 ore 13:00


Prezzo base
€ 53.664,00


Offerta minima
€ 40.248,00


Rialzo minimo in caso di gara
€ 1.000,00


Deposito cauzionale
10% del prezzo offerto


Deposito in conto spese
-


Tribunale
Catania

Tipo di procedura
Esecuzione immobiliare post legge 80

Ruolo
24/2022

Delegato alla vendita
Seminara Mariangela avv.
(Procede alle operazioni di vendita)
(Gestisce la visita del bene)

Recapiti
Cell. 3386203800
Tel. 0952163386

Scheda COD. 4328586 - Pubblicata dal 23/03/2026

La presente scheda di vendita riporta integralmente informazioni e documenti pervenuti ufficialmente dal Ministero e dal professionista incaricato.

Pubblicazione notarizzata su Blockchain


Pubblicazione autorizzata dall’Autorità competente, è vietata ogni ripubblicazione o riproduzione anche parziale


Ti interessa questa vendita?

Documentazione

Visualizza su mappa

Mappa geografica del bene

Storico delle vendite

Data venditaPrezzo base
24/07/2025€ 71.551,86
13/01/2026€ 53.664,00
27/05/2026€ 53.664,00

Punti di interesse

Fonte dati

Nel raggio di {{range}}Km

Loading...
  • {{ getIcon(poi.type) }} {{ poi.localized }}: {{poi.count}}
  • {{ getIcon(poi.type) }} {{ poi.localized }}: {{poi.count}}
Dati non disponibili