Astegiudiziarie.it è parte di Rete Aste Network

Accedi o registrati

Non sei ancora registrato?

Oppure

Accedi

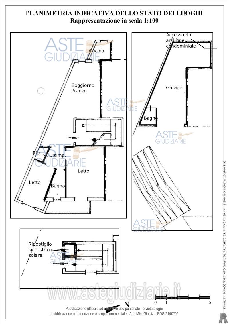
giudiziariagiudiziariaTribunale di BARIESECUZIONI CIVILI IMMOBILIARIESECUZIONE IMMOBILIARE POST LEGGE 80762022Delegato alla venditaGiuseppinaOstuniSTNGPP61E61A662Cstudiolegalegostuni@gmail.comtruefalseCustodeGiuseppinaOstuniSTNGPP61E61A662Cstudiolegalegostuni@gmail.comfalsetrueGiudiceAntonioRuffinofalsefalse2349750LOTTO UNICOIMMOBILIIMMOBILE RESIDENZIALEVia Corsocavallo 31Acquaviva delle FontiBariPugliaItaliaDiritto di proprietà 1/1 dell'alloggio al terzo livello, costituito da soggiorno a vista con adiacente cucinino, disimpegno a servizio della zona notte costituita da un ripostiglio, due camere da letto ed un bagno. Completa il compendio un piccolo deposito allocato sul lastrico solare e un locale autorimessa al piano terra.3035884IMMOBILE RESIDENZIALEABITAZIONE DI TIPO ECONOMICOVia Corsocavallo 31Acquaviva delle FontiBariPugliaItaliaDiritto di proprietà 1/1 dell'alloggio al terzo livello, costituito da soggiorno a vista con adiacente cucinino, disimpegno a servizio della zona notte costituita da un ripostiglio, due camere da letto ed un bagno. Completa il compendio un piccolo deposito allocato sul lastrico solare e un locale autorimessa al piano terra.4621213-20-112026-03-10T16:30:00SENZA INCANTOASINCRONA TELEMATICAN.A.34.729,0026.047,001.000,002026-03-03T12:00:00sito pubblicitahttps://www.astegiudiziarie.ithttps://www.astegiudiziarie.itgestore delle venditehttps://www.venditegiudiziarieitalia.it/https://www.venditegiudiziarieitalia.it/2025-11-10

Abitazione di tipo economico

Via Corsocavallo 31, Acquaviva delle Fonti (BA)

€ 34.729,00

Offerta minima € 26.047,00


Codice A4299518

Lotto Lotto unico

Data udienza 10/03/2026 ore 16:30

Termine presentazione offerte 03/03/2026 ore 12:00

Abitazione di tipo economico

Via Corsocavallo 31, Acquaviva delle Fonti (BA)

€ 34.729,00

Offerta minima € 26.047,00


Codice A4299518

Lotto Lotto unico

Data udienza 10/03/2026 ore 16:30

Termine presentazione offerte 03/03/2026 ore 12:00

Ti interessa questa vendita?

Documentazione

Visualizza su mappa

Mappa geografica del bene

Punti di interesse

Fonte dati

Nel raggio di {{range}}Km

Loading...
  • {{ getIcon(poi.type) }} {{ poi.localized }}: {{poi.count}}
  • {{ getIcon(poi.type) }} {{ poi.localized }}: {{poi.count}}
Dati non disponibili

Diritto di proprietà 1/1 dell'alloggio al terzo livello, costituito da soggiorno a vista con adiacente cucinino, disimpegno a servizio della zona notte costituita da un ripostiglio, due camere da letto ed un bagno. Completa il compendio un piccolo deposito allocato sul lastrico solare e un locale autorimessa al piano terra.

Indirizzo
Via Corsocavallo 31, Acquaviva delle Fonti (BA)


Codice asta
4299518


Lotto
Lotto unico


Numero beni
1


Genere
Immobili


Categoria
Immobile residenziale


Valore di stima
-


Abitazione di tipo economico

Diritto di proprietà 1/1 dell'alloggio al terzo livello, costituito da soggiorno a vista con adiacente cucinino, disimpegno a servizio della zona notte costituita da un ripostiglio, due camere da letto ed un bagno. Completa il compendio un piccolo deposito allocato sul lastrico solare e un locale autorimessa al piano terra.

Indirizzo
Via Corsocavallo 31, Acquaviva delle Fonti (BA)


Piano
-


Disponibilità
-


Vani
-


Bagni
-


Metri quadri
-


Certificazione energetica
-


Dati catastali

Foglio:46, Particella:2121, Subalterno:3-20-11


Data udienza
10/03/2026 ore 16:30


Tipo di vendita
Senza incanto


Modalità di vendita
Asincrona telematica


Luogo
N.A. -


Luogo presentazione offerte
-


Termine presentazione offerte
03/03/2026 ore 12:00


Prezzo base
€ 34.729,00


Offerta minima
€ 26.047,00


Rialzo minimo in caso di gara
€ 1.000,00


Deposito cauzionale
10% del prezzo offerto


Deposito in conto spese
-


Tribunale
Bari

Tipo di procedura
Esecuzione immobiliare post legge 80

Ruolo
76/2022

Giudice
Ruffino Antonio

Recapiti
-

Email
-

Delegato alla vendita
Ostuni Giuseppina
(Procede alle operazioni di vendita)

Recapiti
-

Email
studiolegalegostuni@gmail.com

Custode giudiziario
Ostuni Giuseppina
(Gestisce la visita del bene)

Recapiti
-

Scheda COD. 4299518 - Pubblicata dal 10/11/2025

La presente scheda di vendita riporta integralmente informazioni e documenti pervenuti ufficialmente dal Ministero e dal professionista incaricato.

Pubblicazione notarizzata su Blockchain


Pubblicazione autorizzata dall’Autorità competente, è vietata ogni ripubblicazione o riproduzione anche parziale


Ti interessa questa vendita?

Documentazione

Visualizza su mappa

Mappa geografica del bene

Storico delle vendite

Data venditaPrezzo base
03/07/2024€ 61.740,00
18/06/2025€ 46.305,00
10/03/2026€ 34.729,00

Punti di interesse

Fonte dati

Nel raggio di {{range}}Km

Loading...
  • {{ getIcon(poi.type) }} {{ poi.localized }}: {{poi.count}}
  • {{ getIcon(poi.type) }} {{ poi.localized }}: {{poi.count}}
Dati non disponibili