Astegiudiziarie.it è parte di Rete Aste Network

Accedi o registrati

Non sei ancora registrato?

Oppure

Accedi

Abitazione di tipo civile

Via Raffaello, 1, 01021 Acquapendente VT, Italia, Acquapendente (VT)

€ 80.000,00

Offerta minima € 60.000,00


Codice A4344057

Lotto 1

Data udienza 17/06/2026 ore 11:20

Termine presentazione offerte 16/06/2026 ore 13:00

Abitazione di tipo civile

Via Raffaello, 1, 01021 Acquapendente VT, Italia, Acquapendente (VT)

€ 80.000,00

Offerta minima € 60.000,00


Codice A4344057

Lotto 1

Data udienza 17/06/2026 ore 11:20

Termine presentazione offerte 16/06/2026 ore 13:00

Ti interessa questa vendita?

Documentazione

Visualizza su mappa

Mappa geografica del bene

Punti di interesse

Fonte dati

Nel raggio di {{range}}Km

Loading...
  • {{ getIcon(poi.type) }} {{ poi.localized }}: {{poi.count}}
  • {{ getIcon(poi.type) }} {{ poi.localized }}: {{poi.count}}
Dati non disponibili

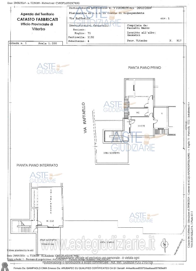
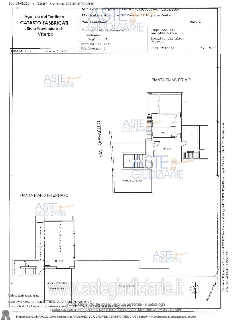
Nel Comune di Acquapendente (VT), Via Raffaello n. 1, diritto di piena proprietà su appartamento al P1 con area scoperta al piano terra ed autorimessa posta al Piano interrato.Composto da soggiorno, cucina, disimpegno, due camere da letto, un bagno, balcone.Con difformità riscontrate nell’autorimessa e nel balcone dell’appartamento che risultano sanabili con costo sottratto dal valore del bene.Occupato dal debitore. Vendita NON soggetta ad Iva

Indirizzo
Via Raffaello, 1, 01021 Acquapendente VT, Italia, Acquapendente (VT)


Codice asta
4344057


Lotto
1


Numero beni
1


Genere
Immobili


Categoria
Immobile residenziale


Valore di stima
-


Abitazione di tipo civile

Nel Comune di Acquapendente (VT), Via Raffaello n. 1, diritto di piena proprietà su unità immobiliare costituita da appartamento di civile abitazione posto al P1, una piccola area scoperta al piano terra ed autorimessa posta al Piano interrato alla quale si accede da Via Michelangelo snc.L’appartamento al P1 si compone di soggiorno, cucina, disimpegno, due camere da letto, un bagno, balcone a livello per una metratura di circa 86mq.Il garage al Piano interrato ha una metratura di circa 50mq.Con difformità riscontrate nell’autorimessa al Piano interrato e nel balcone dell’appartamento al P1 che risultano sanabili: il costo della sanatoria e dei relativi lavori edili è stato sottratto dal valore del bene.In Catasto Fabbricati al Foglio 71, Particella 1132, sub 4, cat. A/2, classe 2, vani 5,5 rendita catastale € 553,90Occupato dal debitoreVendita NON soggetta ad Iva

Indirizzo
Via Raffaello, 1, 01021 Acquapendente VT, Italia, Acquapendente (VT)


Piano
1


Disponibilità
OCCUPATO


Vani
55,00


Bagni
-


Metri quadri
136,00


Certificazione energetica
-


Dati catastali

Foglio:71, Particella:1132, Subalterno:4


Data udienza
17/06/2026 ore 11:20


Tipo di vendita
Senza incanto


Modalità di vendita
Asincrona telematica


Luogo
N.A. -


Luogo presentazione offerte
-


Termine presentazione offerte
16/06/2026 ore 13:00


Prezzo base
€ 80.000,00


Offerta minima
€ 60.000,00


Rialzo minimo in caso di gara
€ 4.000,00


Deposito cauzionale
15% del prezzo offerto


Deposito in conto spese
-


Tribunale
Viterbo

Tipo di procedura
Espropriazione immobiliare (cartabia)

Ruolo
47/2024

Giudice
Bonato Federico

Recapiti
-

Email
-

Delegato alla vendita
Mangano Giuseppe
(Procede alle operazioni di vendita)
(Gestisce la visita del bene)

Recapiti
Tel. 0761307490

Scheda COD. 4344057 - Pubblicata dal 22/04/2026

La presente scheda di vendita riporta integralmente informazioni e documenti pervenuti ufficialmente dal Ministero e dal professionista incaricato.


Pubblicazione autorizzata dall’Autorità competente, è vietata ogni ripubblicazione o riproduzione anche parziale


Ti interessa questa vendita?

Documentazione

Visualizza su mappa

Mappa geografica del bene

Storico delle vendite

Data venditaPrezzo base
25/03/2026€ 103.000,00
17/06/2026€ 80.000,00

Punti di interesse

Fonte dati

Nel raggio di {{range}}Km

Loading...
  • {{ getIcon(poi.type) }} {{ poi.localized }}: {{poi.count}}
  • {{ getIcon(poi.type) }} {{ poi.localized }}: {{poi.count}}
Dati non disponibili