Astegiudiziarie.it è parte di Rete Aste Network

Accedi o registrati

Non sei ancora registrato?

Oppure

Accedi

Abitazione di tipo civile

Via IV Novembre, 130/B, interno 6 - Via IV novembre n. 136/A, Aci Catena (CT)

€ 69.000,00

Offerta minima € 51.750,00


Codice A4333333

Lotto Lotto unico

Data udienza 13/02/2026 ore 10:00

Termine presentazione offerte 12/02/2026 ore 13:00

Abitazione di tipo civile

Via IV Novembre, 130/B, interno 6 - Via IV novembre n. 136/A, Aci Catena (CT)

€ 69.000,00

Offerta minima € 51.750,00


Codice A4333333

Lotto Lotto unico

Data udienza 13/02/2026 ore 10:00

Termine presentazione offerte 12/02/2026 ore 13:00

Ti interessa questa vendita?

Documentazione

Visualizza su mappa

Mappa geografica del bene

Punti di interesse

Fonte dati

Nel raggio di {{range}}Km

Loading...
  • {{ getIcon(poi.type) }} {{ poi.localized }}: {{poi.count}}
  • {{ getIcon(poi.type) }} {{ poi.localized }}: {{poi.count}}
Dati non disponibili

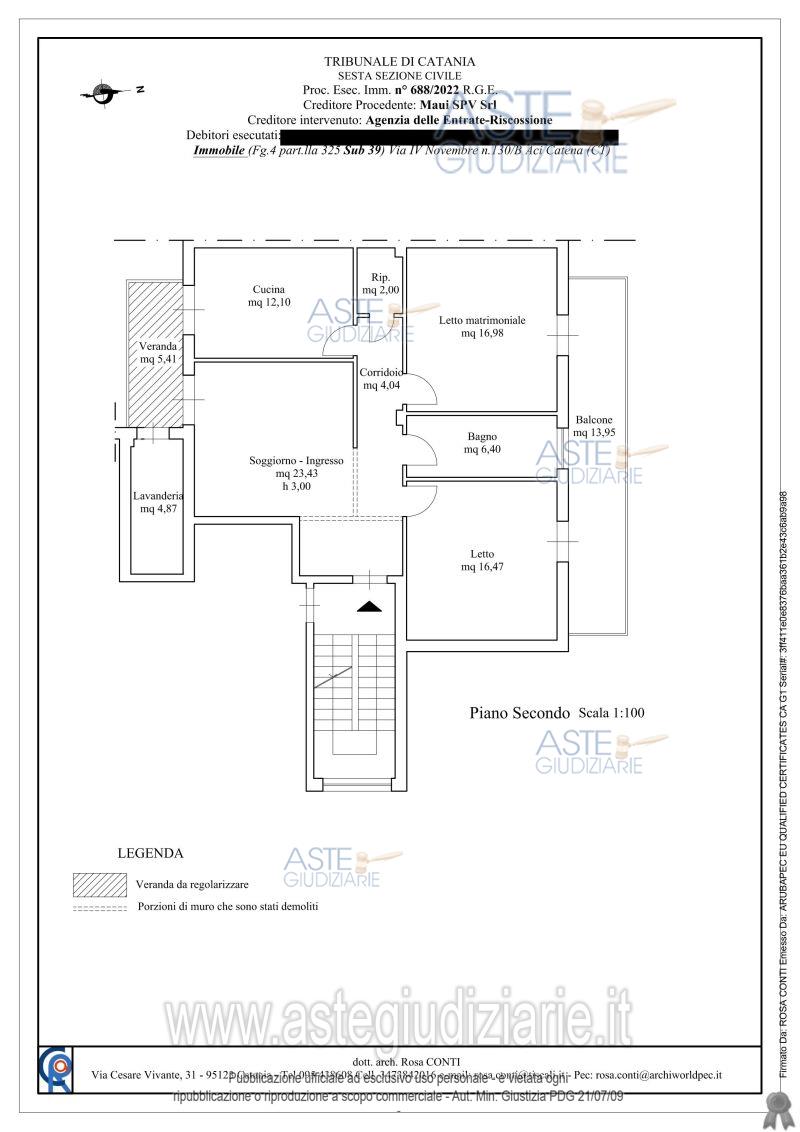
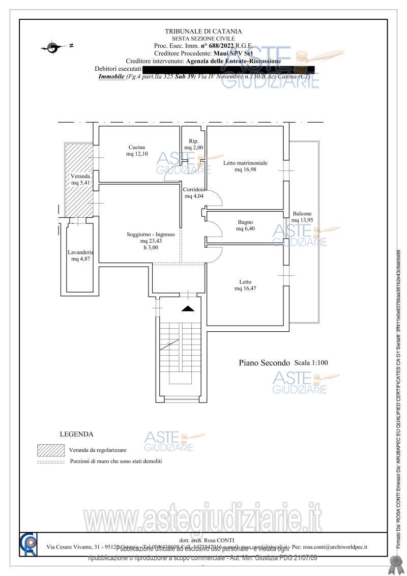
Lotto unico composto da: Appartamento ai piani secondo e terzo con ingresso da Via IV novembre n. 130/B, interno 6, di vani 6; Garage al piano primo sottostrada con ingresso da Via IV novembre n. 136/A, interno 4, di circa 34 metri quadrati.

Indirizzo
Via IV Novembre, 130/B, interno 6 - Via IV novembre n. 136/A, Aci Catena (CT)


Codice asta
4333333


Lotto
Lotto unico


Numero beni
1


Genere
Immobili


Categoria
Immobile residenziale


Valore di stima
-


Abitazione di tipo civile

Lotto unico composto da: Appartamento ai piani secondo e terzo con ingresso da Via IV novembre n. 130/B, interno 6, di vani 6; Garage al piano primo sottostrada con ingresso da Via IV novembre n. 136/A, interno 4, di circa 34 metri quadrati.

Indirizzo
Via IV novembre n. 130/B, interno 6 - Via IV novembre n. 136/A, interno 4, Aci Catena (CT)


Piano
2 e 3


Disponibilità
OCCUP


Vani
6,00


Bagni
-


Metri quadri
100,00


Certificazione energetica
-


Data udienza
13/02/2026 ore 10:00


Tipo di vendita
Senza incanto


Modalità di vendita
Sincrona telematica


Luogo
N.A. -


Luogo presentazione offerte
-


Termine presentazione offerte
12/02/2026 ore 13:00


Prezzo base
€ 69.000,00


Offerta minima
€ 51.750,00


Rialzo minimo in caso di gara
€ 1.800,00


Deposito cauzionale
-


Deposito in conto spese
-


Tribunale
Catania

Tipo di procedura
Esecuzione immobiliare post legge 80

Ruolo
688/2022

Giudice
Fazio Venera

Recapiti
-

Email
-

Delegato alla vendita
Sabella Antonio
(Procede alle operazioni di vendita)
(Gestisce la visita del bene)

Recapiti
Tel. 095507762

Scheda COD. 4333333 - Pubblicata dal 09/12/2025

La presente scheda di vendita riporta integralmente informazioni e documenti pervenuti ufficialmente dal Ministero e dal professionista incaricato.

Pubblicazione notarizzata su Blockchain


Pubblicazione autorizzata dall’Autorità competente, è vietata ogni ripubblicazione o riproduzione anche parziale


Ti interessa questa vendita?

Documentazione

Visualizza su mappa

Mappa geografica del bene

Storico delle vendite

Data venditaPrezzo base
07/11/2025€ 92.000,00
13/02/2026€ 69.000,00

Punti di interesse

Fonte dati

Nel raggio di {{range}}Km

Loading...
  • {{ getIcon(poi.type) }} {{ poi.localized }}: {{poi.count}}
  • {{ getIcon(poi.type) }} {{ poi.localized }}: {{poi.count}}
Dati non disponibili