Astegiudiziarie.it è parte di Rete Aste Network

Accedi o registrati

Non sei ancora registrato?

Oppure

Accedi

Albergo e pensione

Via Piave, 93017 San Cataldo CL, Italia, San Cataldo (CL)

€ 1.251.081,98

Offerta minima € 938.311,48


Albergo e pensione

Via Piave, 93017 San Cataldo CL, Italia, San Cataldo (CL)

€ 1.251.081,98

Offerta minima € 938.311,48


Codice A4333100

Lotto 1

Data udienza 03/03/2026 ore 11:30

Termine presentazione offerte 02/03/2026 ore 12:00

Ti interessa questa vendita?

Documentazione

Visualizza su mappa

Mappa geografica del bene

Punti di interesse

Fonte dati

Nel raggio di {{range}}Km

Loading...
  • {{ getIcon(poi.type) }} {{ poi.localized }}: {{poi.count}}
  • {{ getIcon(poi.type) }} {{ poi.localized }}: {{poi.count}}
Dati non disponibili

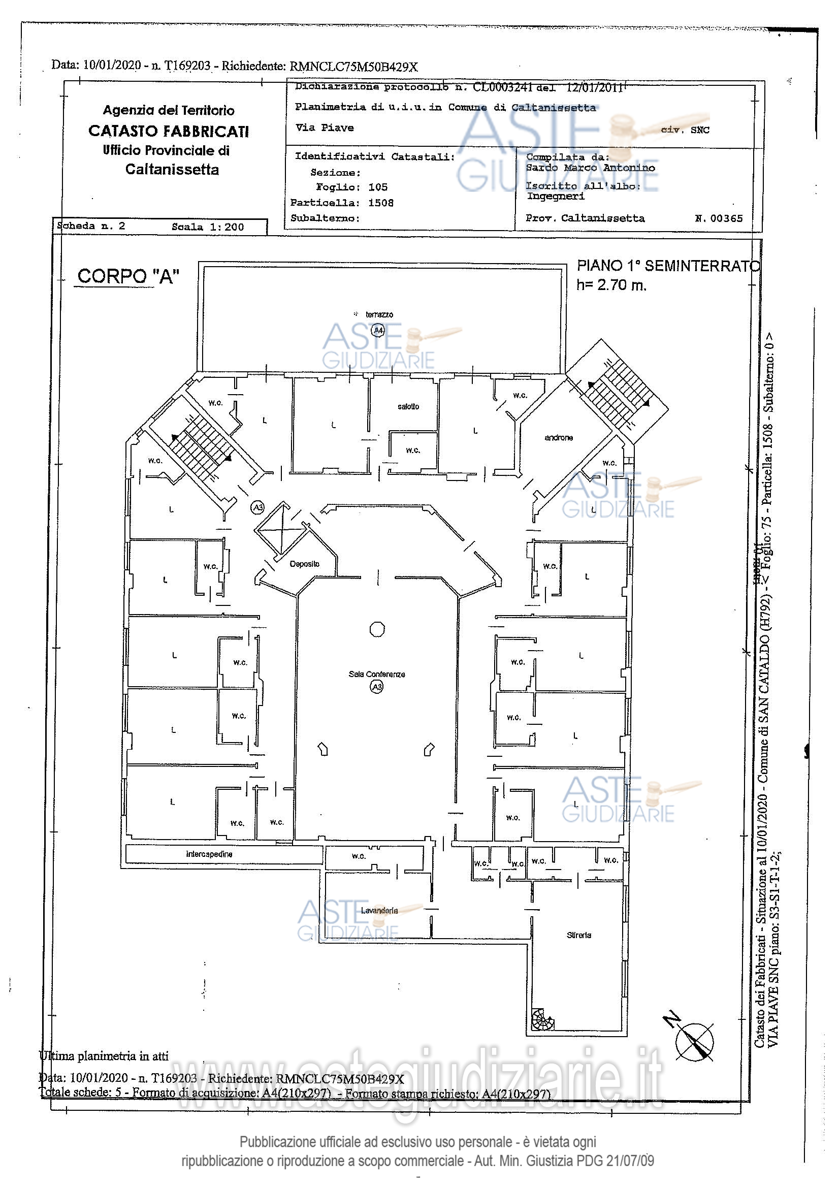
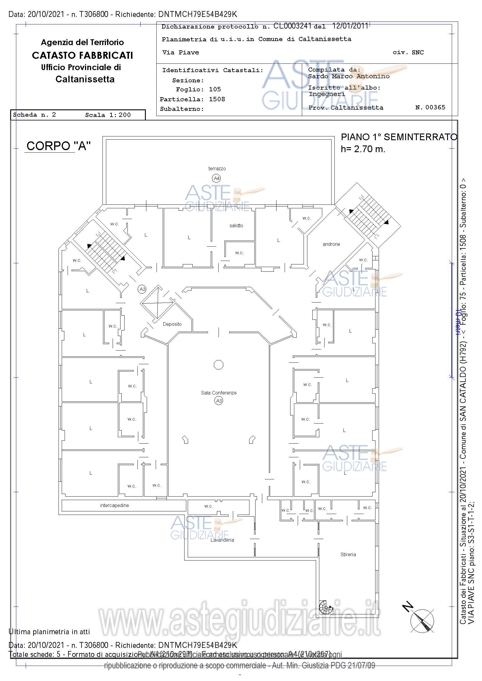
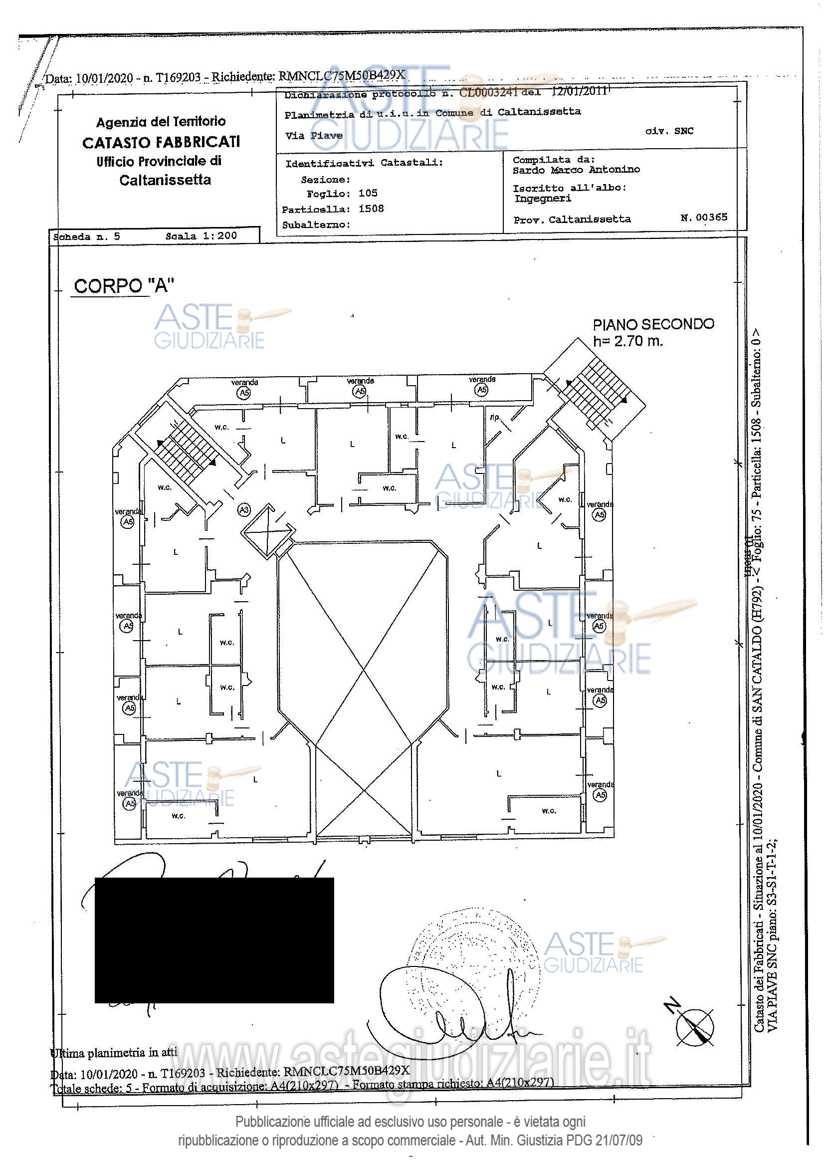
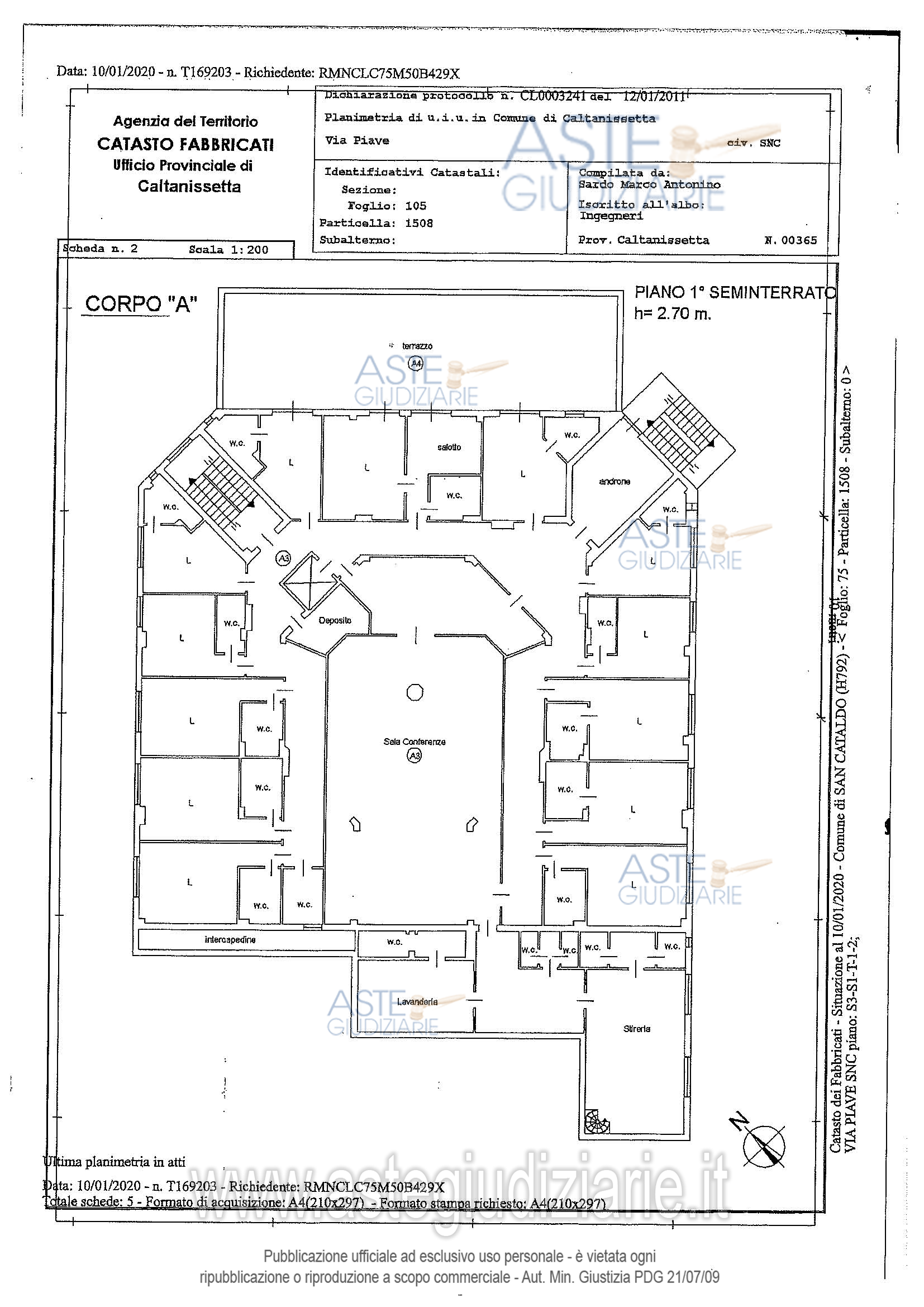
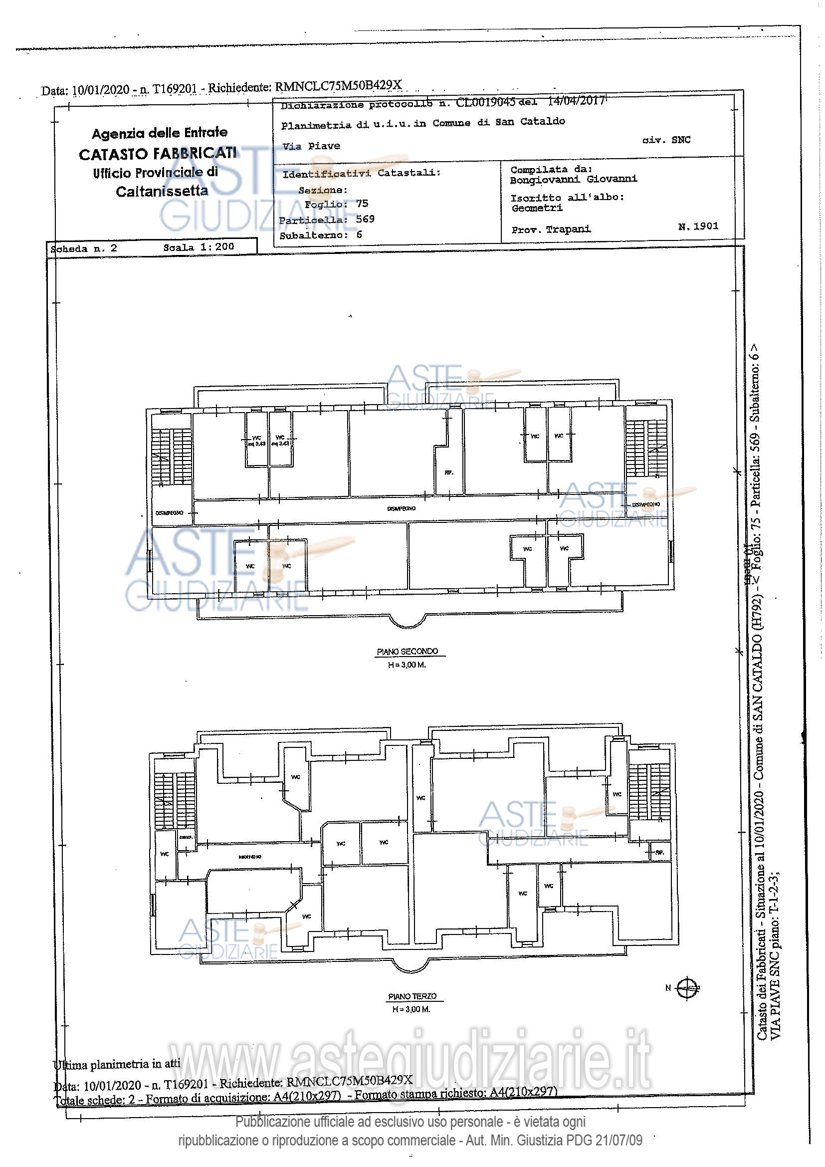
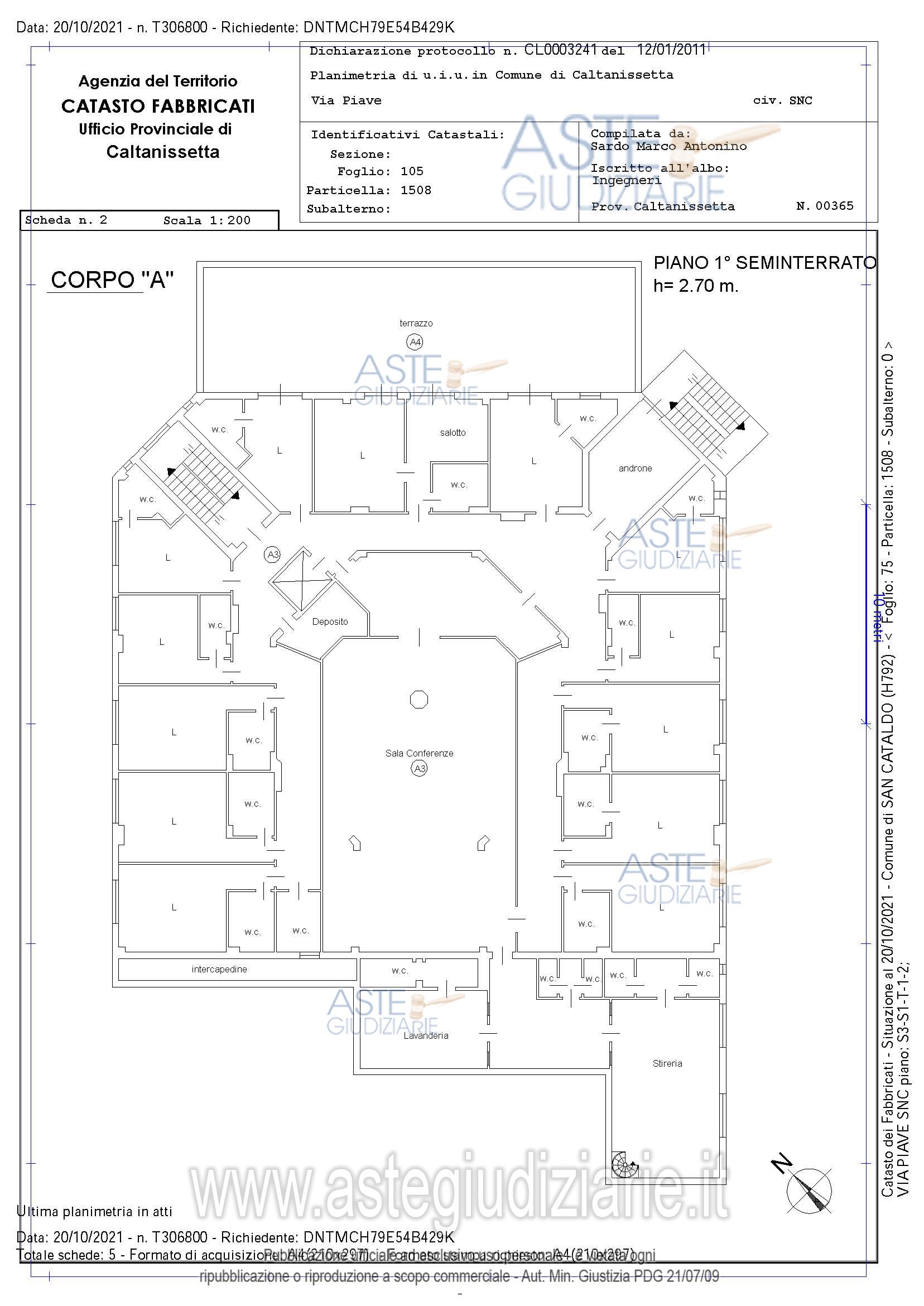
Fabbricato adibito ad albergo con parcheggio ed area esterna di pertinenza esclusiva, disposto su n. 3 elevazioni fuori terra, n. 2 piani seminterrati ed uno interrato; il complesso dispone di 40 camere oltre che di due ristoranti ed una sala convegni ed ha una superficie pari a 3.580,00 metri quadri circa, oltre varie particelle di terreno limitrofe, prive di capacità edificatoria, e i beni mobili all'interno dell’albergo, del valore di Euro 42.504,00.

Indirizzo
Via Piave, 93017 San Cataldo CL, Italia, San Cataldo (CL)


Codice asta
4333100


Lotto
1


Numero beni
1


Genere
Immobili


Categoria
Altra categoria


Valore di stima
-


Albergo e pensione

Fabbricato adibito ad albergo con parcheggio ed area esterna di pertinenza esclusiva, disposto su n. 3 elevazioni fuori terra, n. 2 piani seminterrati ed uno interrato; il complesso dispone di 40 camere oltre che di due ristoranti ed una sala convegni ed ha una superficie pari a 3.580,00 metri quadri circa, oltre varie particelle di terreno limitrofe, prive di capacità edificatoria, e i beni mobili all'interno dell’albergo, del valore di Euro 42.504,00.

Indirizzo
Via Piave, 93017 San Cataldo CL, Italia, San Cataldo (CL)


Piano
-


Disponibilità
-


Vani
-


Bagni
-


Metri quadri
3580,00


Certificazione energetica
-


Data udienza
03/03/2026 ore 11:30


Tipo di vendita
Senza incanto


Modalità di vendita
Sincrona mista


Luogo
Corso Sicilia, 156 - Caltanissetta 93100


Luogo presentazione offerte
-


Termine presentazione offerte
02/03/2026 ore 12:00


Prezzo base
€ 1.251.081,98


Offerta minima
€ 938.311,48


Rialzo minimo in caso di gara
€ 5.000,00


Deposito cauzionale
10% del prezzo offerto


Deposito in conto spese
-


Tribunale
Caltanissetta

Tipo di procedura
Fallimentare (nuovo rito)

Ruolo
2/2021

Giudice
Difrancesco Ester rita

Recapiti
-

Email
-

Soggetto specializzato alla vendita
Aste giudiziarie inlinea spa 
(Procede alle operazioni di vendita)

Recapiti
Tel. 0586 201480

Email
vendite@astegiudiziarie.it

Curatore fallimentare
Cucurullo Carolina

Recapiti
Tel. 3400814632

Email
-

Custode giudiziario
Aste giudiziarie inlinea spa 
(Gestisce la visita del bene)

Recapiti
Tel. 0586 201480

Scheda COD. 4333100 - Pubblicata dal 18/12/2025

La presente scheda di vendita riporta integralmente informazioni e documenti pervenuti ufficialmente dal Ministero e dal professionista incaricato.

Pubblicazione notarizzata su Blockchain


Pubblicazione autorizzata dall’Autorità competente, è vietata ogni ripubblicazione o riproduzione anche parziale


Ti interessa questa vendita?

Documentazione

Visualizza su mappa

Mappa geografica del bene

Storico delle vendite

Data venditaPrezzo base
22/10/2025€ 1.668.109,31
03/03/2026€ 1.251.081,98

Punti di interesse

Fonte dati

Nel raggio di {{range}}Km

Loading...
  • {{ getIcon(poi.type) }} {{ poi.localized }}: {{poi.count}}
  • {{ getIcon(poi.type) }} {{ poi.localized }}: {{poi.count}}
Dati non disponibili