Astegiudiziarie.it è parte di Rete Aste Network

Accedi o registrati

Non sei ancora registrato?

Oppure

Accedi

Albergo e pensione

Località Monticchio Laghi, Rionero in Vulture (PZ)

€ 3.528.000,00

Offerta minima € 2.646.000,00


Codice A4337333

Lotto Lotto unico

Data udienza 10/03/2026 ore 11:00

Termine presentazione offerte 09/03/2026 ore 11:00

Albergo e pensione

Località Monticchio Laghi, Rionero in Vulture (PZ)

€ 3.528.000,00

Offerta minima € 2.646.000,00


Codice A4337333

Lotto Lotto unico

Data udienza 10/03/2026 ore 11:00

Termine presentazione offerte 09/03/2026 ore 11:00

Ti interessa questa vendita?

Documentazione

Visualizza su mappa

Mappa geografica del bene

Punti di interesse

Fonte dati

Nel raggio di {{range}}Km

Loading...
  • {{ getIcon(poi.type) }} {{ poi.localized }}: {{poi.count}}
  • {{ getIcon(poi.type) }} {{ poi.localized }}: {{poi.count}}
Dati non disponibili

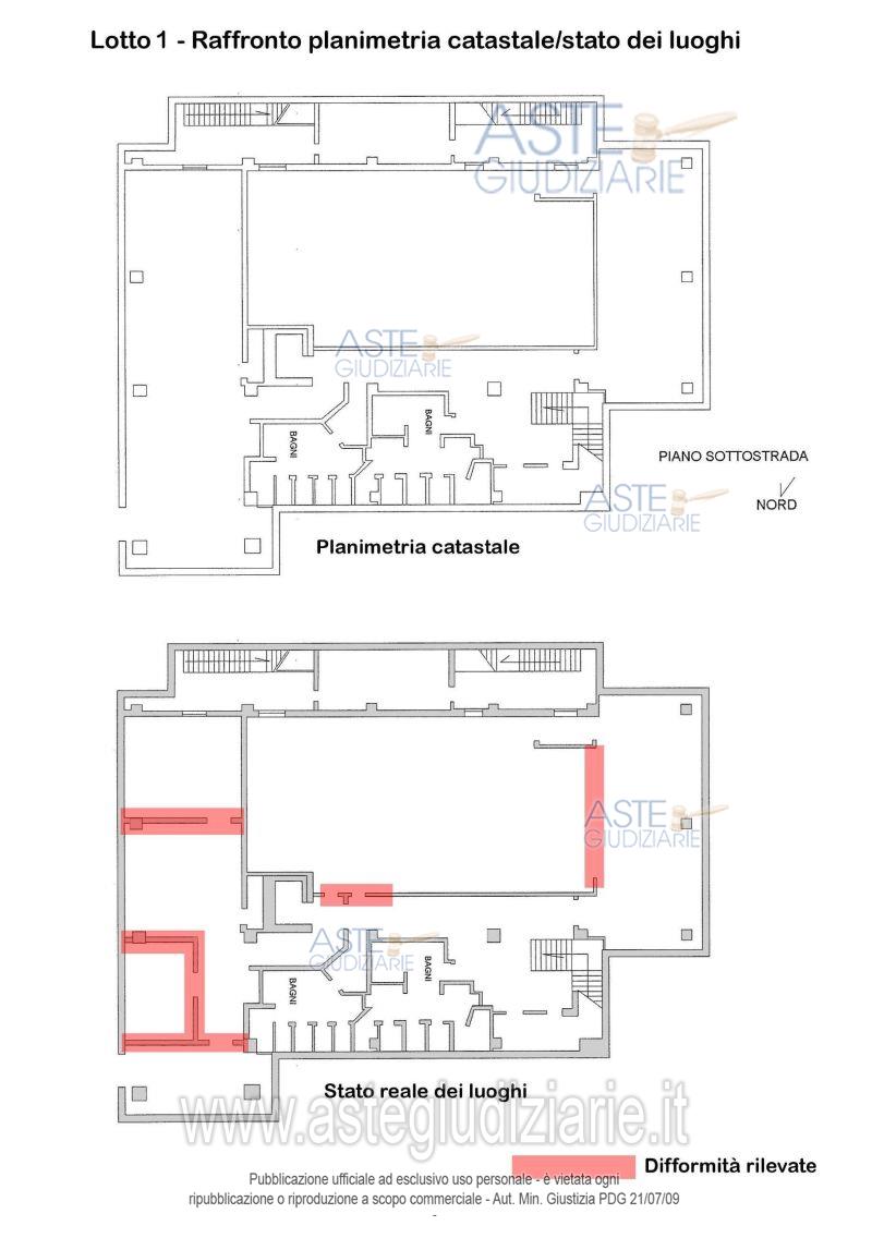
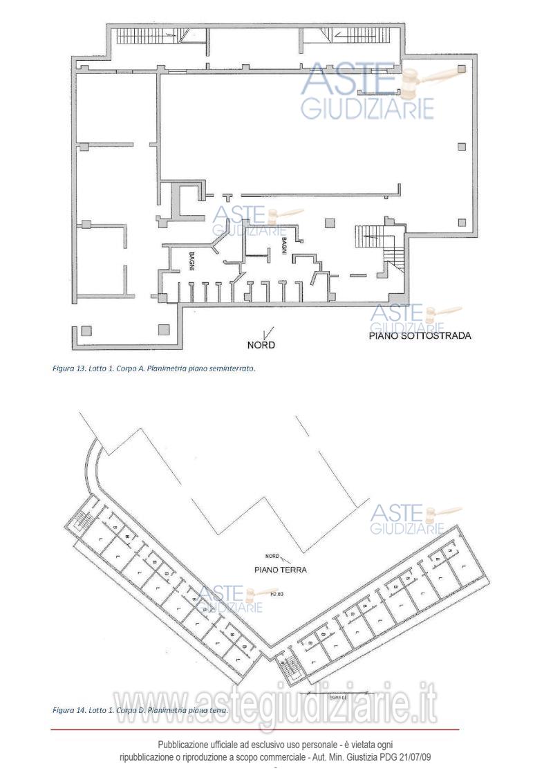
Piena proprietà quota 1/1 nel Comune di Rionero in Vulture alla Località Monticchio Laghi 1:Albergo, identificata nel Catasto Fabbricati:- al Foglio 5 p.lla 735 sub 1, cat. D/2, piano S1-T, mq. 2630,00 circa.Piena proprietà quota 1/1 nel Comune di Rionero in Vulture alla Località Monticchio Laghi 1: Sala Polivalente, discopub, centro benessere, identificata nel Catasto Fabbricati:- al Foglio 5 p.lla 736 sub 2, cat. D/8, piano S1-T, mq. 955,00 circa.

Indirizzo
Località Monticchio Laghi, Rionero in Vulture (PZ)


Codice asta
4337333


Lotto
Lotto unico


Numero beni
1


Genere
Immobili


Categoria
Altra categoria


Valore di stima
-


Albergo e pensione

Piena proprietà quota 1/1 nel Comune di Rionero in Vulture alla Località Monticchio Laghi 1:Albergo, identificata nel Catasto Fabbricati:- al Foglio 5 p.lla 735 sub 1, cat. D/2, piano S1-T, mq. 2630,00 circa.Piena proprietà quota 1/1 nel Comune di Rionero in Vulture alla Località Monticchio Laghi 1: Sala Polivalente, discopub, centro benessere, identificata nel Catasto Fabbricati:- al Foglio 5 p.lla 736 sub 2, cat. D/8, piano S1-T, mq. 955,00 circa.

Indirizzo
Località Monticchio Laghi, Rionero in Vulture (PZ)


Piano
-


Disponibilità
Libero


Vani
-


Bagni
-


Metri quadri
3585,00


Certificazione energetica
-


Dati catastali

Foglio:5, Particella:735, Subalterno:1
Foglio:5, Particella:736, Subalterno:2


Data udienza
10/03/2026 ore 11:00


Tipo di vendita
Mezzo commissionario


Modalità di vendita
Asincrona telematica


Luogo
N.A. -


Luogo presentazione offerte
-


Termine presentazione offerte
09/03/2026 ore 11:00


Prezzo base
€ 3.528.000,00


Offerta minima
€ 2.646.000,00


Rialzo minimo in caso di gara
€ 15.000,00


Deposito cauzionale
10% del prezzo offerto


Deposito in conto spese
-


Tribunale
Potenza

Tipo di procedura
Esecuzione immobiliare post legge 80

Ruolo
107/2024

Delegato alla vendita
Casulli Antonio
(Procede alle operazioni di vendita)
(Gestisce la visita del bene)

Recapiti
Cell. 3356647447
Tel. 0971443408

Scheda COD. 4337333 - Pubblicata dal 13/01/2026

La presente scheda di vendita riporta integralmente informazioni e documenti pervenuti ufficialmente dal Ministero e dal professionista incaricato.


Pubblicazione autorizzata dall’Autorità competente, è vietata ogni ripubblicazione o riproduzione anche parziale


Ti interessa questa vendita?

Documentazione

Visualizza su mappa

Mappa geografica del bene

Storico delle vendite

Data venditaPrezzo base
16/12/2025€ 4.704.000,00
10/03/2026€ 3.528.000,00

Punti di interesse

Fonte dati

Nel raggio di {{range}}Km

Loading...
  • {{ getIcon(poi.type) }} {{ poi.localized }}: {{poi.count}}
  • {{ getIcon(poi.type) }} {{ poi.localized }}: {{poi.count}}
Dati non disponibili