Astegiudiziarie.it è parte di Rete Aste Network

Accedi o registrati

Non sei ancora registrato?

Oppure

Accedi

Albergo e pensione

Località Marina - Viale Ionio, 401, Ginosa (TA)

€ 765.450,00

Offerta minima € 574.088,00


Codice A4239387

Lotto 1

Data udienza 28/01/2026 ore 16:00

Termine presentazione offerte 27/01/2026 ore 12:00

Albergo e pensione

Località Marina - Viale Ionio, 401, Ginosa (TA)

€ 765.450,00

Offerta minima € 574.088,00


Codice A4239387

Lotto 1

Data udienza 28/01/2026 ore 16:00

Termine presentazione offerte 27/01/2026 ore 12:00

Ti interessa questa vendita?

Documentazione

Visualizza su mappa

Mappa geografica del bene

Punti di interesse

Fonte dati

Nel raggio di {{range}}Km

Loading...
  • {{ getIcon(poi.type) }} {{ poi.localized }}: {{poi.count}}
  • {{ getIcon(poi.type) }} {{ poi.localized }}: {{poi.count}}
Dati non disponibili

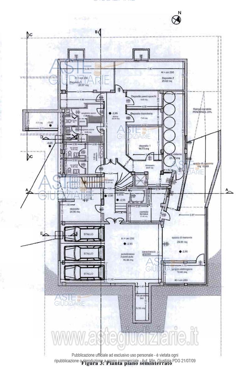
Complesso immobiliare costituito da 5 piani oltre annessa ampia area pertinenziale.

Indirizzo
Località Marina - Viale Ionio, 401, Ginosa (TA)


Codice asta
4239387


Lotto
1


Numero beni
1


Genere
Immobili


Categoria
Altra categoria


Valore di stima
-


Albergo e pensione

Complesso immobiliare costituito da 5 piani oltre annessa ampia area pertinenziale da utilizzare come struttura alberghiera stante la presenza di diciotto camere di cui due destinate a portatori di handicap, reception ed hall, ufficio, bar, cucina e ristorante, servizi destinati alla funzionalità dell'albergo, spa costituita da bagno turco, sauna, idromassaggio e sala massaggi.

Indirizzo
Località Marina - Viale Ionio, 401, Ginosa (TA)


Piano
-


Disponibilità
-


Vani
-


Bagni
-


Metri quadri
450,00


Certificazione energetica
-


Data udienza
28/01/2026 ore 16:00


Tipo di vendita
Senza incanto


Modalità di vendita
Asincrona telematica


Luogo
N.A. -


Luogo presentazione offerte
-


Termine presentazione offerte
27/01/2026 ore 12:00


Prezzo base
€ 765.450,00


Offerta minima
€ 574.088,00


Rialzo minimo in caso di gara
€ 3.000,00


Deposito cauzionale
10% del prezzo offerto


Deposito in conto spese
-


Tribunale
Taranto

Tipo di procedura
Esecuzione immobiliare post legge 80

Ruolo
50/2019

Giudice
Paiano Andrea

Recapiti
-

Email
-

Delegato alla vendita
D'elia Daniele
(Procede alle operazioni di vendita)

Recapiti
-

Email
-

Custode giudiziario
D'elia Daniele
(Gestisce la visita del bene)

Recapiti
Tel. 0994538130

Scheda COD. 4239387 - Pubblicata dal 02/12/2025

La presente scheda di vendita riporta integralmente informazioni e documenti pervenuti ufficialmente dal Ministero e dal professionista incaricato.

Pubblicazione notarizzata su Blockchain


Pubblicazione autorizzata dall’Autorità competente, è vietata ogni ripubblicazione o riproduzione anche parziale


Ti interessa questa vendita?

Documentazione

Visualizza su mappa

Mappa geografica del bene

Storico delle vendite

Data venditaPrezzo base
05/11/2024€ 1.020.600,00
28/01/2026€ 765.450,00

Punti di interesse

Fonte dati

Nel raggio di {{range}}Km

Loading...
  • {{ getIcon(poi.type) }} {{ poi.localized }}: {{poi.count}}
  • {{ getIcon(poi.type) }} {{ poi.localized }}: {{poi.count}}
Dati non disponibili