Astegiudiziarie.it è parte di Rete Aste Network

Accedi o registrati

Non sei ancora registrato?

Oppure

Accedi

Alberghi e pensioni

Corso XX Settembre 30, Giarratana (RG)

€ 29.805,60

Offerta minima € 19.969,80


Codice A4302823

Lotto 2

Data udienza 23/06/2026 ore 17:00

Termine presentazione offerte 22/06/2026 ore 13:00

Alberghi e pensioni

Corso XX Settembre 30, Giarratana (RG)

€ 29.805,60

Offerta minima € 19.969,80


Codice A4302823

Lotto 2

Data udienza 23/06/2026 ore 17:00

Termine presentazione offerte 22/06/2026 ore 13:00

Ti interessa questa vendita?

Documentazione

Visualizza su mappa

Mappa geografica del bene

Punti di interesse

Fonte dati

Nel raggio di {{range}}Km

Loading...
  • {{ getIcon(poi.type) }} {{ poi.localized }}: {{poi.count}}
  • {{ getIcon(poi.type) }} {{ poi.localized }}: {{poi.count}}
Dati non disponibili

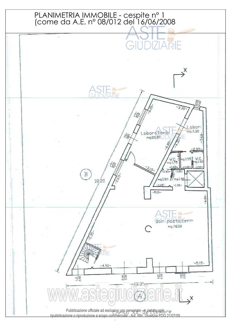
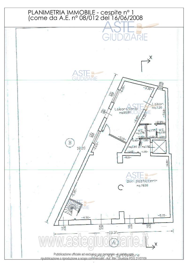
Diritto di proprietà esclusiva su locale ricettivo adibito ad “attività ricettiva” al pianoprimo e secondo in Giarratana.

Indirizzo
Corso XX Settembre 30, Giarratana (RG)


Codice asta
4302823


Lotto
2


Numero beni
1


Genere
Immobili


Categoria
Altra categoria


Valore di stima
-


Alberghi e pensioni

Diritto di proprietà esclusiva su locale ricettivo adibito ad “attività ricettiva” al piano primo e secondo in Giarratana.

Indirizzo
Corso XX Settembre 30, Giarratana (RG)


Piano
-


Disponibilità
-


Vani
1,00


Bagni
-


Metri quadri
240,00


Certificazione energetica
-


Data udienza
23/06/2026 ore 17:00


Tipo di vendita
Senza incanto


Modalità di vendita
Sincrona mista


Luogo
Via T. Edison, 6, 97016 Pozzallo RG, Italia - Pozzallo 97016


Luogo presentazione offerte
-


Termine presentazione offerte
22/06/2026 ore 13:00


Prezzo base
€ 29.805,60


Offerta minima
€ 19.969,80


Rialzo minimo in caso di gara
€ 500,00


Deposito cauzionale
10% del prezzo offerto


Deposito in conto spese
-


Tribunale
Ragusa

Tipo di procedura
Esecuzione immobiliare post legge 80

Ruolo
268/2022

Delegato alla vendita
Amore Elia
(Procede alle operazioni di vendita)

Recapiti
-

Email
-

Custode giudiziario
Amore Elia
(Gestisce la visita del bene)

Recapiti
-

Scheda COD. 4302823 - Pubblicata dal 16/04/2026

La presente scheda di vendita riporta integralmente informazioni e documenti pervenuti ufficialmente dal Ministero e dal professionista incaricato.

Pubblicazione notarizzata su Blockchain


Pubblicazione autorizzata dall’Autorità competente, è vietata ogni ripubblicazione o riproduzione anche parziale


Ti interessa questa vendita?

Documentazione

Visualizza su mappa

Mappa geografica del bene

Storico delle vendite

Data venditaPrezzo base
04/09/2024€ 94.200,00
25/03/2025€ 70.650,00
16/09/2025€ 52.987,50
26/02/2026€ 39.740,70
23/06/2026€ 29.805,60

Punti di interesse

Fonte dati

Nel raggio di {{range}}Km

Loading...
  • {{ getIcon(poi.type) }} {{ poi.localized }}: {{poi.count}}
  • {{ getIcon(poi.type) }} {{ poi.localized }}: {{poi.count}}
Dati non disponibili