Astegiudiziarie.it è parte di Rete Aste Network

Accedi o registrati

Non sei ancora registrato?

Oppure

Accedi

Alberghi e pensioni

Via Silvio Pellico, 6, 24020 Castione della Presolana BG, Italia, Castione della Presolana (BG)

€ 1.226.000,00

Offerta minima € 919.500,00


Codice A4341210

Lotto Lotto unico

Data udienza 12/02/2026 ore 15:00

Termine presentazione offerte 11/02/2026 ore 12:00

Alberghi e pensioni

Via Silvio Pellico, 6, 24020 Castione della Presolana BG, Italia, Castione della Presolana (BG)

€ 1.226.000,00

Offerta minima € 919.500,00


Codice A4341210

Lotto Lotto unico

Data udienza 12/02/2026 ore 15:00

Termine presentazione offerte 11/02/2026 ore 12:00

Ti interessa questa vendita?

Documentazione

Visualizza su mappa

Mappa geografica del bene

Punti di interesse

Fonte dati

Nel raggio di {{range}}Km

Loading...
  • {{ getIcon(poi.type) }} {{ poi.localized }}: {{poi.count}}
  • {{ getIcon(poi.type) }} {{ poi.localized }}: {{poi.count}}
Dati non disponibili

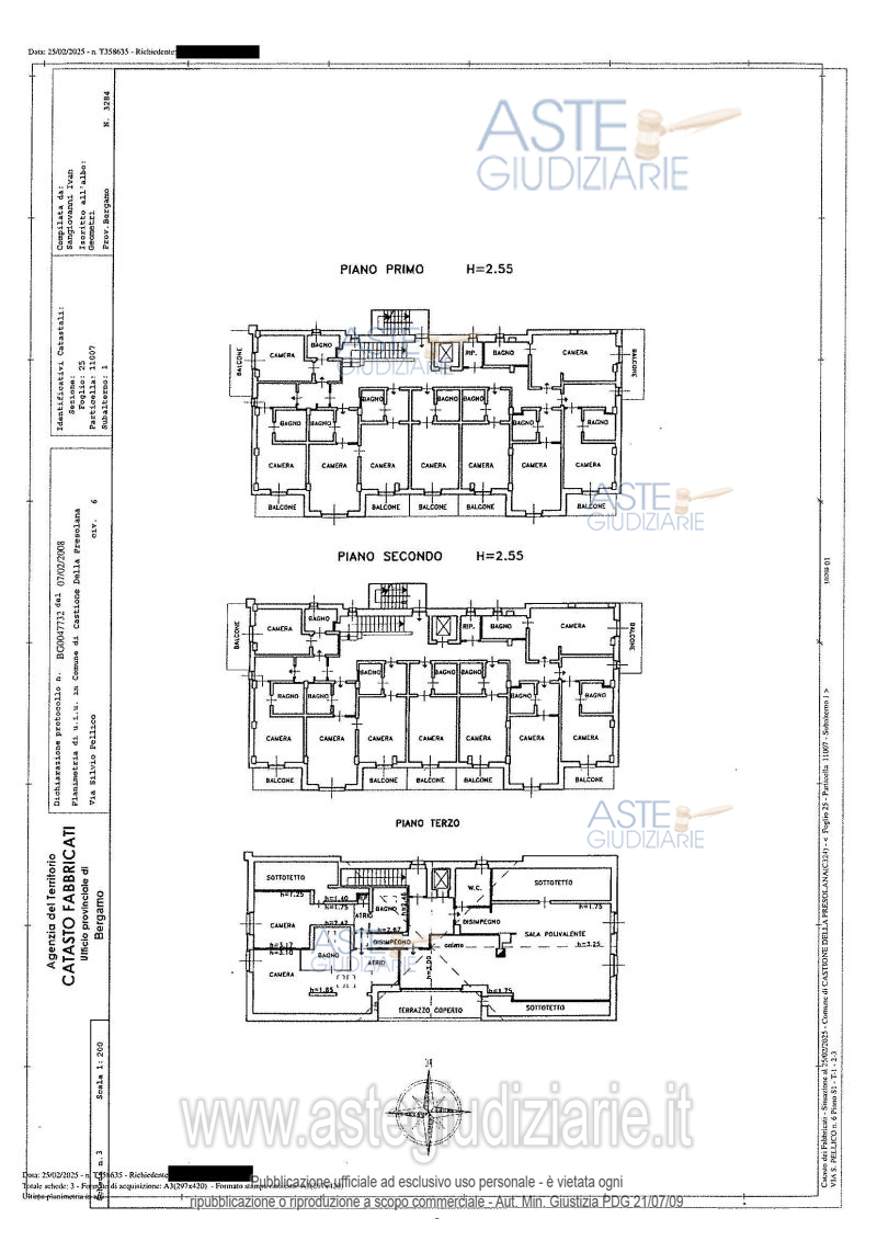
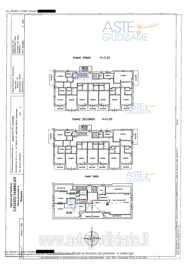
Edificio con destinazione alberghiera di tipo Meublè, composto da 25 camere con servizi igienici poste al piano terra, primo, secondo e terzo piano. Al piano interrato e piano terra sale polivalenti ed accessori tecnici. L’ingresso pedonale avviene su via Silvio Pellico con ingresso ampio senza gradini. Un vano scala interno collega tutti i piani ed è comunicante con la scala esterna di sicurezza. I piani sono serviti da un ascensore interno

Indirizzo
Via Silvio Pellico, 6, 24020 Castione della Presolana BG, Italia, Castione della Presolana (BG)


Codice asta
4341210


Lotto
Lotto unico


Numero beni
1


Genere
Immobili


Categoria
Altra categoria


Valore di stima
-


Alberghi e pensioni

Edificio con destinazione alberghiera di tipo Meublè, composto da 25 camere con servizi igienici poste al piano terra, primo, secondo e terzo piano. Al piano interrato e piano terra sale polivalenti ed accessori tecnici. L’ingresso pedonale avviene su via Silvio Pellico con ingresso ampio senza gradini. Un vano scala interno collega tutti i piani ed è comunicante con la scala esterna di sicurezza. I piani sono serviti da un ascensore interno

Indirizzo
Via Silvio Pellico, 6, 24020 Castione della Presolana BG, Italia, Castione della Presolana (BG)


Piano
-


Disponibilità
-


Vani
-


Bagni
-


Metri quadri
-


Certificazione energetica
-


Dati catastali

Foglio:9, Particella:11007, Subalterno:1
Foglio:9, Particella:11007, Subalterno:2
Foglio:9, Particella:7932
Foglio:9, Particella:11672


Data udienza
12/02/2026 ore 15:00


Tipo di vendita
Senza incanto


Modalità di vendita
Asincrona telematica


Luogo
-


Luogo presentazione offerte
-


Termine presentazione offerte
11/02/2026 ore 12:00


Prezzo base
€ 1.226.000,00


Offerta minima
€ 919.500,00


Rialzo minimo in caso di gara
€ 10.000,00


Deposito cauzionale
10% del prezzo offerto


Deposito in conto spese
-


Tribunale
Bergamo

Tipo di procedura
Esecuzione immobiliare post legge 80

Ruolo
628/2024

Delegato alla vendita
Minotti Laura
(Procede alle operazioni di vendita)

Recapiti
Tel. 035243420

Email
l.minotti@slbotti.com

Custode giudiziario
Plebani Ulisse
(Gestisce la visita del bene)

Recapiti
Tel. 035570414

Scheda COD. 4341210 - Pubblicata dal 16/12/2025

La presente scheda di vendita riporta integralmente informazioni e documenti pervenuti ufficialmente dal Ministero e dal professionista incaricato.

Pubblicazione notarizzata su Blockchain


Pubblicazione autorizzata dall’Autorità competente, è vietata ogni ripubblicazione o riproduzione anche parziale


Ti interessa questa vendita?

Documentazione

Visualizza su mappa

Mappa geografica del bene

Punti di interesse

Fonte dati

Nel raggio di {{range}}Km

Loading...
  • {{ getIcon(poi.type) }} {{ poi.localized }}: {{poi.count}}
  • {{ getIcon(poi.type) }} {{ poi.localized }}: {{poi.count}}
Dati non disponibili