Astegiudiziarie.it è parte di Rete Aste Network

Accedi o registrati

Non sei ancora registrato?

Oppure

Accedi

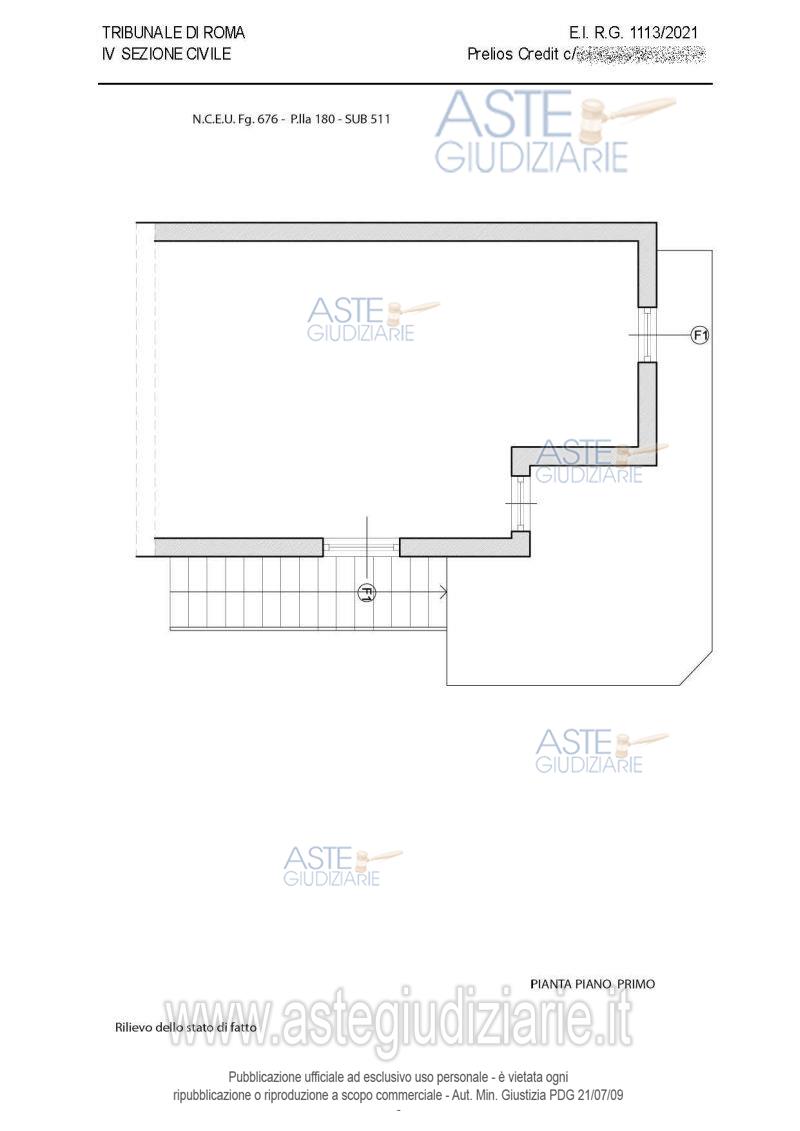
giudiziariagiudiziariaTribunale di ROMAESECUZIONI CIVILI IMMOBILIARIESECUZIONE IMMOBILIARE POST LEGGE 8011132021GiudiceFedericaD'ambrosiofalsefalseDelegato alla venditaManuelaMorbioliMRBMNL67P55H501Lm.morbioli@inwind.it0686211088truefalseCustodeIvg di roma srlPRCFNC50L27A241Tpvp@visiteivgroma.it0689569801falsetrue226922901IMMOBILIIMMOBILE RESIDENZIALEVia Lunano, 20, 00132 Roma RM, Italia00132RomaRomaLazioItaliaQuota pari a 100/100 del diritto di proprietà in Roma Via Lunano 20C su:-appartamento su due livelli, con al piano T piccolo portico e corte pertinenziale, ampio vano e servizi, al piano 1 sottotetto, due camere, servizi, disimpegno, balcone, al cui si accede da una scala esterna e passando dal soggiorno dell’immobile al primo piano; - appartamento posto al piano primo cui si accede da un scala esterna, costituito da un balcone a forma di "L", un vano soggiorno composto da angolo cottura e zona pranzo.2936264IMMOBILE RESIDENZIALEABITAZIONE IN VILLINIVia Lunano, 20, 00132 Roma RM, Italia00132RomaRomaLazioItaliaQuota pari a 100/100 del diritto di proprietà su compendio immobiliare sito in Roma Via Lunano 20C e precisamente: -appartamento posto su due livelli, con un piano terra costituito da un piccolo portico e corte pertinenziale, un ampio vano e servizi e un piano primo, sottotetto, in cui si trovano due camere, servizi, disimpegno e balcone, al quale si accede da una scala esterna e passando attraverso il soggiorno ed angolo cottura dell’immobile posto al primo piano; - appartamento posto al piano primo cui si accede da un scala esterna, costituito da un balcone a forma di "L", un vano soggiorno composto da angolo cottura e zona pranzo. 676180510676180511OCCUP2025-07-15T11:00:00SENZA INCANTOASINCRONA TELEMATICAN.A.140.800,00105.600,005.000,002025-07-14T23:59:00sito pubblicitahttps://www.astegiudiziarie.ithttps://www.astegiudiziarie.itsito pubblicitahttps://www.asteannunci.ithttps://www.asteannunci.itgestore delle venditehttps://www.fallcoaste.ithttps://www.fallcoaste.itsito pubblicitahttps://www.fallcoaste.ithttps://www.fallcoaste.it2025-05-16

Abitazione in villini

Via Lunano, 20, 00132 Roma RM, Italia, Roma (RM)

€ 140.800,00

Offerta minima € 105.600,00


Codice A4323029

Lotto 01

Data udienza 15/07/2025 ore 11:00

Termine presentazione offerte 14/07/2025 ore 23:59

Abitazione in villini

Via Lunano, 20, 00132 Roma RM, Italia, Roma (RM)

€ 140.800,00

Offerta minima € 105.600,00


Codice A4323029

Lotto 01

Data udienza 15/07/2025 ore 11:00

Termine presentazione offerte 14/07/2025 ore 23:59

Vendita deserta - Prossima presunta vendita il 04/11/2025 ore 11:00

Ti interessa questa vendita?

Documentazione

Visualizza su mappa

Mappa geografica del bene

Punti di interesse

Fonte dati

Nel raggio di {{range}}Km

Loading...
  • {{ getIcon(poi.type) }} {{ poi.localized }}: {{poi.count}}
  • {{ getIcon(poi.type) }} {{ poi.localized }}: {{poi.count}}
Dati non disponibili

Quota pari a 100/100 del diritto di proprietà in Roma Via Lunano 20C su:-appartamento su due livelli, con al piano T piccolo portico e corte pertinenziale, ampio vano e servizi, al piano 1 sottotetto, due camere, servizi, disimpegno, balcone, al cui si accede da una scala esterna e passando dal soggiorno dell’immobile al primo piano; - appartamento posto al piano primo cui si accede da un scala esterna, costituito da un balcone a forma di "L", un vano soggiorno composto da angolo cottura e zona pranzo.

Indirizzo
Via Lunano, 20, 00132 Roma RM, Italia, Roma (RM)


Codice asta
4323029


Lotto
01


Numero beni
1


Genere
Immobili


Categoria
Immobile residenziale


Valore di stima
-


Abitazione in villini

Quota pari a 100/100 del diritto di proprietà su compendio immobiliare sito in Roma Via Lunano 20C e precisamente: -appartamento posto su due livelli, con un piano terra costituito da un piccolo portico e corte pertinenziale, un ampio vano e servizi e un piano primo, sottotetto, in cui si trovano due camere, servizi, disimpegno e balcone, al quale si accede da una scala esterna e passando attraverso il soggiorno ed angolo cottura dell’immobile posto al primo piano; - appartamento posto al piano primo cui si accede da un scala esterna, costituito da un balcone a forma di "L", un vano soggiorno composto da angolo cottura e zona pranzo.

Indirizzo
Via Lunano, 20, 00132 Roma RM, Italia, Roma (RM)


Piano
T-1


Disponibilità
OCCUPATO


Vani
4,00


Bagni
2


Metri quadri
98,00


Certificazione energetica
-


Dati catastali

Foglio:676, Particella:180, Subalterno:510
Foglio:676, Particella:180, Subalterno:511


Tribunale
Roma

Tipo di procedura
Esecuzione immobiliare post legge 80

Ruolo
1113/2021

Giudice
D'ambrosio Federica

Recapiti
-

Email
-

Delegato alla vendita
Morbioli Manuela
(Procede alle operazioni di vendita)

Recapiti
-

Email
-

Custode giudiziario
Ivg di roma srl 
(Gestisce la visita del bene)

Recapiti
Tel. 0689569801

Email

Scheda COD. 4323029 - Pubblicata dal 30/05/2025

La presente scheda di vendita riporta integralmente informazioni e documenti pervenuti ufficialmente dal Ministero e dal professionista incaricato.

La sua pubblicazione è prolungata, in conformità agli accordi con il Tribunale, con l’obiettivo di garantire un’informazione continua e aggiornata, nel rispetto delle tempistiche procedurali.

Pubblicazione notarizzata su Blockchain


Pubblicazione autorizzata dall’Autorità competente, è vietata ogni ripubblicazione o riproduzione anche parziale


Ti interessa questa vendita?

Documentazione

Visualizza su mappa

Mappa geografica del bene

Storico delle vendite

Data venditaPrezzo base
13/05/2025€ 176.000,00
15/07/2025€ 140.800,00

Punti di interesse

Fonte dati

Nel raggio di {{range}}Km

Loading...
  • {{ getIcon(poi.type) }} {{ poi.localized }}: {{poi.count}}
  • {{ getIcon(poi.type) }} {{ poi.localized }}: {{poi.count}}
Dati non disponibili